← Ashford Borough Council

Status

Pending New housing
Received
Not recorded
New homes
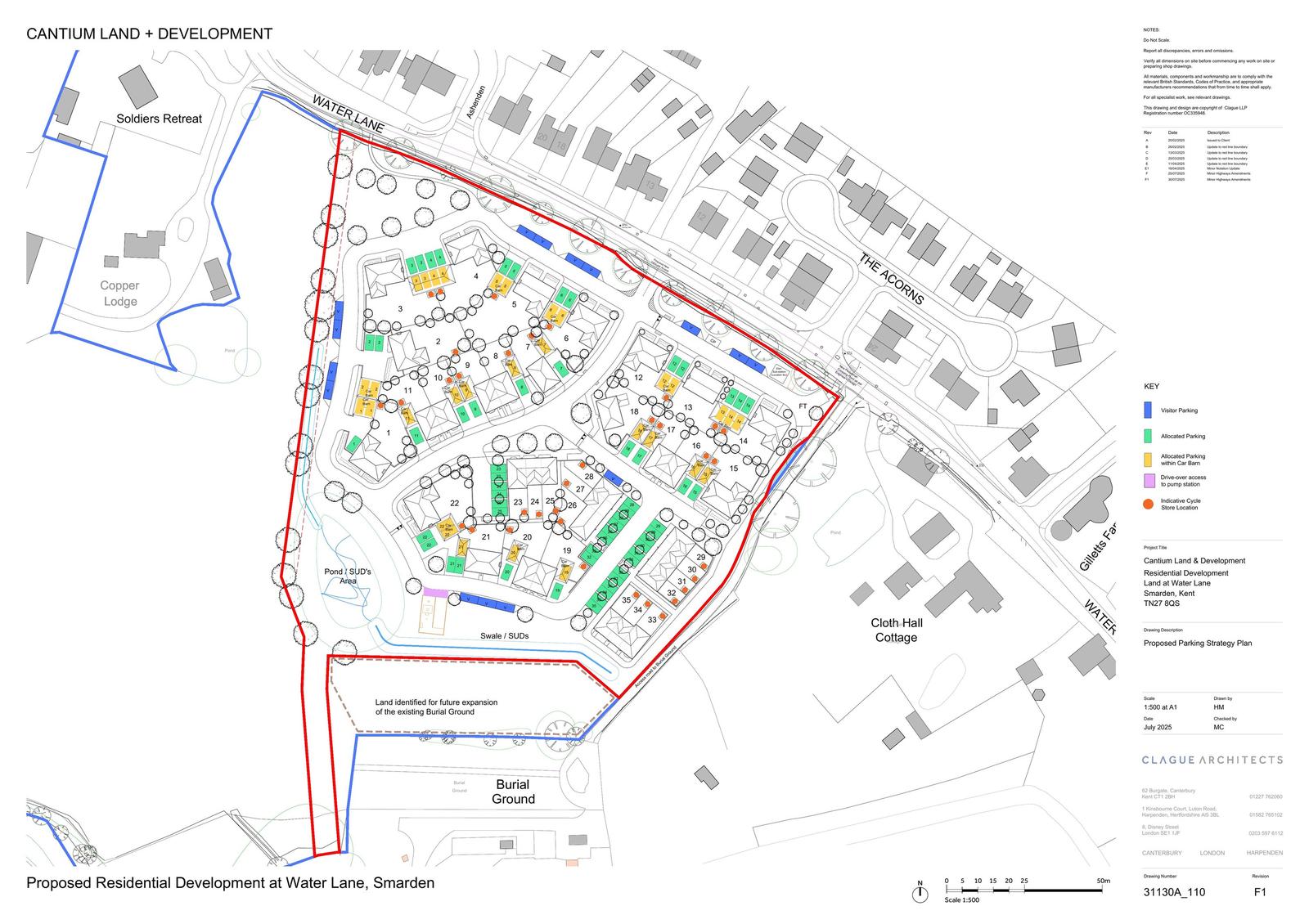
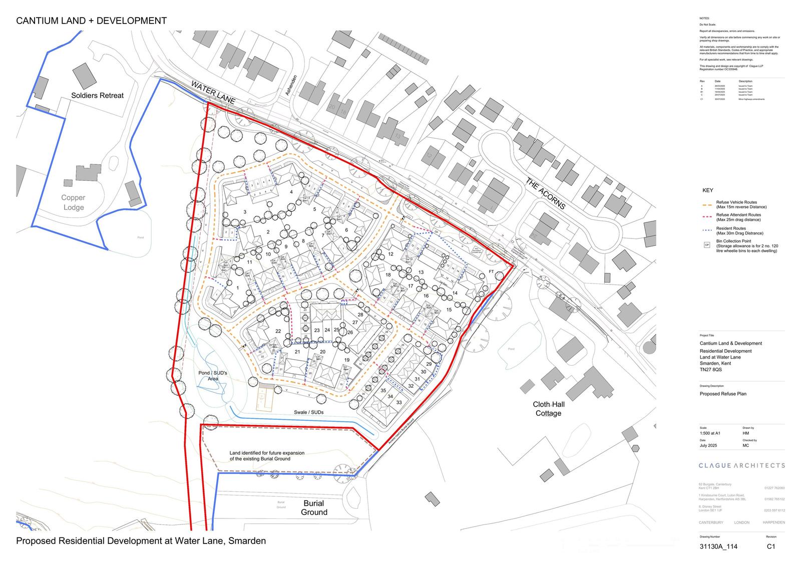
35

Full proposal

Application Reference PA/2025/0824 Site Address Land between Copper Lodge and The Cloth Hall, Water Lane, Smarden Proposal 35no dwellings, together with all associated landscaping and infrastructure. Date Valid 13/5/2025 Application Status Decision Made Decision Refuse

Documents

Uncategorised
Archived · Original link
Uncategorised
Archived · Original link
Uncategorised
Archived · Original link
Uncategorised
Archived · Original link
Uncategorised
Archived · Original link
Uncategorised
Archived · Original link
Uncategorised
Archived · Original link
Uncategorised
Archived · Original link
Uncategorised
Archived · Original link
Uncategorised
Archived · Original link
Uncategorised
Archived · Original link
Uncategorised
Archived · Original link
Uncategorised
Archived · Original link
Uncategorised
Archived · Original link
Uncategorised
Archived · Original link
Uncategorised
Archived · Original link
Uncategorised
Archived · Original link
Uncategorised
Archived · Original link
Uncategorised
Archived · Original link
Uncategorised
Archived · Original link

Have your say

Your comment matters. Councils must consider every representation that raises material planning considerations.

Write a comment