← Ashford Borough Council

Status

Pending House extension
Received
Not recorded
New homes
0

Full proposal

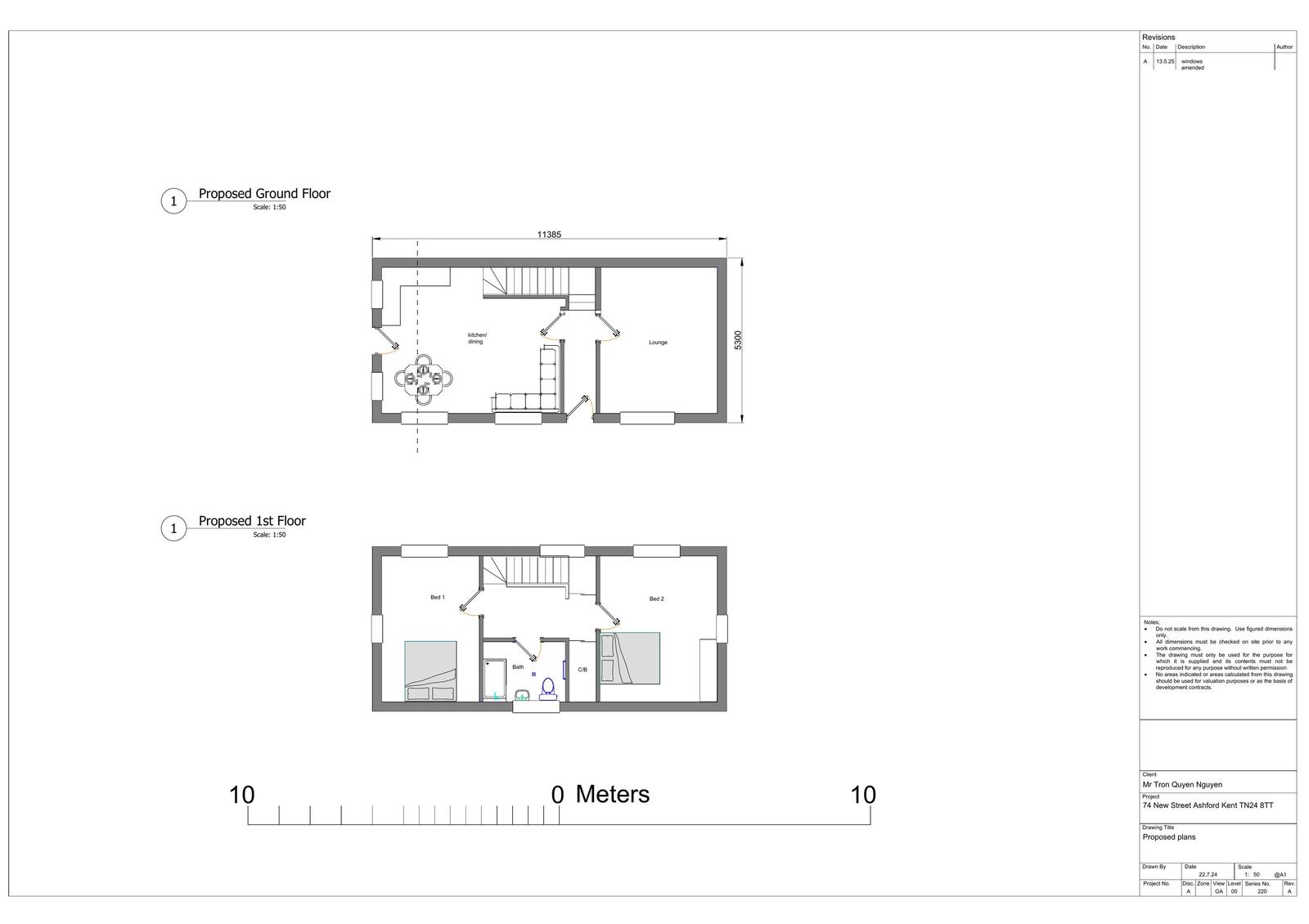
Application Reference PA/2025/0849 Site Address 74 New Street, Ashford, TN24 8TT Proposal Two-storey annexe following demolition of existing dilapidated buildings. Date Valid 21/5/2025 Application Status Decision Made Decision Withdrawn

Documents

Uncategorised
Archived · Original link
Uncategorised
Archived · Original link
Uncategorised
Archived · Original link
Uncategorised
Archived · Original link
Uncategorised
Archived · Original link
Uncategorised
Archived · Original link
Uncategorised
Archived · Original link
Uncategorised
Archived · Original link
Uncategorised
Archived · Original link
Uncategorised
Archived · Original link
Uncategorised
Archived · Original link

Have your say

Your comment matters. Councils must consider every representation that raises material planning considerations.

Write a comment