← Ashford Borough Council

Status

Pending House extension
Received
Not recorded
New homes
0

Full proposal

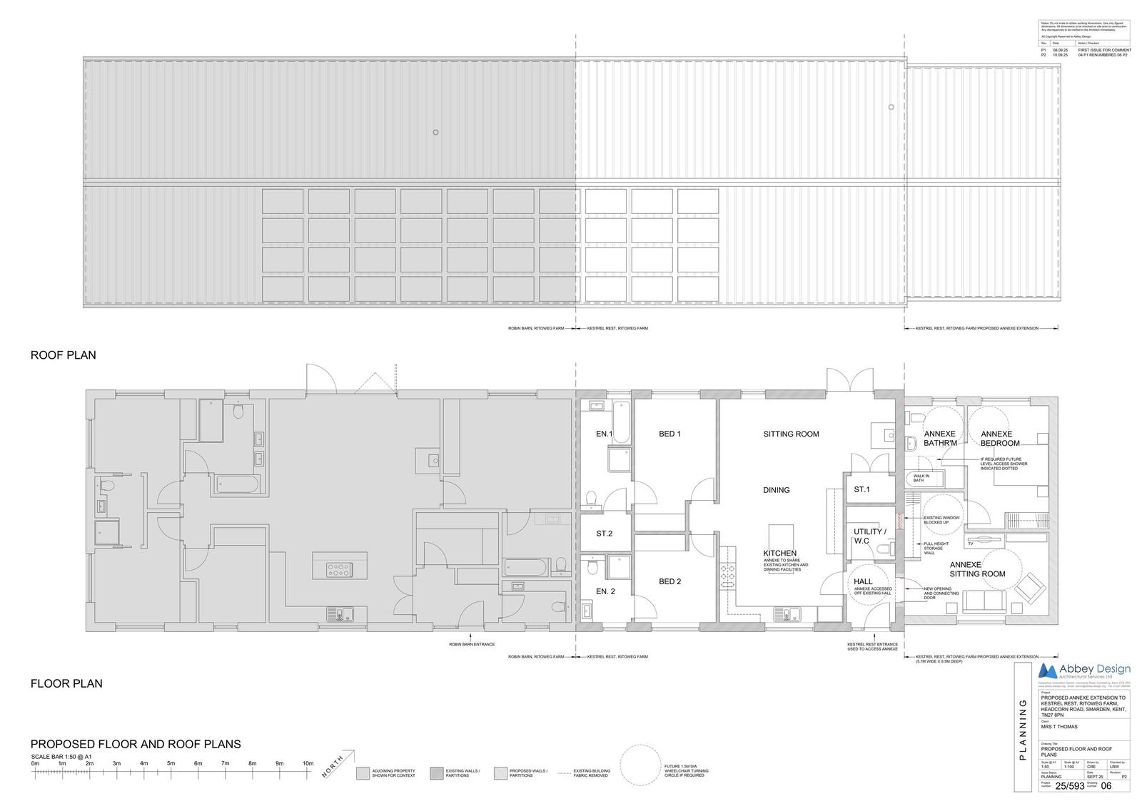
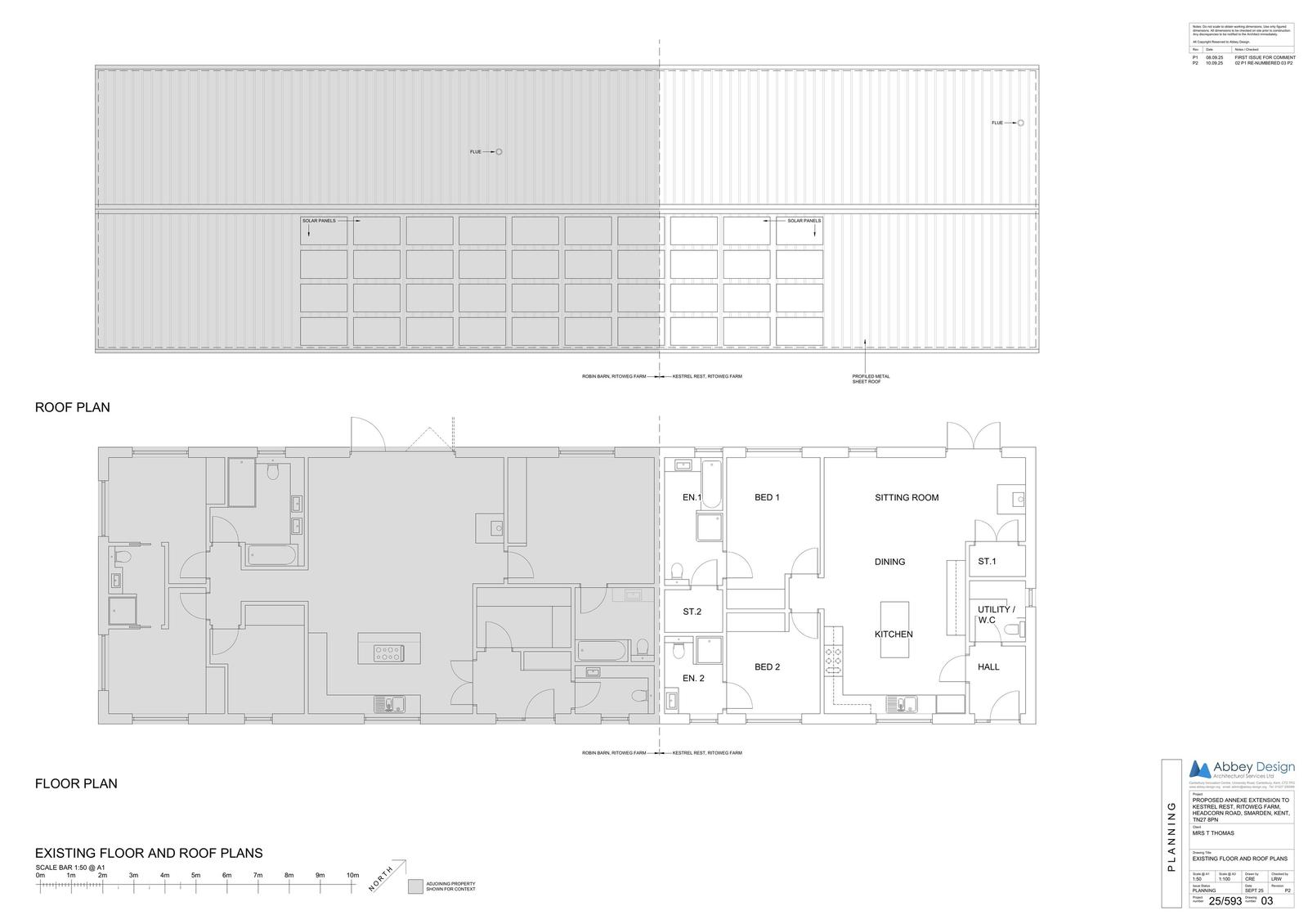
Application Reference PA/2026/0209 Site Address Ritoweg Farm, Kestrel Rest, Headcorn Road, Smarden, TN27 8PN Proposal Single-storey side extension to create annexe accommodation. Date Valid 03/2/2026 Application Status Under Consultation Decision

Documents

Uncategorised
Archived · Original link
Uncategorised
Archived · Original link
Uncategorised
Archived · Original link
Uncategorised
Archived · Original link
Uncategorised
Archived · Original link
Uncategorised
Archived · Original link
Uncategorised
Archived · Original link
Uncategorised
Archived · Original link
Uncategorised
Archived · Original link

Have your say

Your comment matters. Councils must consider every representation that raises material planning considerations.

Write a comment