← Ashford Borough Council

Status

Pending Change of use
Received
Not recorded
New homes
0

Full proposal

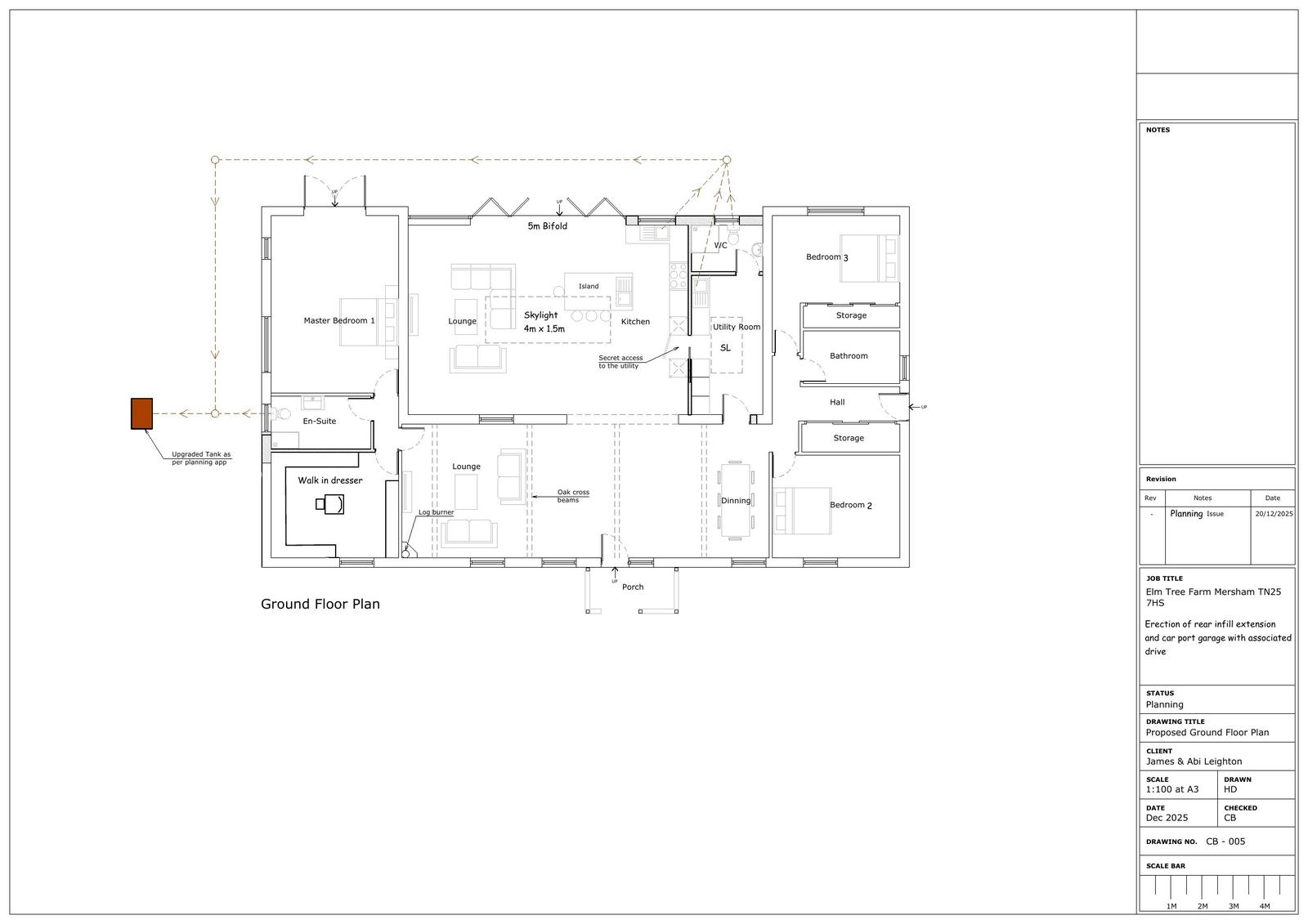
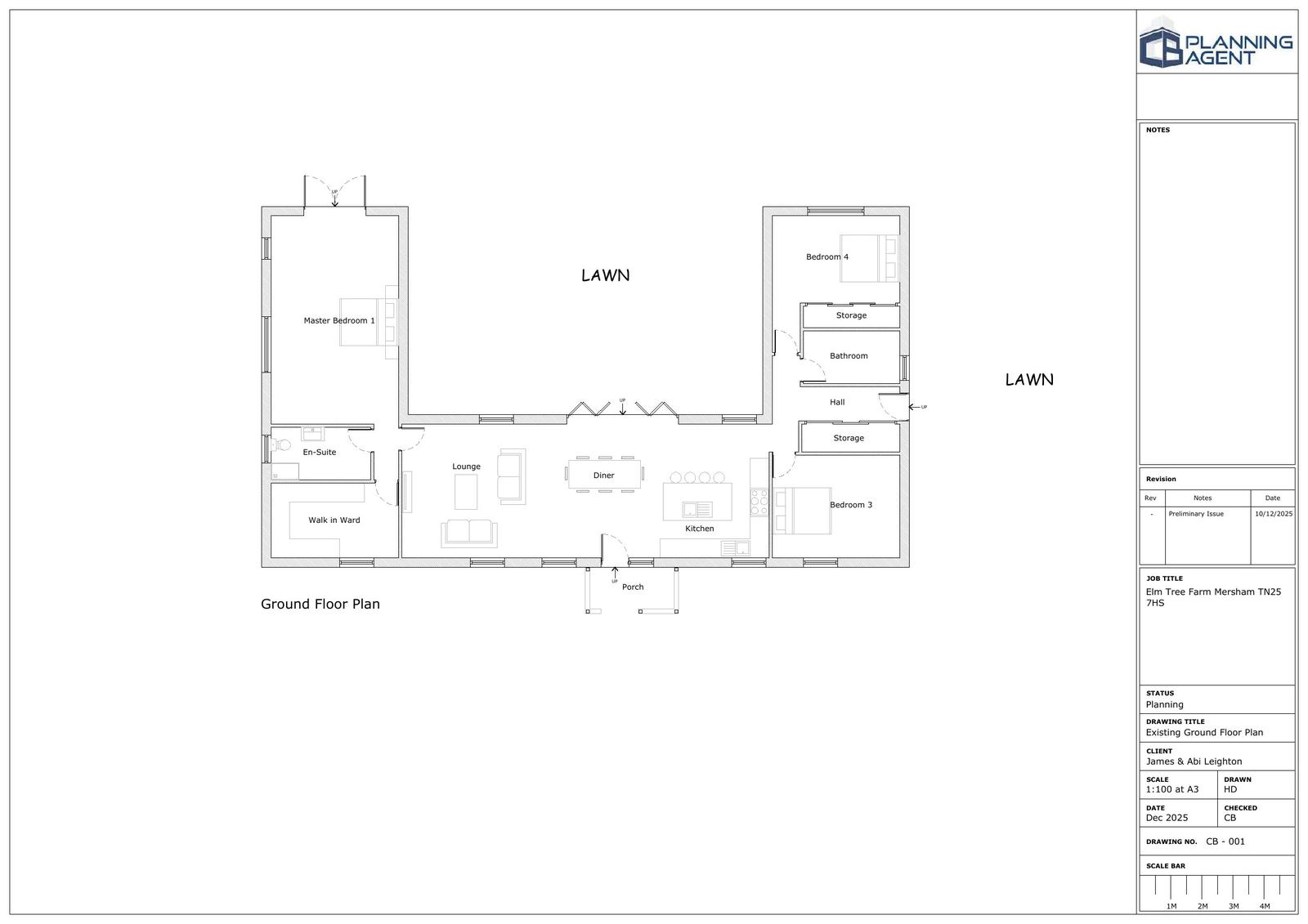
Application Reference PA/2026/0253 Site Address Elm Tree Farm, South Stour Road, Mersham, Ashford, TN25 7HS Proposal Change of use of land from commercial to residential. Conversion of existing commercial building to dwelling. Erection of rear extension and detached car port garage. Date Valid 05/3/2026 Application Status Under Consultation Decision

Documents

Uncategorised
Archived · Original link
Uncategorised
Archived · Original link
Uncategorised
Archived · Original link
Uncategorised
Archived · Original link
Uncategorised
Archived · Original link
Uncategorised
Archived · Original link
Uncategorised
Archived · Original link
Uncategorised
Archived · Original link
Uncategorised
Archived · Original link
Uncategorised
Archived · Original link
Uncategorised
Archived · Original link
Uncategorised
Archived · Original link
Uncategorised
Archived · Original link
Uncategorised
Archived · Original link
Uncategorised
Archived · Original link
Uncategorised
Archived · Original link
Uncategorised
Archived · Original link
Uncategorised
Archived · Original link

Have your say

Your comment matters. Councils must consider every representation that raises material planning considerations.

Write a comment