← Ashford Borough Council

Status

Pending Change of use
Received
Not recorded
New homes
1

Full proposal

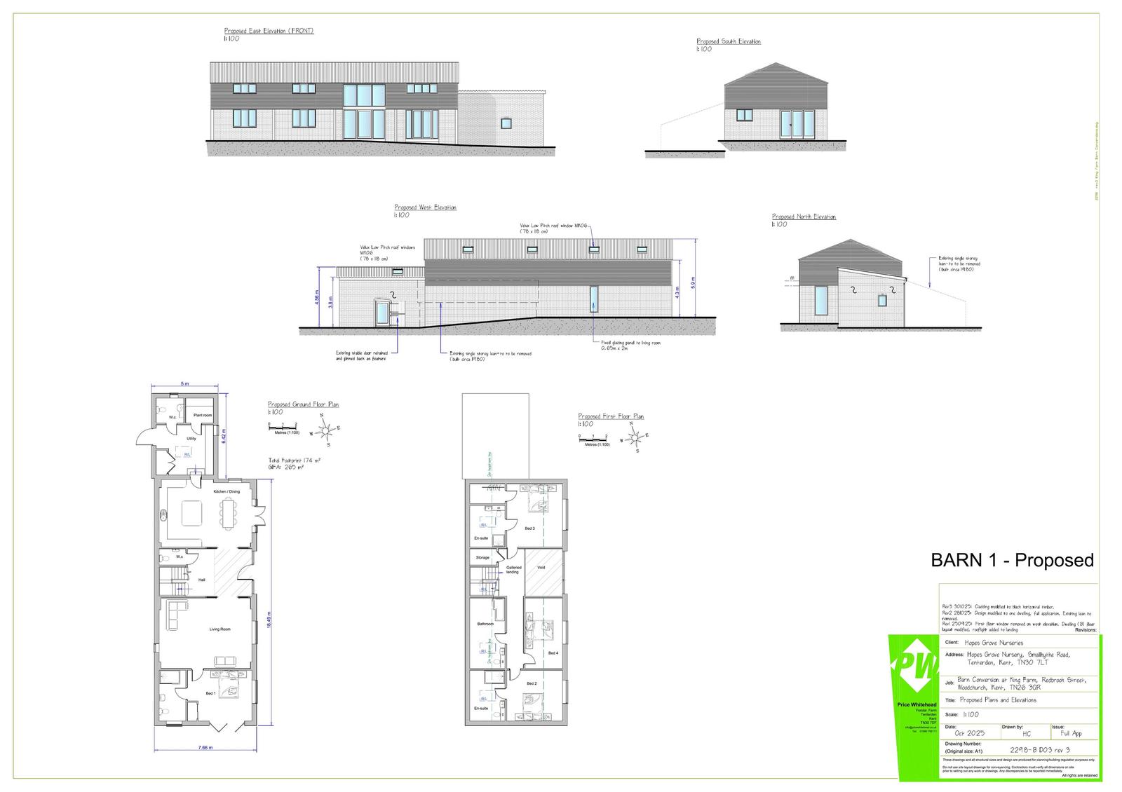
Application Reference PA/2026/0256 Site Address King Farm, Redbrook Street, Woodchurch, Ashford, TN26 3QR Proposal Change of use and conversion of a redundant barn to provide a residential dwelling, with associated amenity garden, parking and a car barn with home office above Date Valid 09/2/2026 Application Status Under Consultation Decision

Documents

Uncategorised
Archived · Original link
Uncategorised
Archived · Original link
Uncategorised
Archived · Original link
Uncategorised
Archived · Original link
Uncategorised
Archived · Original link
Uncategorised
Archived · Original link
Uncategorised
Archived · Original link
Uncategorised
Archived · Original link
Uncategorised
Archived · Original link
Uncategorised
Archived · Original link
Uncategorised
Archived · Original link
Uncategorised
Archived · Original link
Uncategorised
Archived · Original link
Uncategorised
Archived · Original link
Uncategorised
Archived · Original link

Have your say

Your comment matters. Councils must consider every representation that raises material planning considerations.

Write a comment