← Ashford Borough Council

Status

Pending House extension
Received
Not recorded
New homes
0

Full proposal

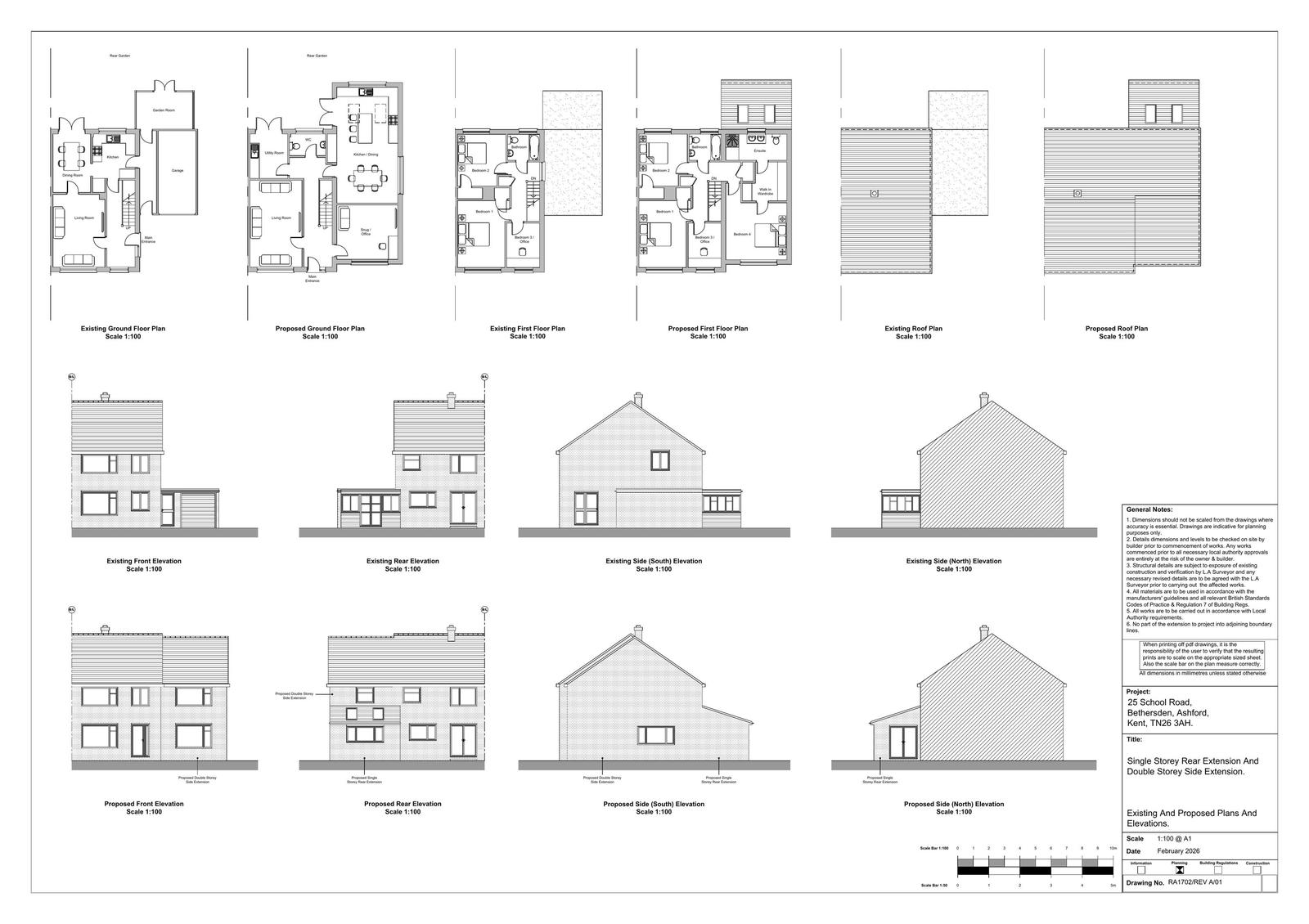
Application Reference PA/2026/0354 Site Address 25, Rosedale, School Road, Bethersden, TN26 3AH Proposal Two-storey side and single-storey rear extension and relocation of front door following demolition of existing garage. Date Valid 06/3/2026 Application Status Under Consultation Decision

Documents

Uncategorised
Archived · Original link
Uncategorised
Archived · Original link
Uncategorised
Archived · Original link
Uncategorised
Archived · Original link
Uncategorised
Archived · Original link
Uncategorised
Archived · Original link
Uncategorised
Archived · Original link

Have your say

Your comment matters. Councils must consider every representation that raises material planning considerations.

Write a comment