← Ashford Borough Council

Status

Pending Other
Received
Not recorded
New homes
0

Full proposal

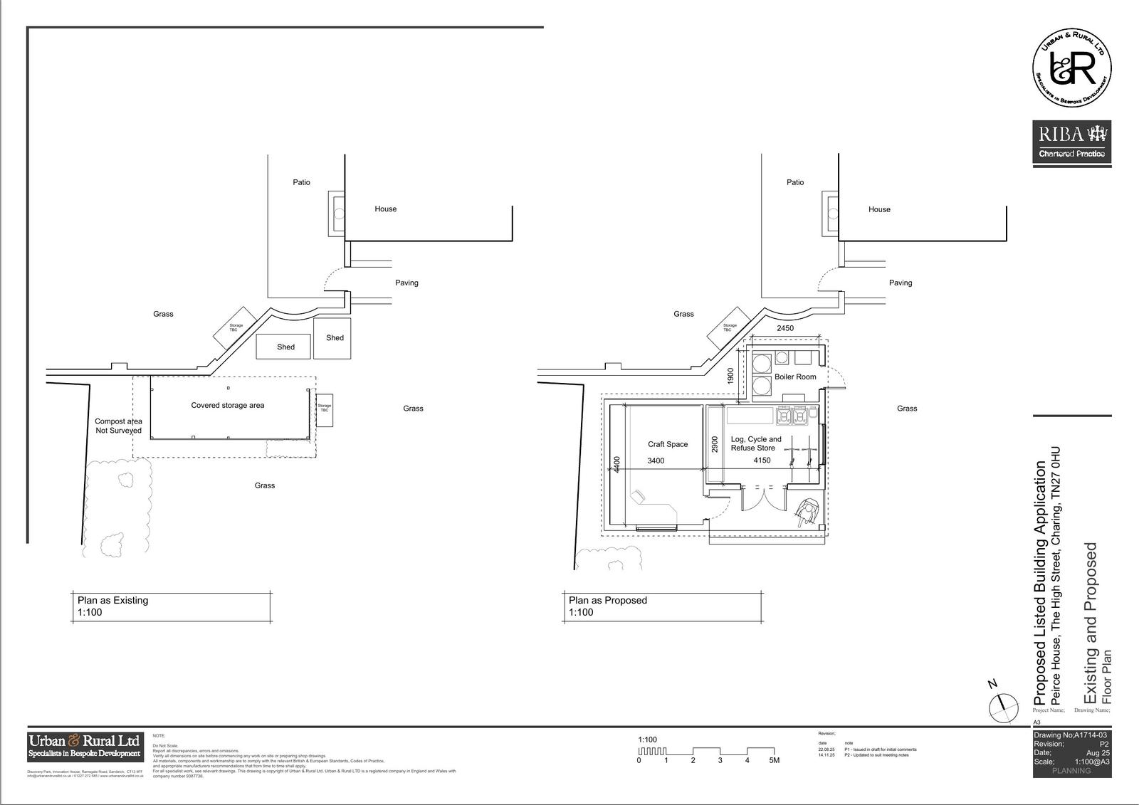
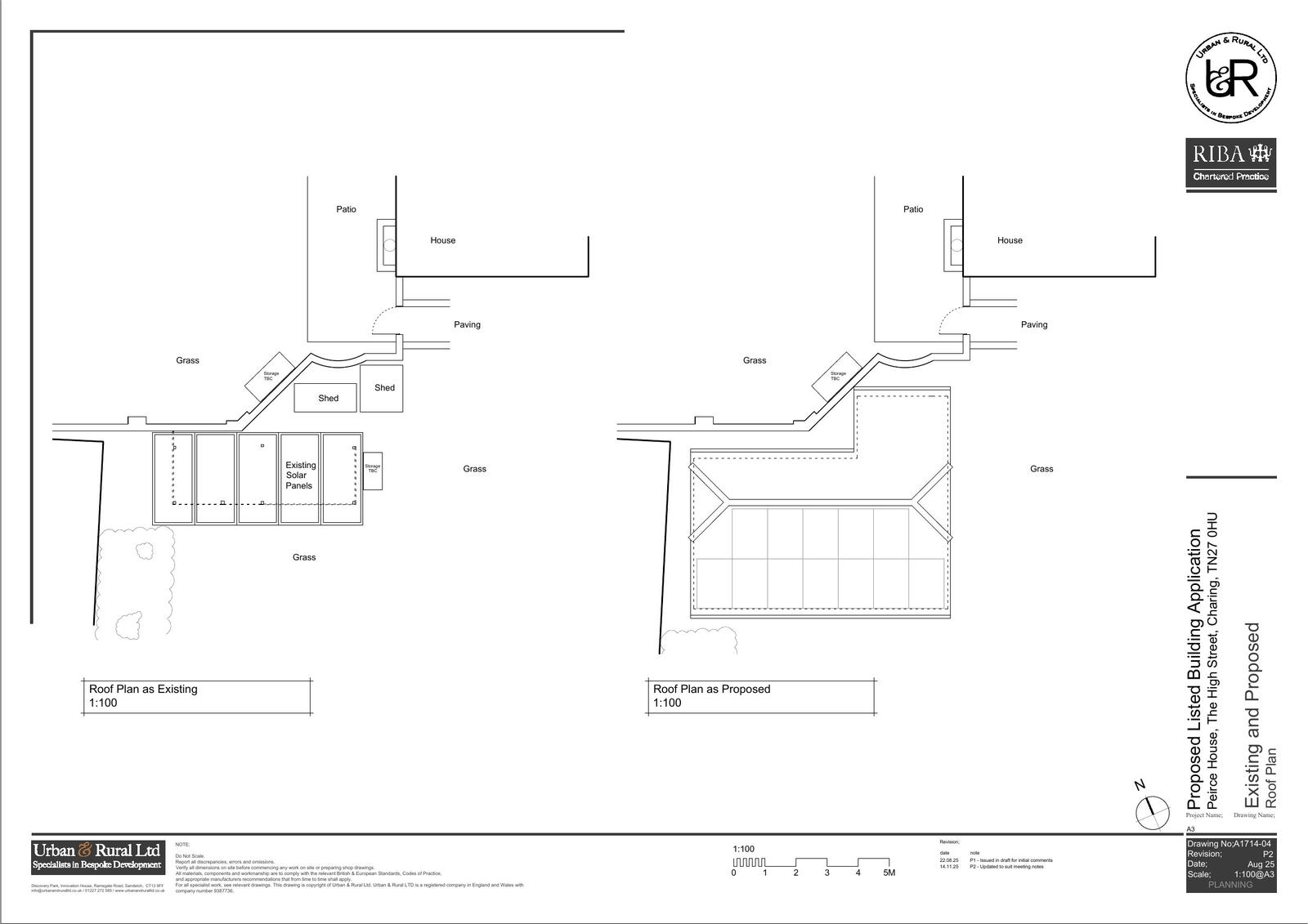
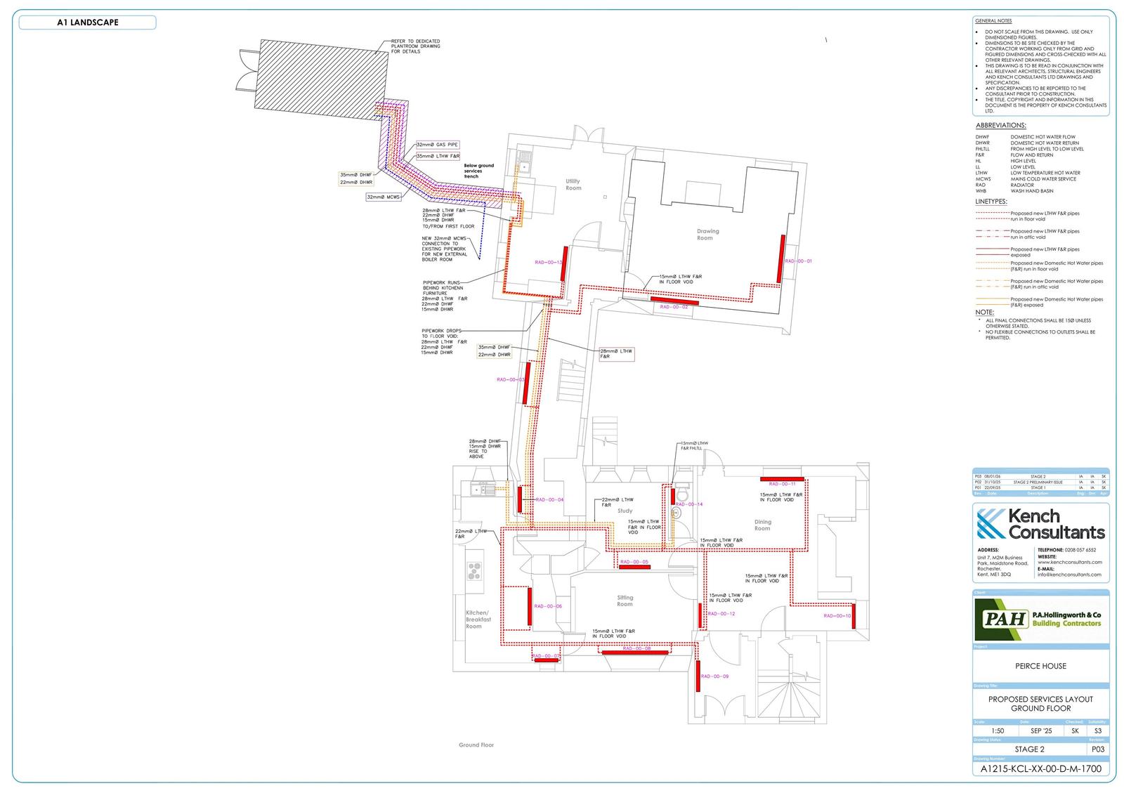
Application Reference PA/2026/0360 Site Address 33, Pierce House, High Street, Charing, TN27 0HU Proposal Proposed garden out-building incorporating boiler room, with solar panels on south facing roof slope following demolition of existing out-building. Date Valid 25/2/2026 Application Status Under Consultation Decision

Documents

Uncategorised
Archived · Original link
Uncategorised
Archived · Original link
Uncategorised
Archived · Original link
Uncategorised
Archived · Original link
Uncategorised
Archived · Original link
Uncategorised
Archived · Original link
Uncategorised
Archived · Original link
Uncategorised
Archived · Original link
Uncategorised
Archived · Original link
Uncategorised
Archived · Original link
Uncategorised
Archived · Original link
Uncategorised
Archived · Original link
Uncategorised
Archived · Original link
Uncategorised
Archived · Original link
Uncategorised
Archived · Original link
Uncategorised
Archived · Original link
Uncategorised
Archived · Original link
Uncategorised
Archived · Original link

Have your say

Your comment matters. Councils must consider every representation that raises material planning considerations.

Write a comment