← Ashford Borough Council

Status

Pending New housing
Received
Not recorded
New homes
1

Full proposal

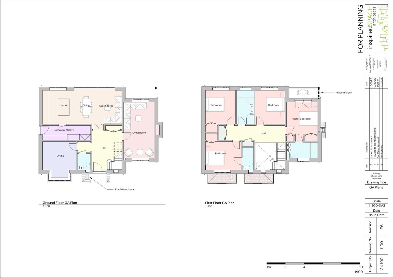
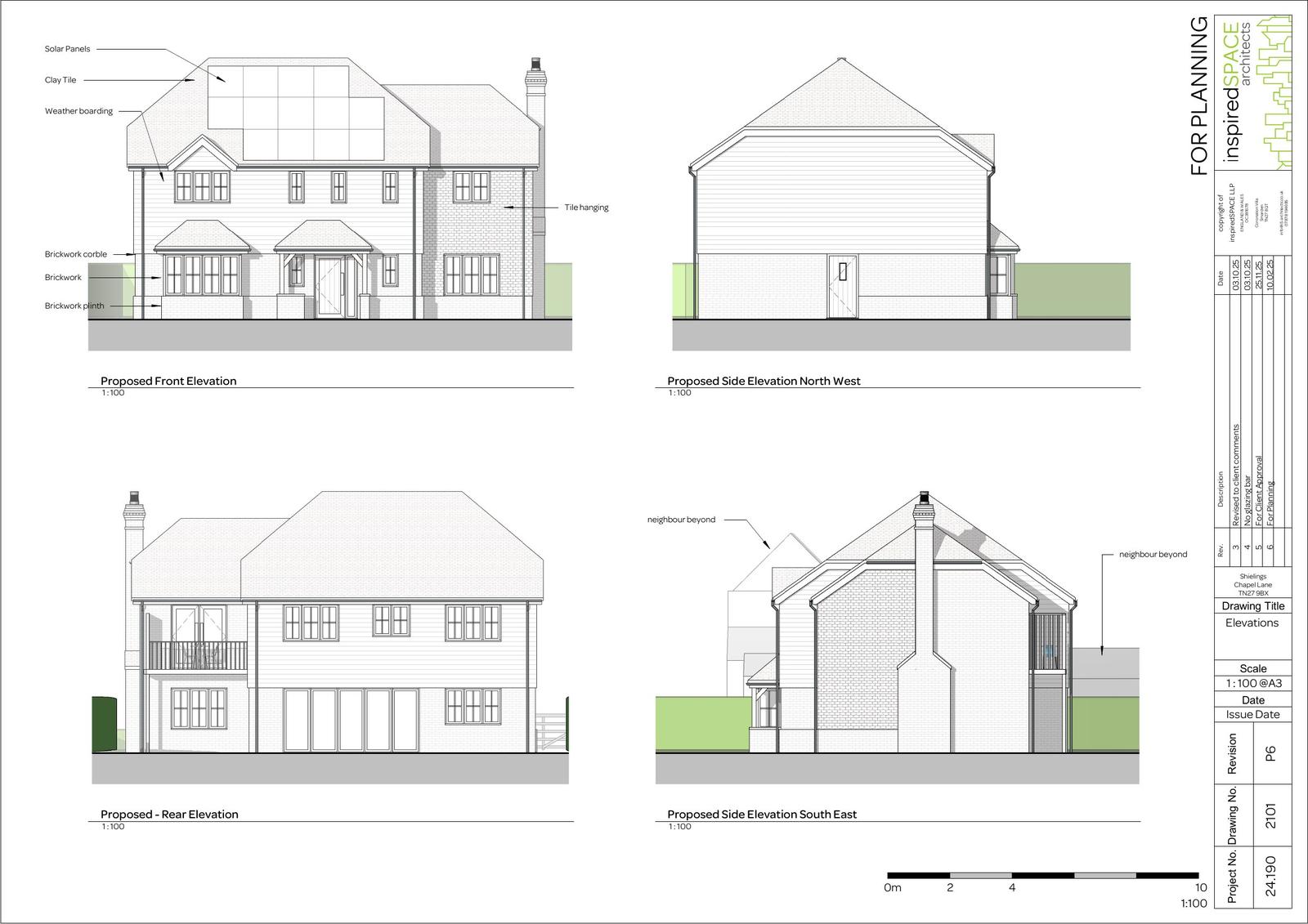
Application Reference PA/2026/0362 Site Address Shielings, Chapel Lane, Egerton, Ashford, TN27 9BX Proposal Erection of a two storey replacement dwelling with associated landscaping following the demolition of the existing dwelling (Self Build) Date Valid 25/2/2026 Application Status Under Consultation Decision

Documents

Uncategorised
Archived · Original link
Uncategorised
Archived · Original link
Uncategorised
Archived · Original link
Uncategorised
Archived · Original link
Uncategorised
Archived · Original link
Uncategorised
Archived · Original link
Uncategorised
Archived · Original link
Uncategorised
Archived · Original link
Uncategorised
Archived · Original link

Have your say

Your comment matters. Councils must consider every representation that raises material planning considerations.

Write a comment