← London Borough of Barking and Dagenham

Status

Pending New housing
Received
Not recorded
New homes
1

Full proposal

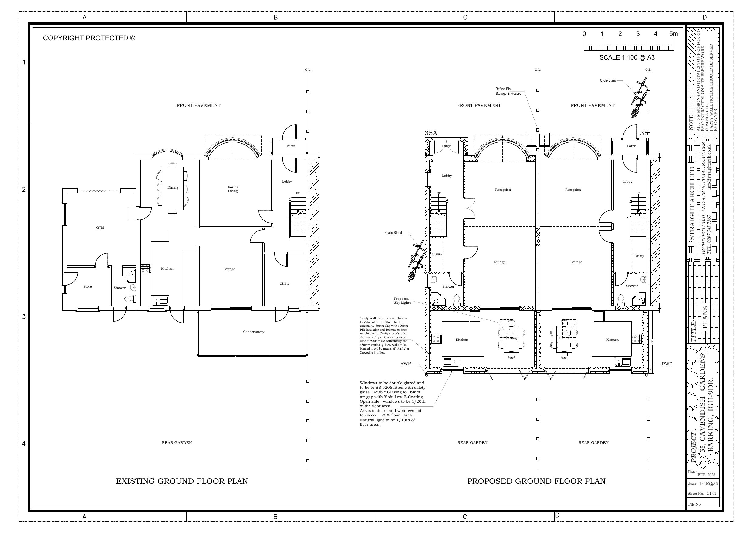
Demolition of existing side extensions and the construction of a new two storey 4x bed dwelling including single storey rear extensions and rear dormer extensions for both the host and new dwellings

Documents

Application Form Redacted
Application Form / Certificate of Ownership
Not yet archived · Original link
Design and Access Statement
Archived · Original link
Existing and Proposed Block Plans
Plans / Drawings
Not yet archived · Original link
Existing and Proposed First Floor Plans
Plans / Drawings
Not yet archived · Original link
Existing and Proposed Front Elevations
Plans / Drawings
Not yet archived · Original link
Existing and Proposed Loft Plans
Plans / Drawings
Not yet archived · Original link
Existing and Proposed Rear Elevations
Plans / Drawings
Not yet archived · Original link
Plans / Drawings
Archived · Original link
Existing and Proposed Side Elevation A
Plans / Drawings
Not yet archived · Original link
Existing and Proposed Side Elevation B
Plans / Drawings
Not yet archived · Original link
Site Location Plan
Site Location Plan
Not yet archived · Original link

Have your say

Your comment matters. Councils must consider every representation that raises material planning considerations.

Write a comment