← London Borough of Barnet

Status

Prior Approval Not Required House extension
Received
02 Jan 2026
New homes
0

Full proposal

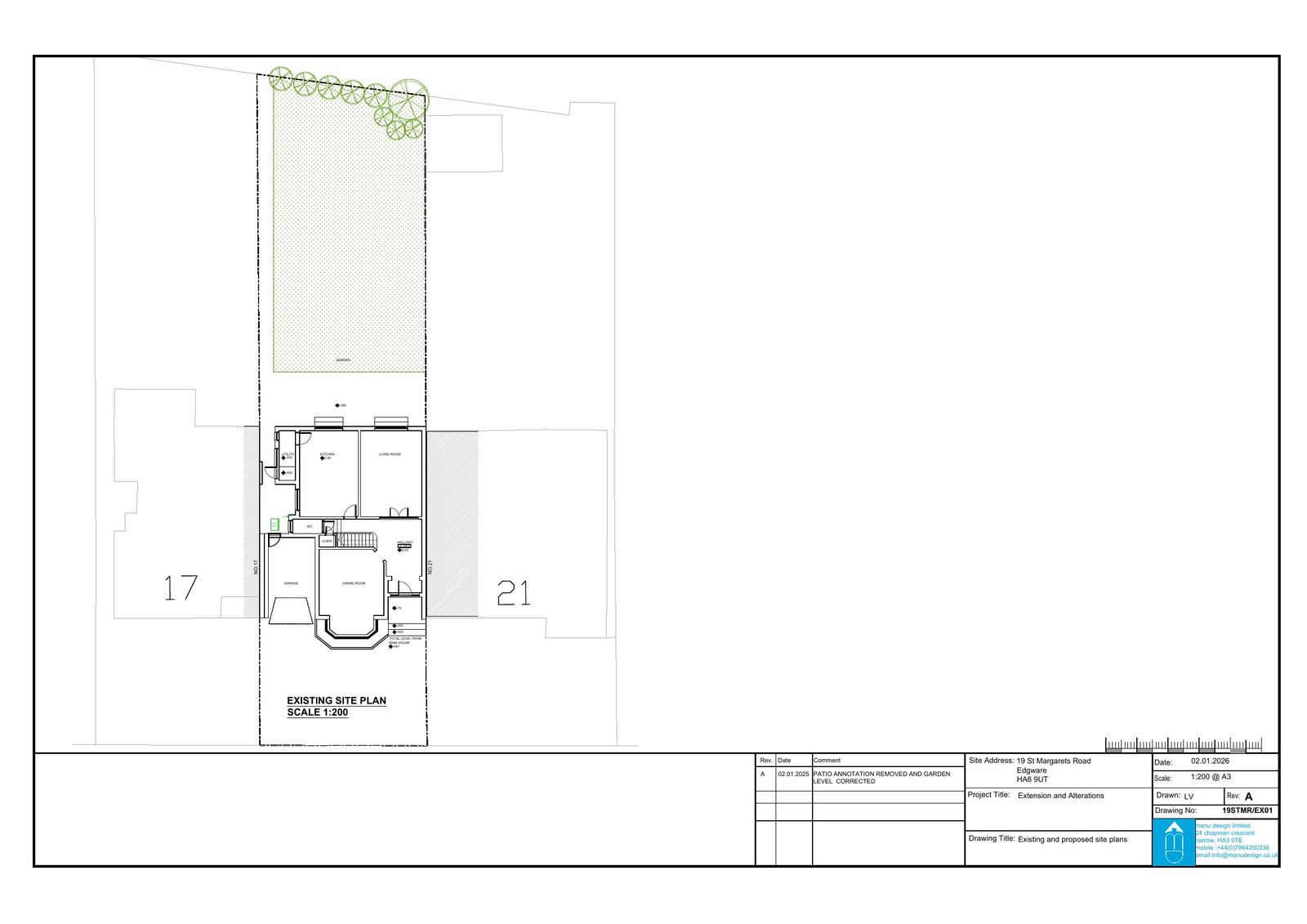
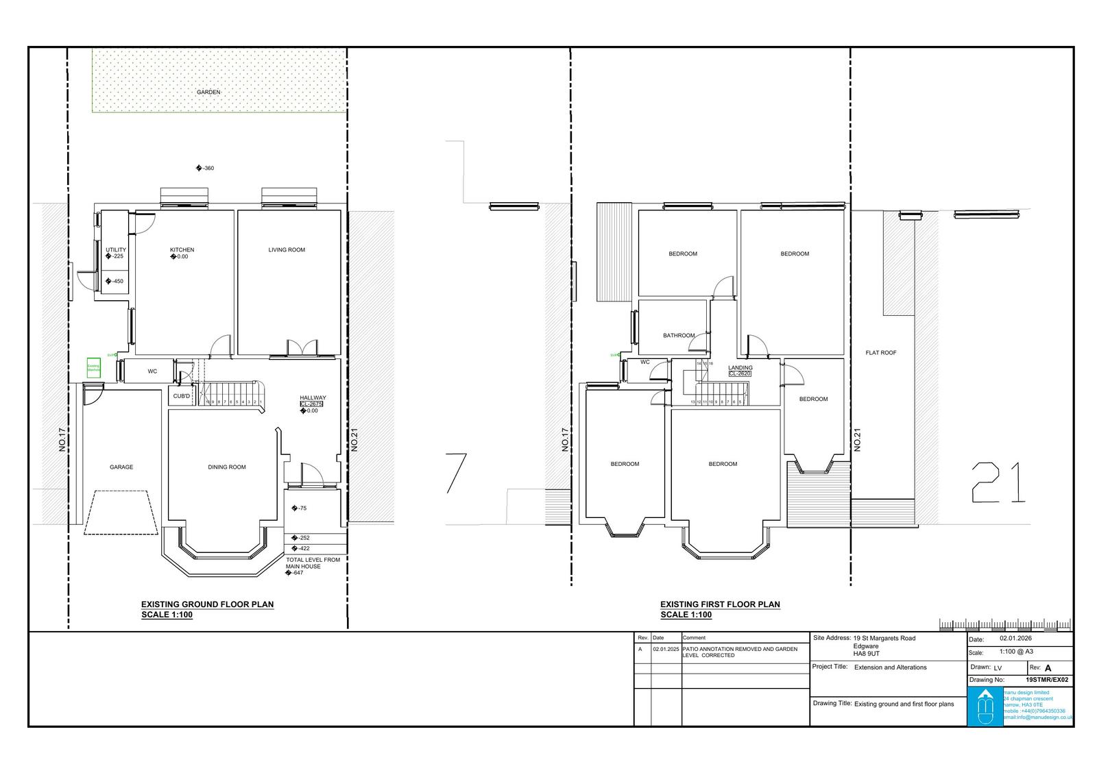
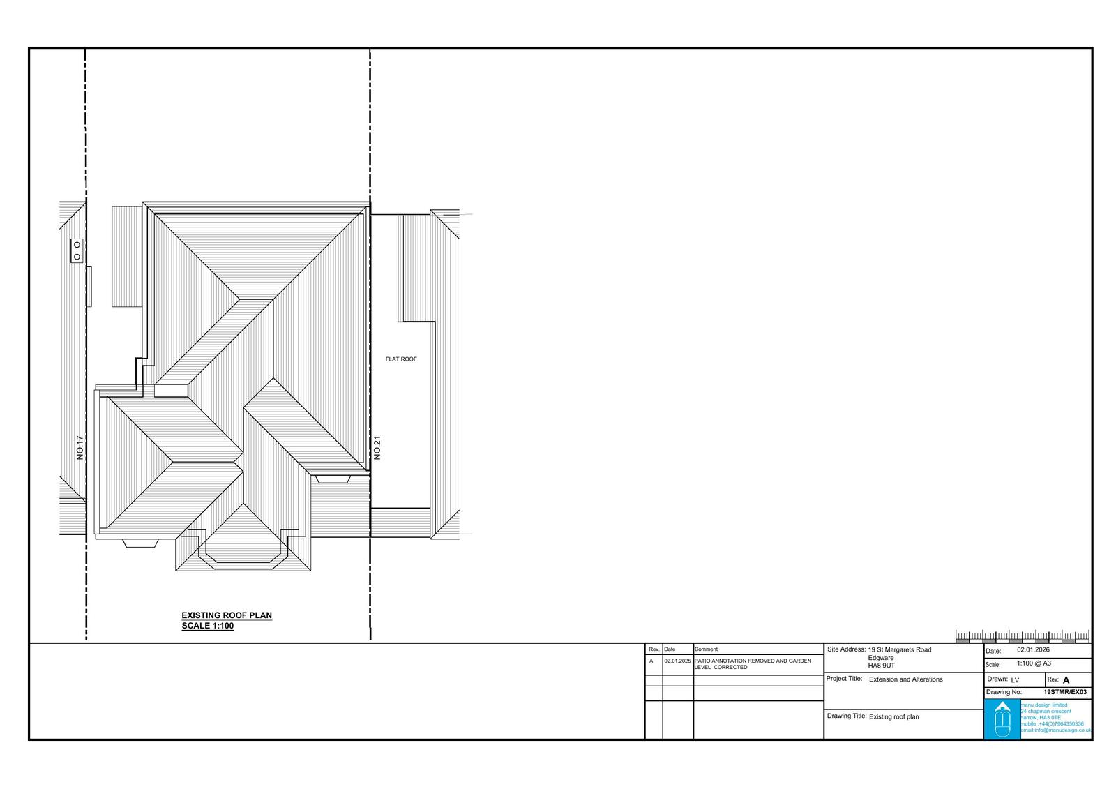
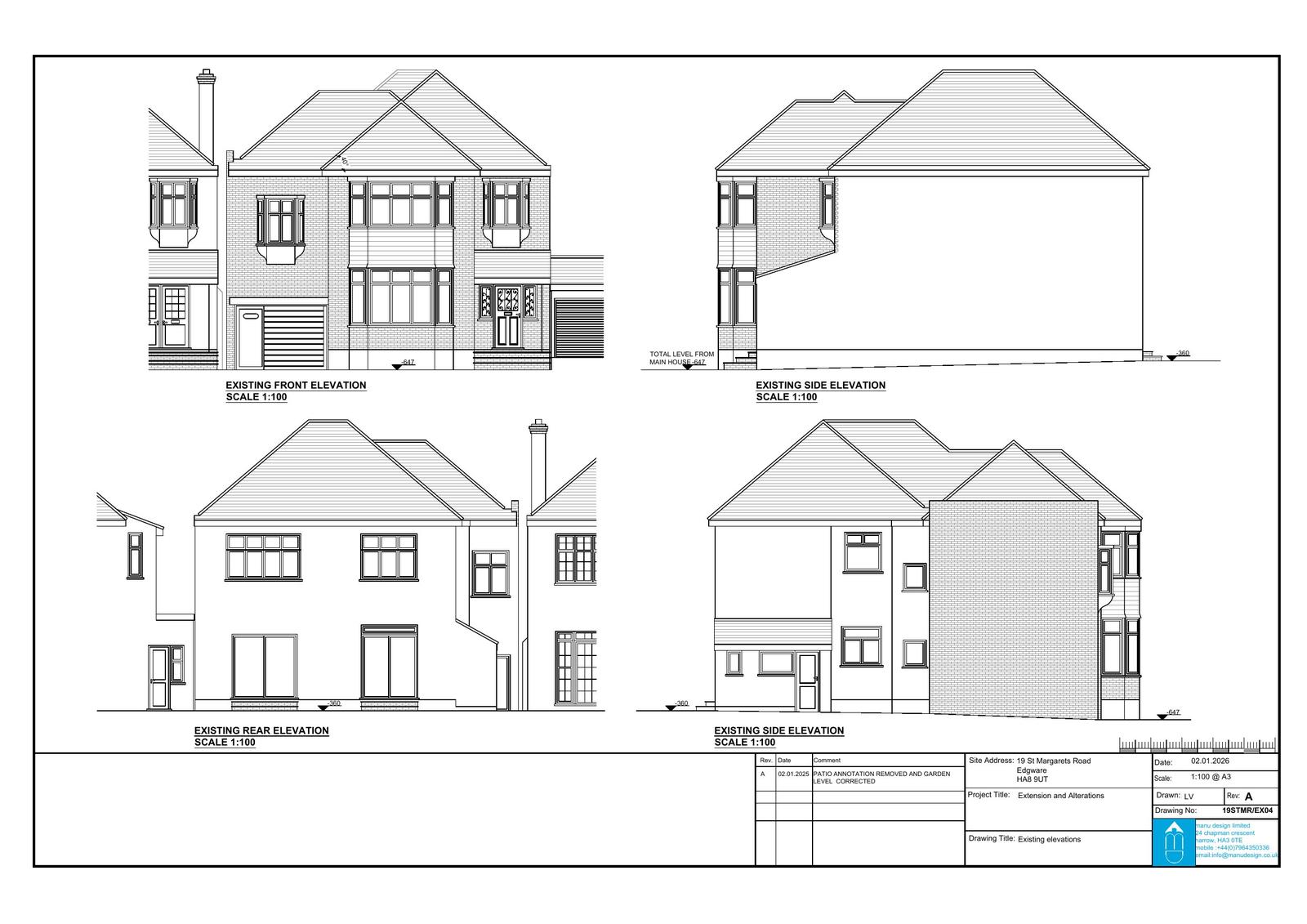
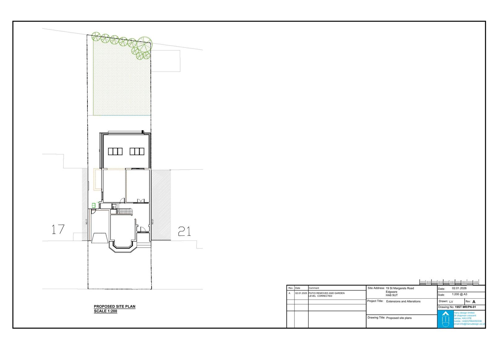
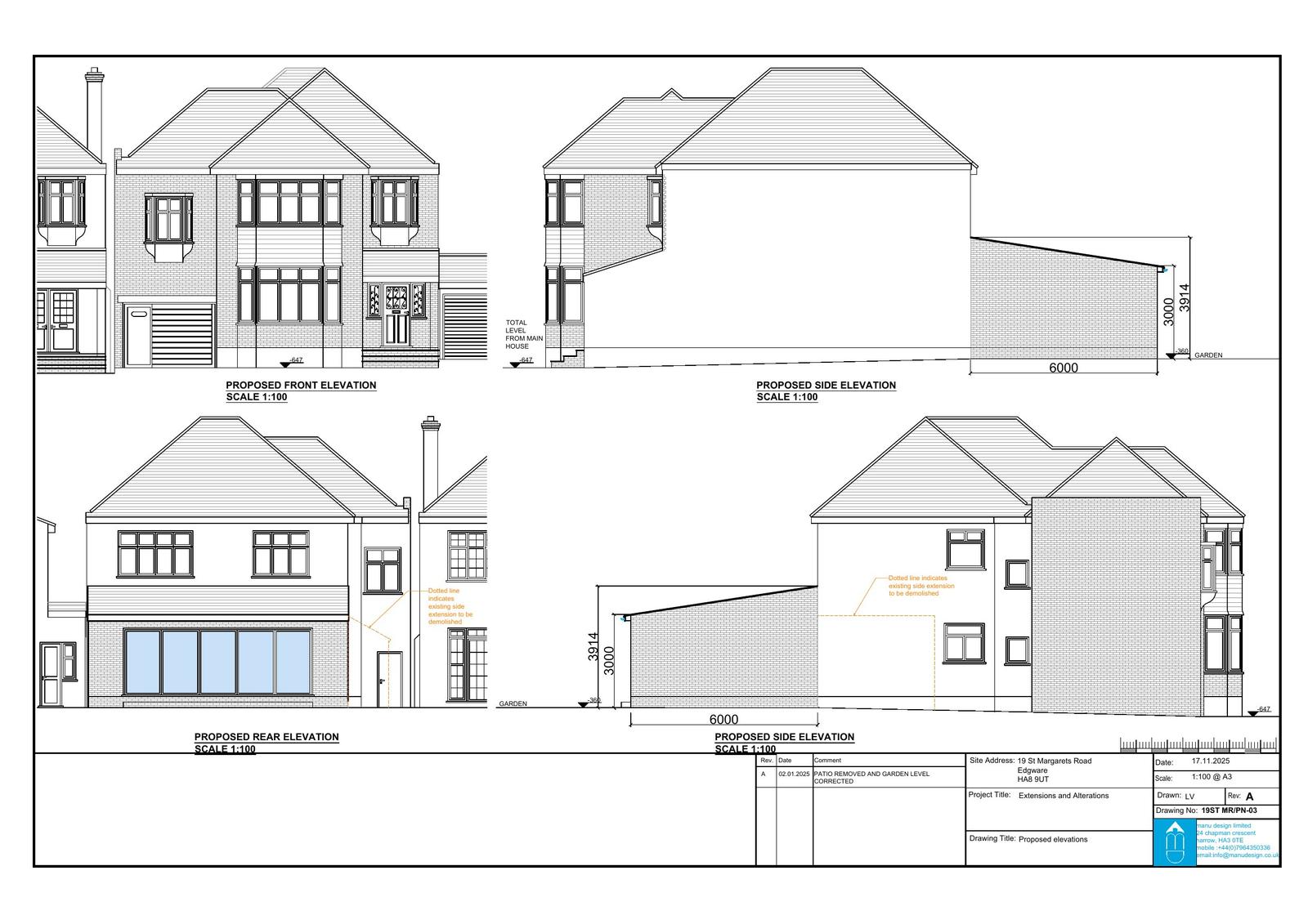
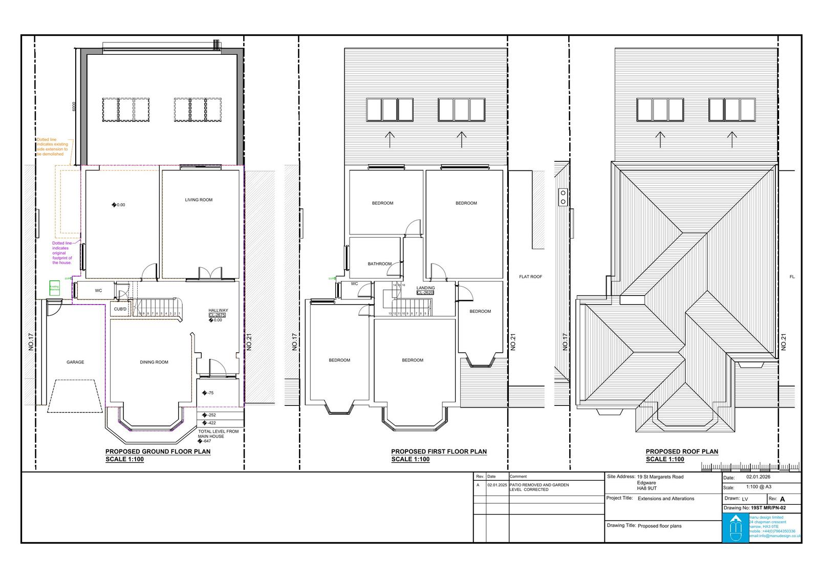
Single storey rear extension with a proposed depth of 6.00m, maximum height of 3.91m and an eaves height of 3.00m following the demolition of the existing side extension

Documents

Report
Archived · Original link
Decision Notice
Archived · Original link
Block plan
Archived · Original link
Drawing
Archived · Original link
Drawing
Archived · Original link
Application Document
Archived · Original link
Block plan
Archived · Original link
Drawing
Archived · Original link
Drawing
Archived · Original link
Site Location Plan
Archived · Original link

Have your say

Your comment matters. Councils must consider every representation that raises material planning considerations.

Write a comment