← Barnsley Metropolitan Borough Council
2025/0253
Barnsley Metropolitan Borough Council
Status
Withdrawn
House extension
Received
24 Mar 2025
New homes
0
Full proposal
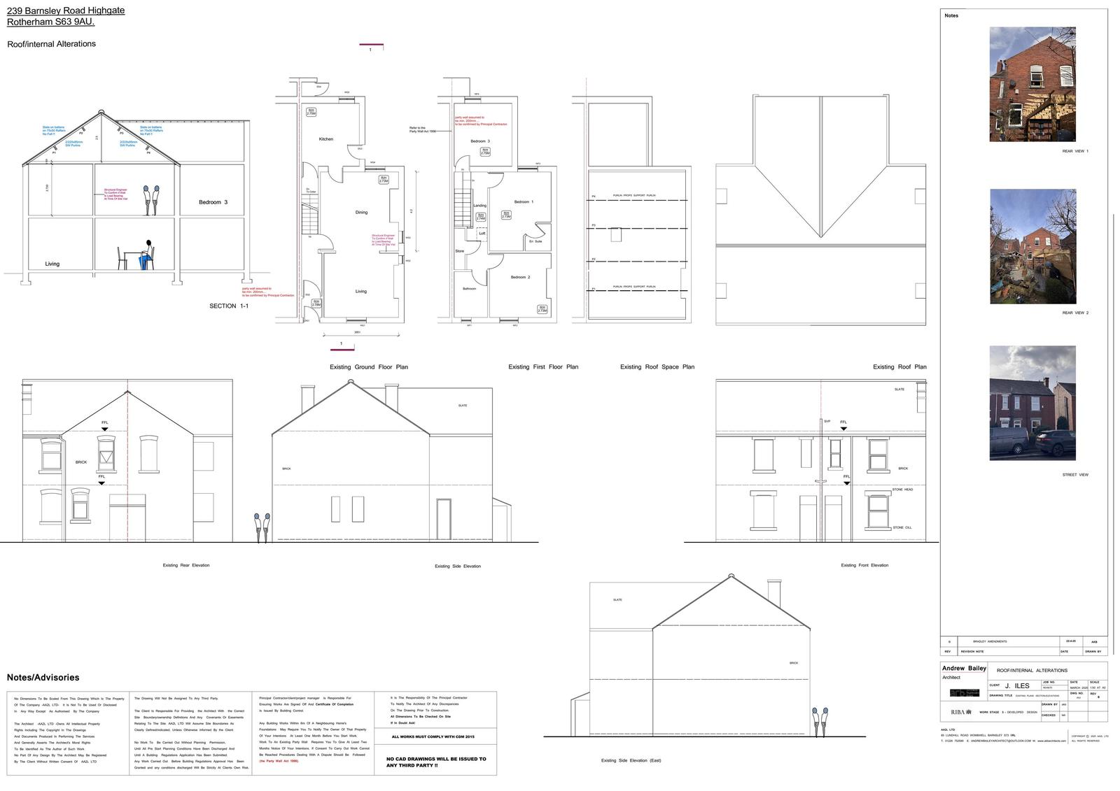
Creation of rear dormer to create bedroom in roofspace, and install of front roof lights to dwelling
Documents
Uncategorised
Archived
· Original link
Uncategorised
Archived
· Original link
Uncategorised
Archived
· Original link
Uncategorised
Archived
· Original link
Have your say
Your comment matters. Councils must consider every representation that raises material planning considerations.