← Barnsley Metropolitan Borough Council
2025/0016
Barnsley Metropolitan Borough Council
Status
Registered
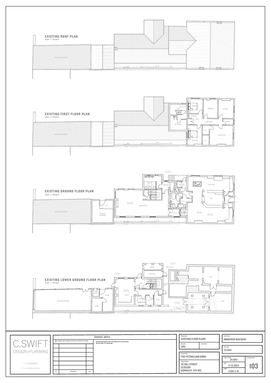
Change of use
Received
10 Jan 2025
New homes
7
Full proposal
Change of use of public house to 7no. holiday lets, including demolition of part of existing building (Amended Plans).
Documents
Uncategorised
Archived
· Original link
Uncategorised
Archived
· Original link
Uncategorised
Archived
· Original link
Have your say
Your comment matters. Councils must consider every representation that raises material planning considerations.