← Barnsley Metropolitan Borough Council
2025/0240
Barnsley Metropolitan Borough Council
Status
Registered
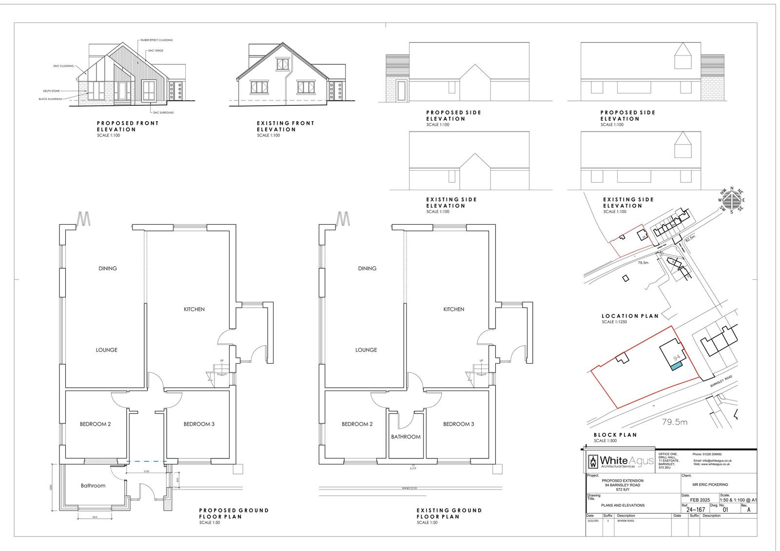
House extension
Received
21 Mar 2025
New homes
0
Full proposal
Single storey front extension and application of timber render to front of dwelling
Documents
Have your say
Your comment matters. Councils must consider every representation that raises material planning considerations.