← Barnsley Metropolitan Borough Council
2025/0270
Barnsley Metropolitan Borough Council
Status
Appeal Decided
House extension
Received
27 Mar 2025
New homes
0
Full proposal
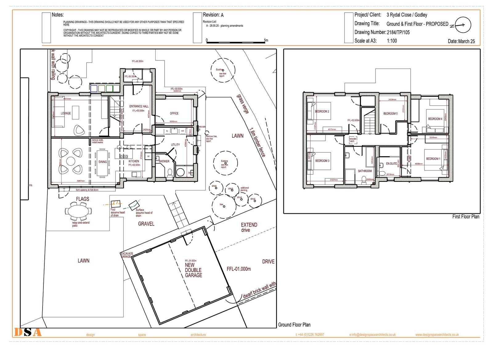
Demolition of existing detached garage, erection of a detached double garage, erection of a two-storey side extension, single storey front extension and first floor rear extension, conversion of the existing integral garage, erection of a 1.8m timber boundary fence and alterations to hard landscaping.
Documents
Uncategorised
Archived
· Original link
Uncategorised
Archived
· Original link
Uncategorised
Archived
· Original link
Uncategorised
Archived
· Original link
Uncategorised
Archived
· Original link
Have your say
Your comment matters. Councils must consider every representation that raises material planning considerations.