← Barnsley Metropolitan Borough Council
2026/0079
Barnsley Metropolitan Borough Council
Status
Registered
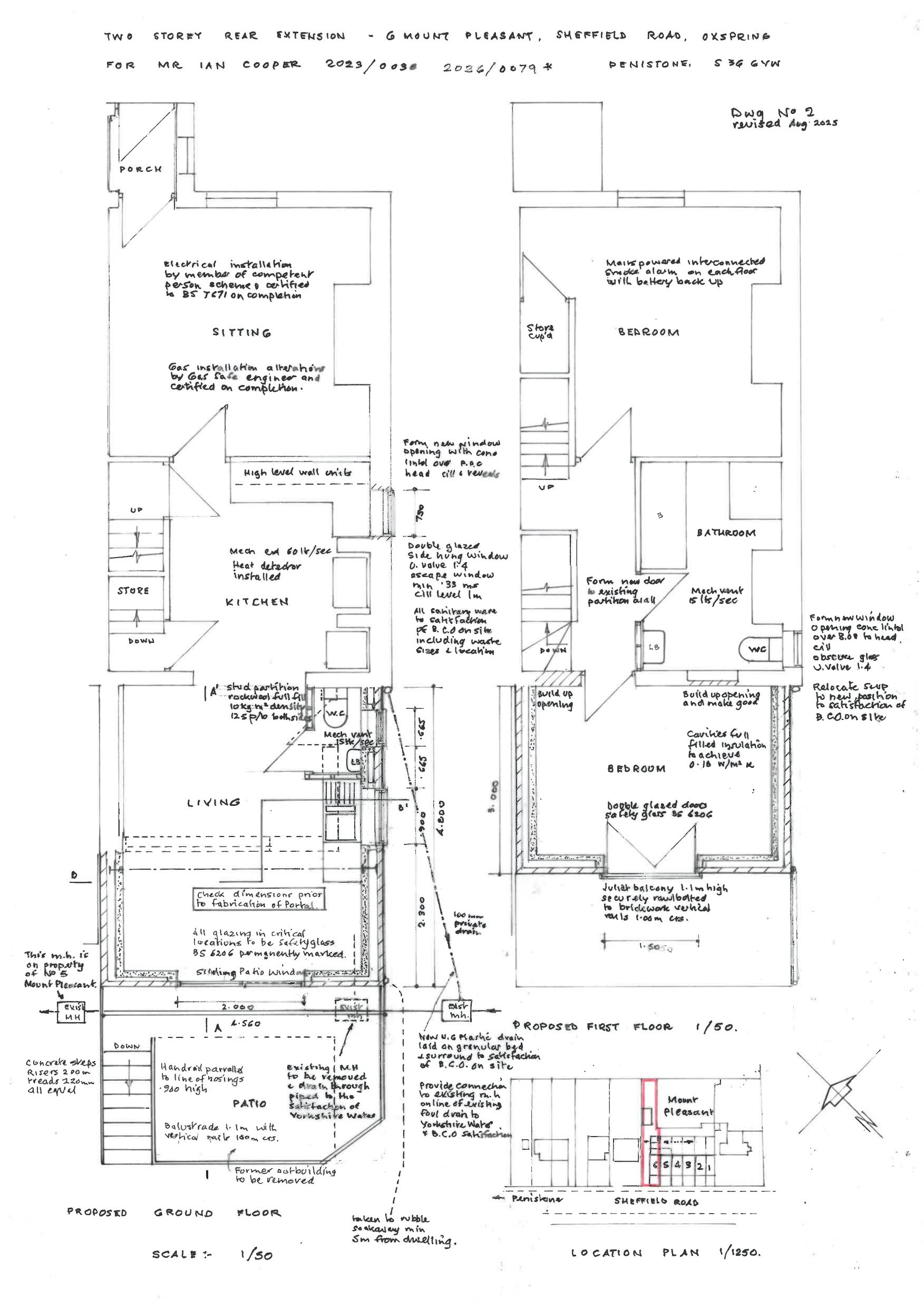
House extension
Received
02 Feb 2026
New homes
0
Full proposal
Install of glass panels to first floor veranda area to rear of dwelling to create balcony.
Documents
Have your say
Your comment matters. Councils must consider every representation that raises material planning considerations.