← Barnsley Metropolitan Borough Council

Status

Registered Change of use
Received
06 Feb 2026
New homes
2

Full proposal

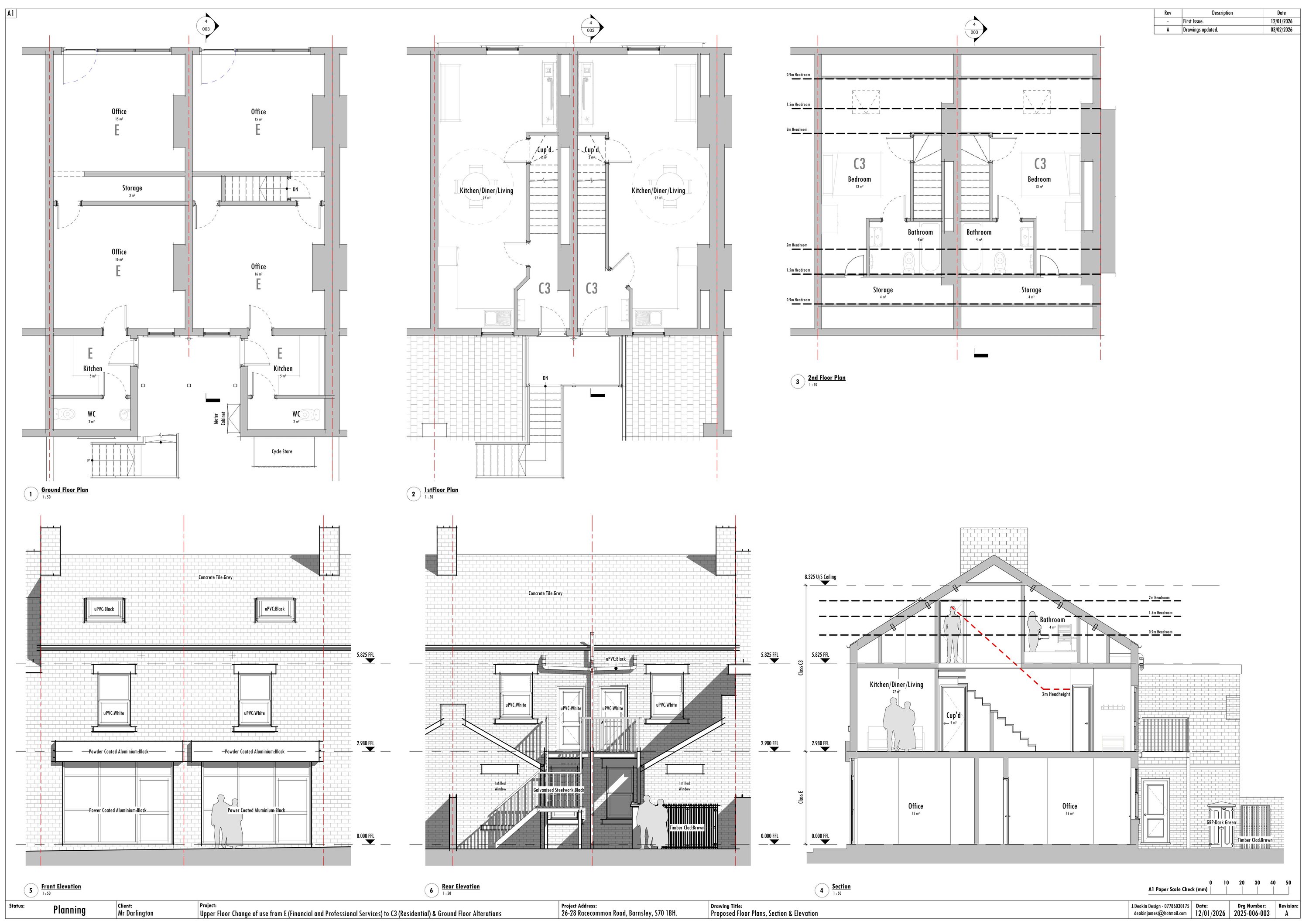
Change of use of the upper floors of the existing building from Class E to create 2x residential units (Use Class C3) with associated works including erection of external staircase to rear; installation of windows/door, and formation of car parking; and alterations to the existing ground floor commercial frontage.

Documents

20260092 Application Form Redacted.pdf ( 0.4 MB )
Uncategorised
Not yet archived · Original link
20260092 Consultee Biodiversity 1st.pdf ( 0.12 MB )
Uncategorised
Not yet archived · Original link
20260092 Consultee Biodiversity 2nd.pdf ( 0.12 MB )
Uncategorised
Not yet archived · Original link
20260092 Consultee Highways Development Control.pdf ( 0.13 MB )
Uncategorised
Not yet archived · Original link
20260092 Consultee Pollution Control.pdf ( 0.31 MB )
Uncategorised
Not yet archived · Original link
20260092 Design and Access Statement.pdf ( 0.1 MB )
Uncategorised
Not yet archived · Original link
20260092 Existing Plans and Elevations.pdf ( 2.28 MB )
Uncategorised
Not yet archived · Original link
20260092 Planning Statement.pdf ( 0.1 MB )
Uncategorised
Not yet archived · Original link

Have your say

Your comment matters. Councils must consider every representation that raises material planning considerations.

Write a comment