← Barnsley Metropolitan Borough Council
2026/0139
Barnsley Metropolitan Borough Council
Status
Registered
House extension
Received
Last month
New homes
0
Full proposal
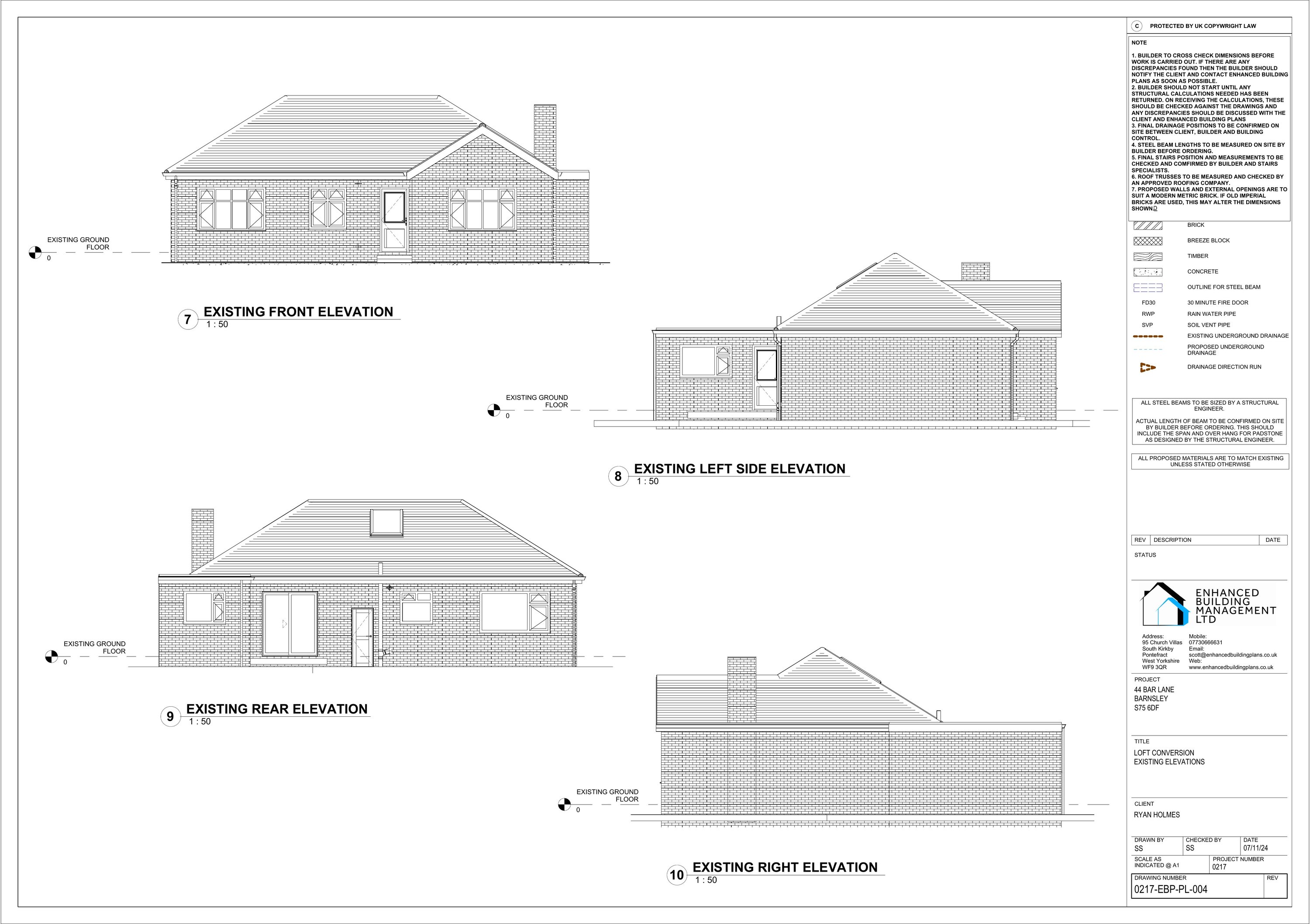
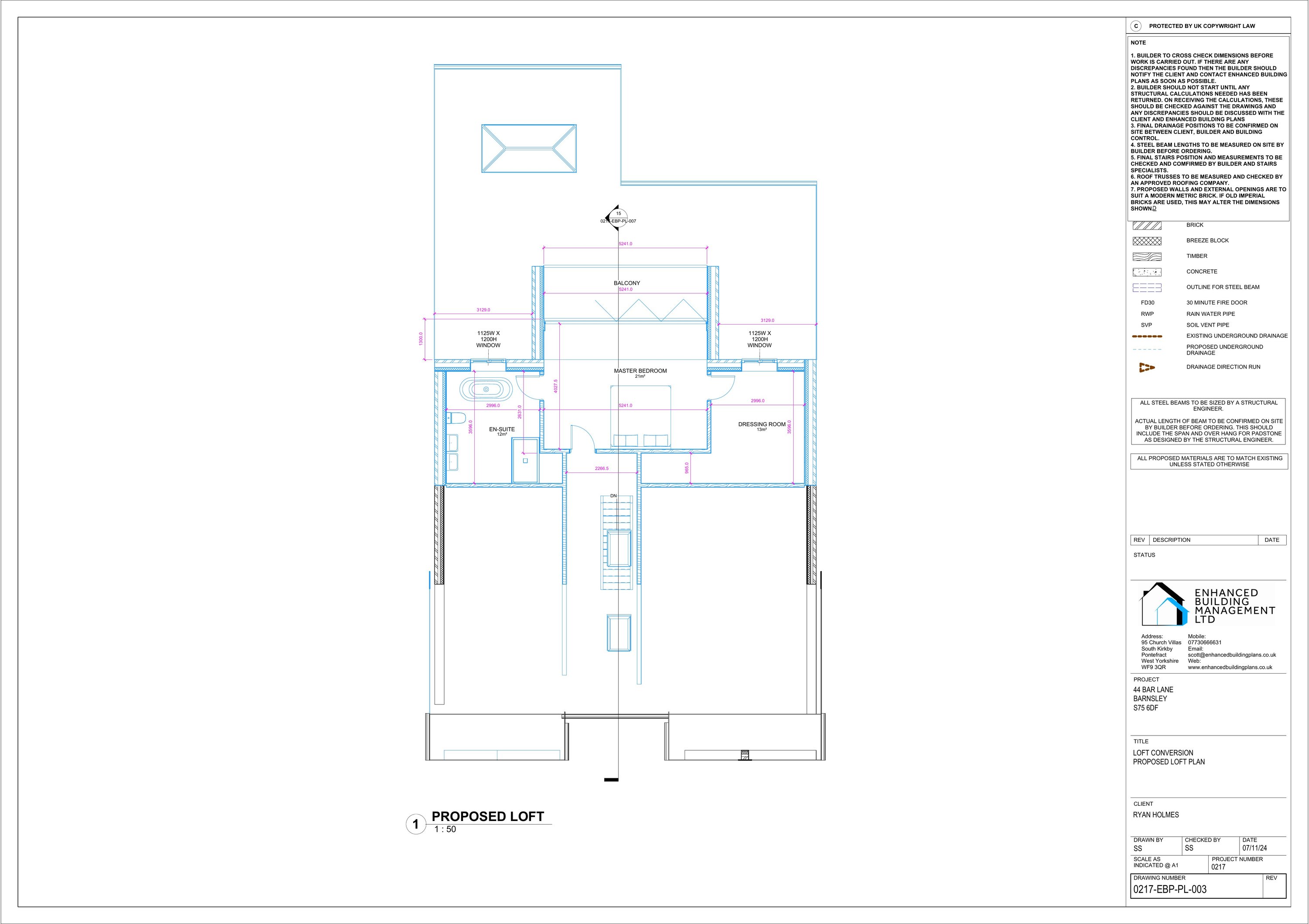
Removal of existing single storey rear extension and detached single garage, and erection of front and rear extensions, raising of roof to enable loft conversion, and install balcony to rear of dwelling
Documents
Have your say
Your comment matters. Councils must consider every representation that raises material planning considerations.