← Barnsley Metropolitan Borough Council

Status

Registered House extension
Received
Last month
New homes
0

Full proposal

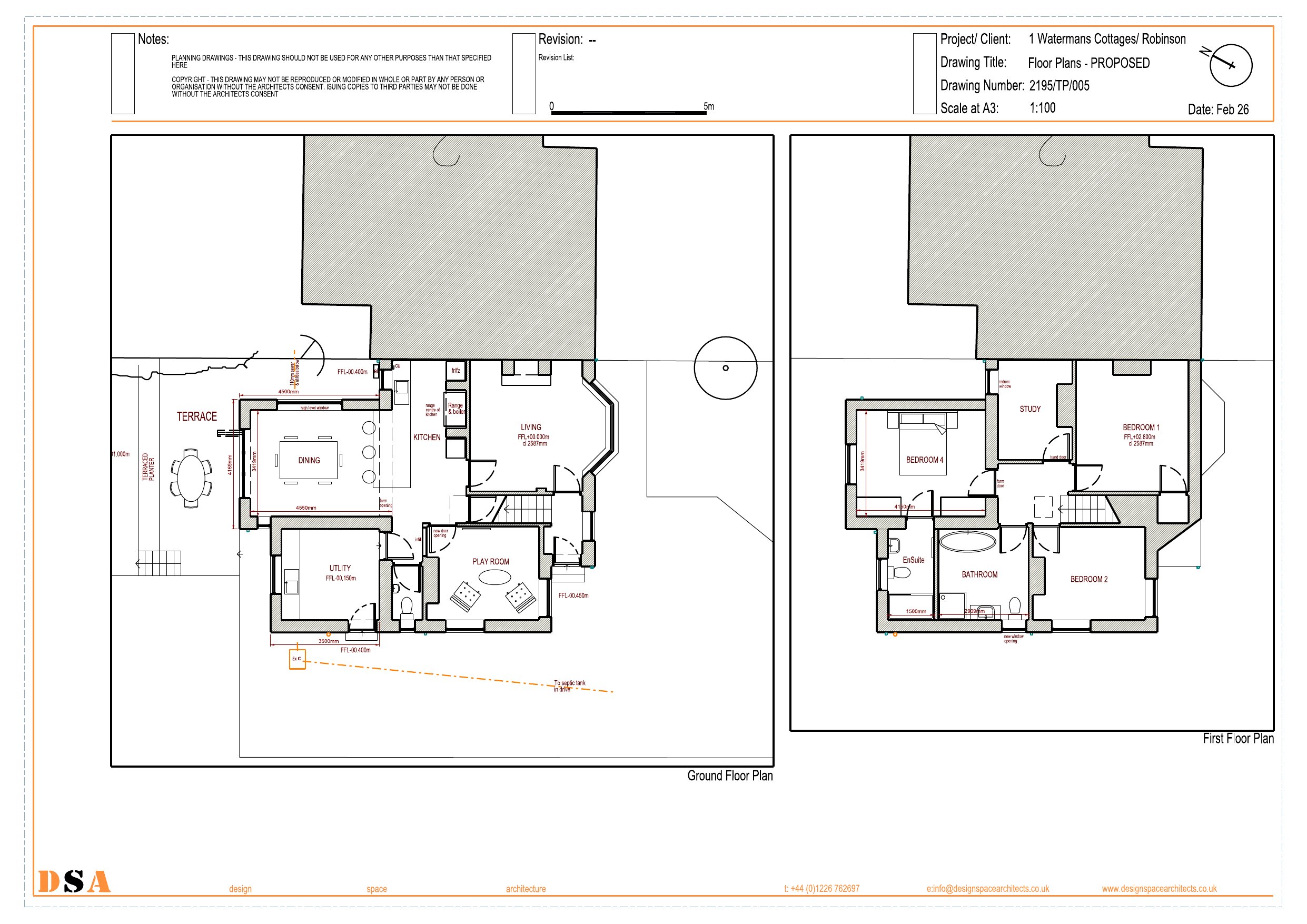
Two storey rear extension to dwelling

Documents

20260146 Application Form Redacted.pdf ( 0.23 MB )
Uncategorised
Not yet archived · Original link
20260146 Design and Access Statement.pdf ( 4.49 MB )
Uncategorised
Not yet archived · Original link
20260146 Existing Elevations.pdf ( 0.11 MB )
Uncategorised
Not yet archived · Original link
20260146 Existing Plans.pdf ( 0.13 MB )
Uncategorised
Not yet archived · Original link
20260146 Location Plan.pdf ( 0.08 MB )
Uncategorised
Not yet archived · Original link
20260146 Proposed Elevations.pdf ( 0.11 MB )
Uncategorised
Not yet archived · Original link

Have your say

Your comment matters. Councils must consider every representation that raises material planning considerations.

Write a comment