← Barnsley Metropolitan Borough Council
2026/0159
Barnsley Metropolitan Borough Council
Status
Registered
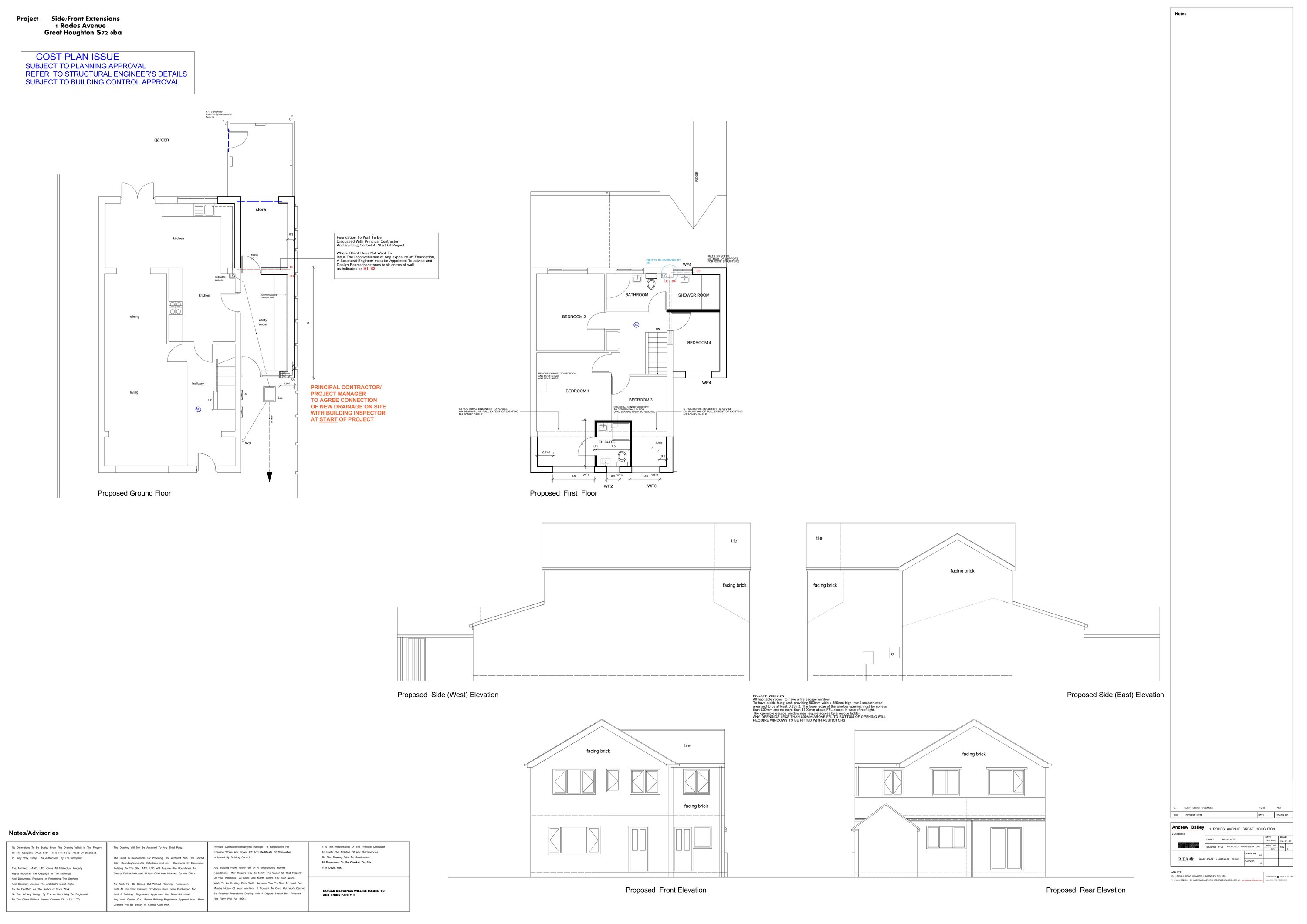
House extension
Received
Last month
New homes
0
Full proposal
Erection of first floor front and side extensions to dwelling
Documents
Have your say
Your comment matters. Councils must consider every representation that raises material planning considerations.