← Barnsley Metropolitan Borough Council
2026/0170
Barnsley Metropolitan Borough Council
Status
Registered
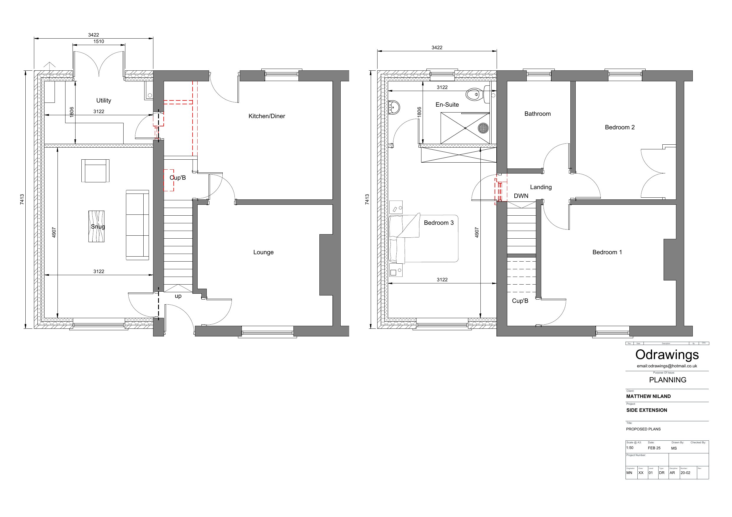
House extension
Received
Last month
New homes
0
Full proposal
Erection of 2 storey side extension to dwelling
Documents
Have your say
Your comment matters. Councils must consider every representation that raises material planning considerations.