← Barnsley Metropolitan Borough Council
2026/0177
Barnsley Metropolitan Borough Council
Status
Registered
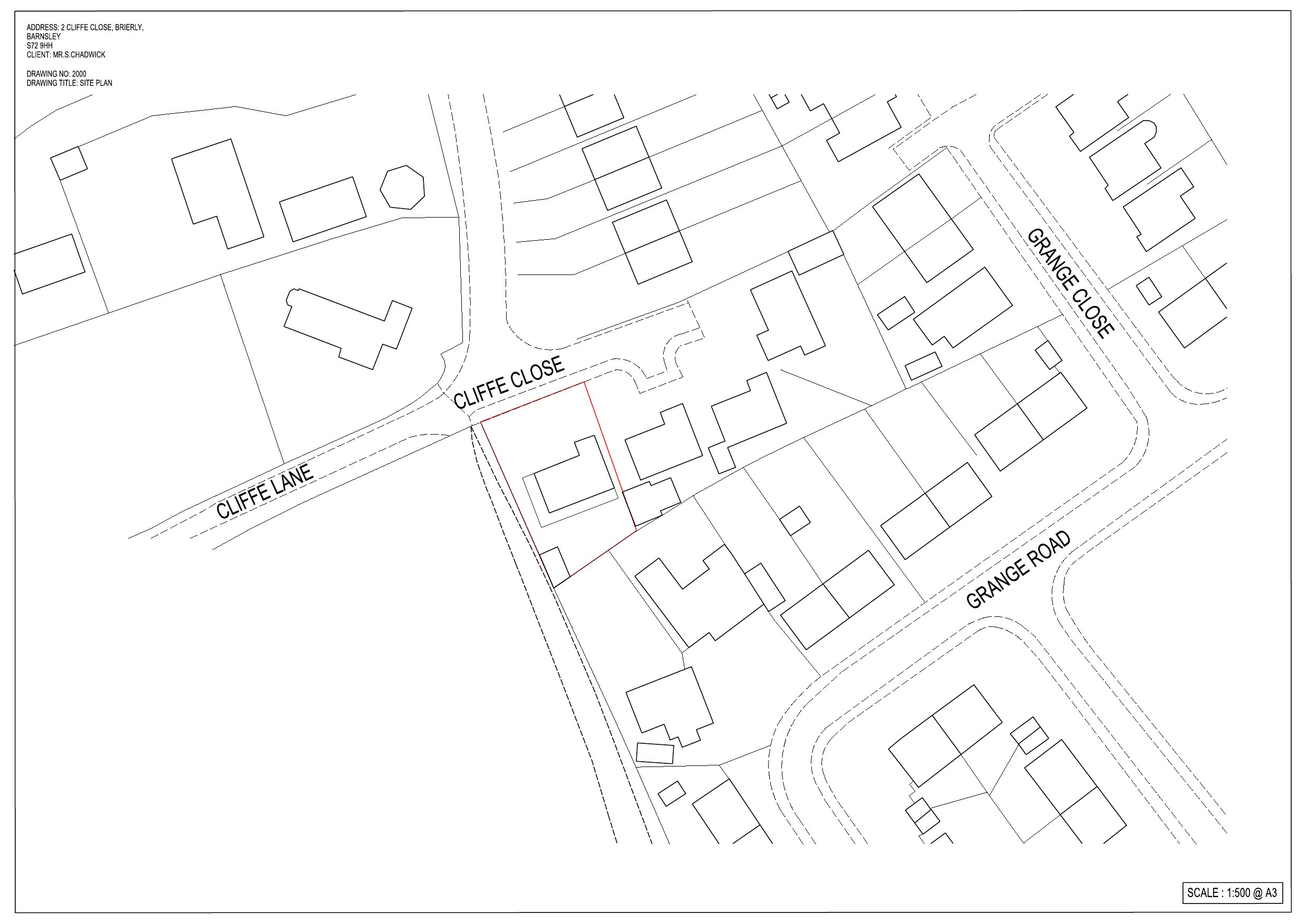
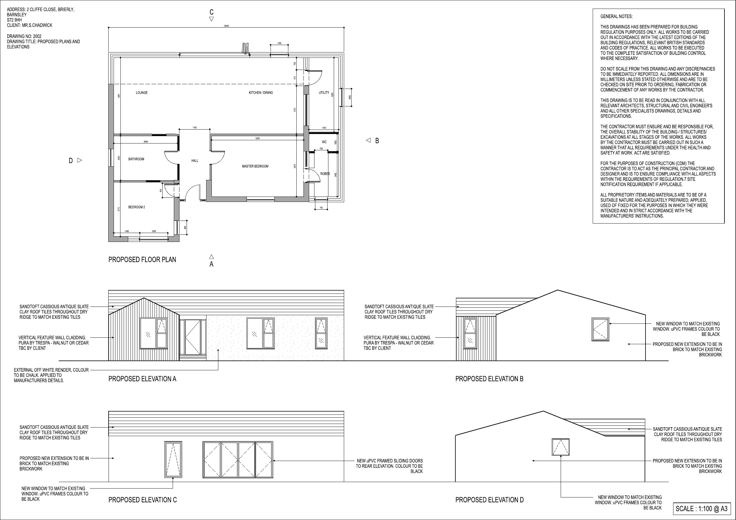
House extension
Received
Last month
New homes
0
Full proposal
Erection of single storey rear and side extensions, and cladding to front of dwelling
Documents
Have your say
Your comment matters. Councils must consider every representation that raises material planning considerations.