← Barnsley Metropolitan Borough Council
2026/0182
Barnsley Metropolitan Borough Council
Status
Registered
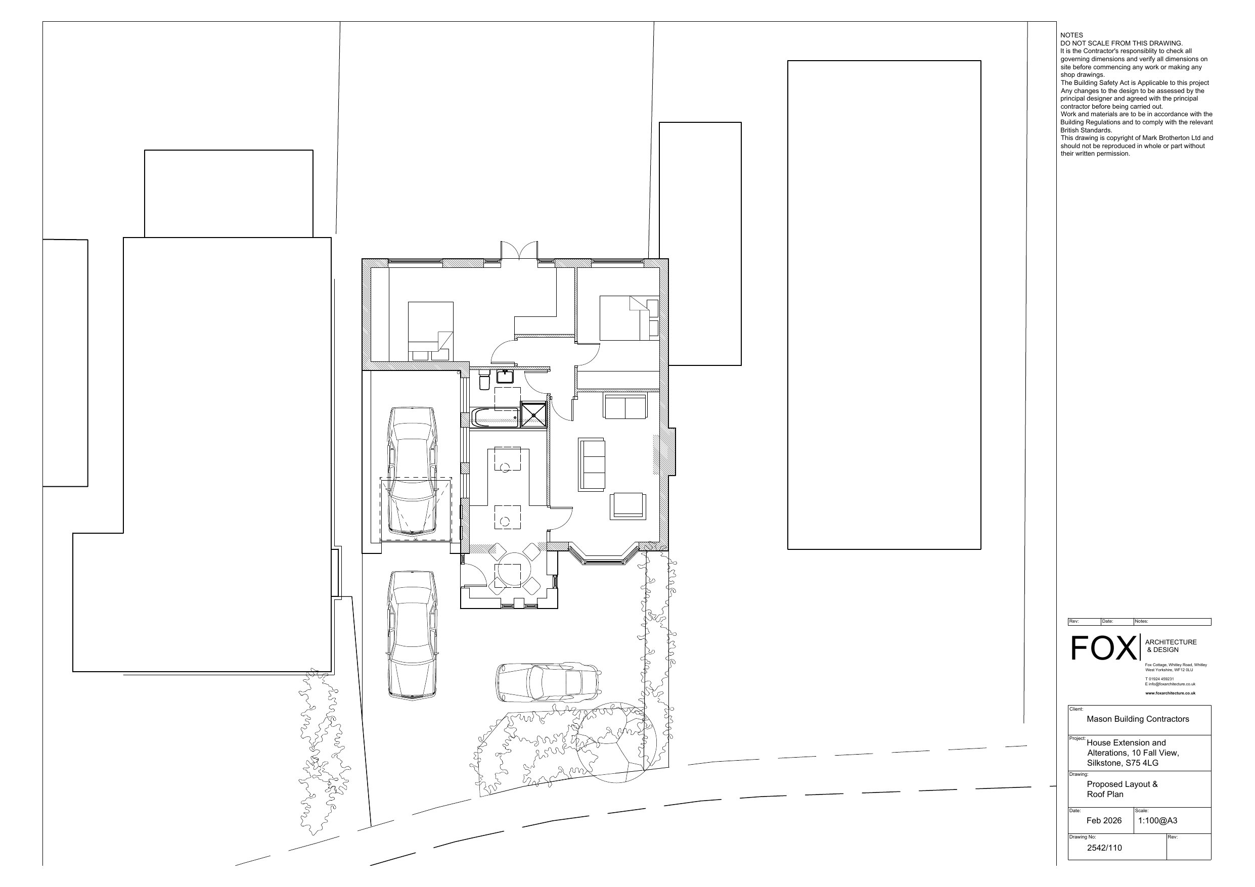
House extension
Received
Last month
New homes
0
Full proposal
Erection of single storey side extension (to form integrated garage), front extension and front bay window to dwelling.
Documents
Have your say
Your comment matters. Councils must consider every representation that raises material planning considerations.