← Basildon Council

Status

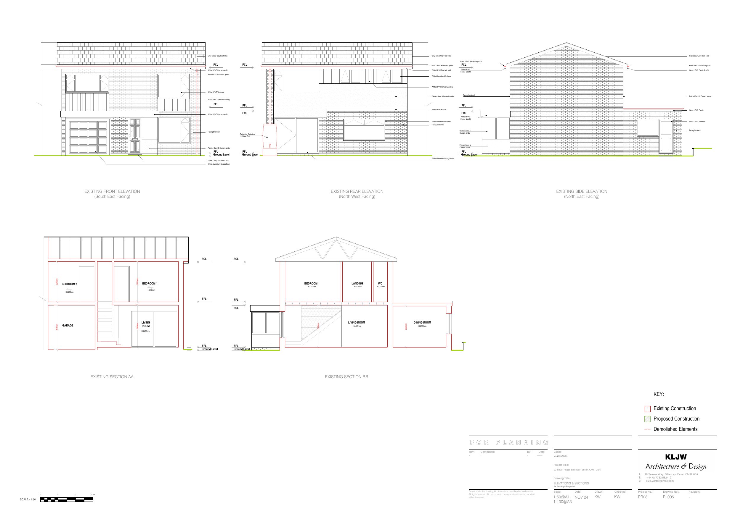
Unknown House extension
Received
13 Jan 2025
New homes
0

Full proposal

Part single and part two storey front and rear extensions, garage conversion and alterations to elevations

Have your say

Your comment matters. Councils must consider every representation that raises material planning considerations.

Write a comment