← Basildon Council

Status

Awaiting decision House extension
Received
16 Jan 2026
New homes
0

Full proposal

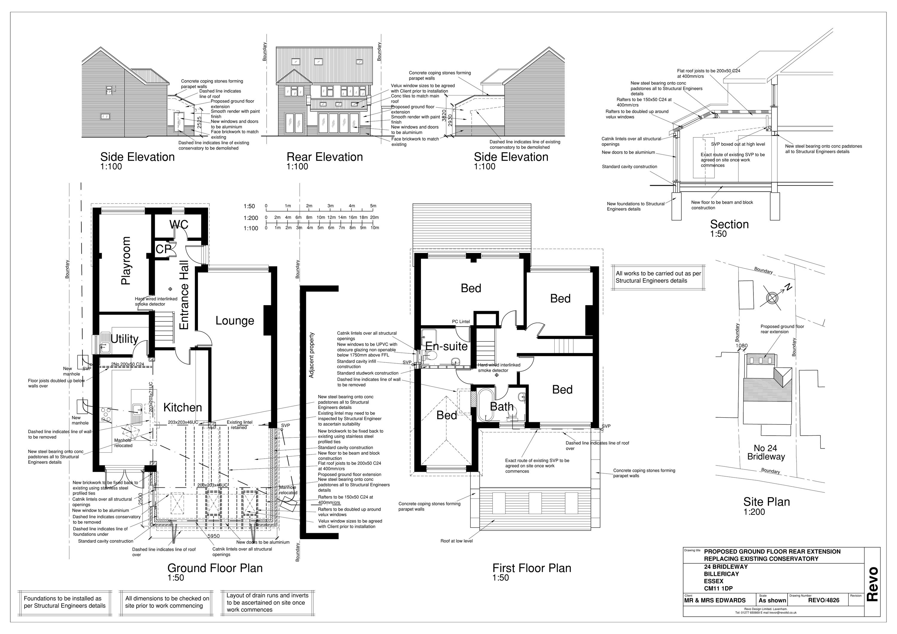
Construction of a ground floor rear extension

Have your say

Your comment matters. Councils must consider every representation that raises material planning considerations.

Write a comment