← Basildon Council

Status

Awaiting decision New housing
Received
Last month
New homes
3

Full proposal

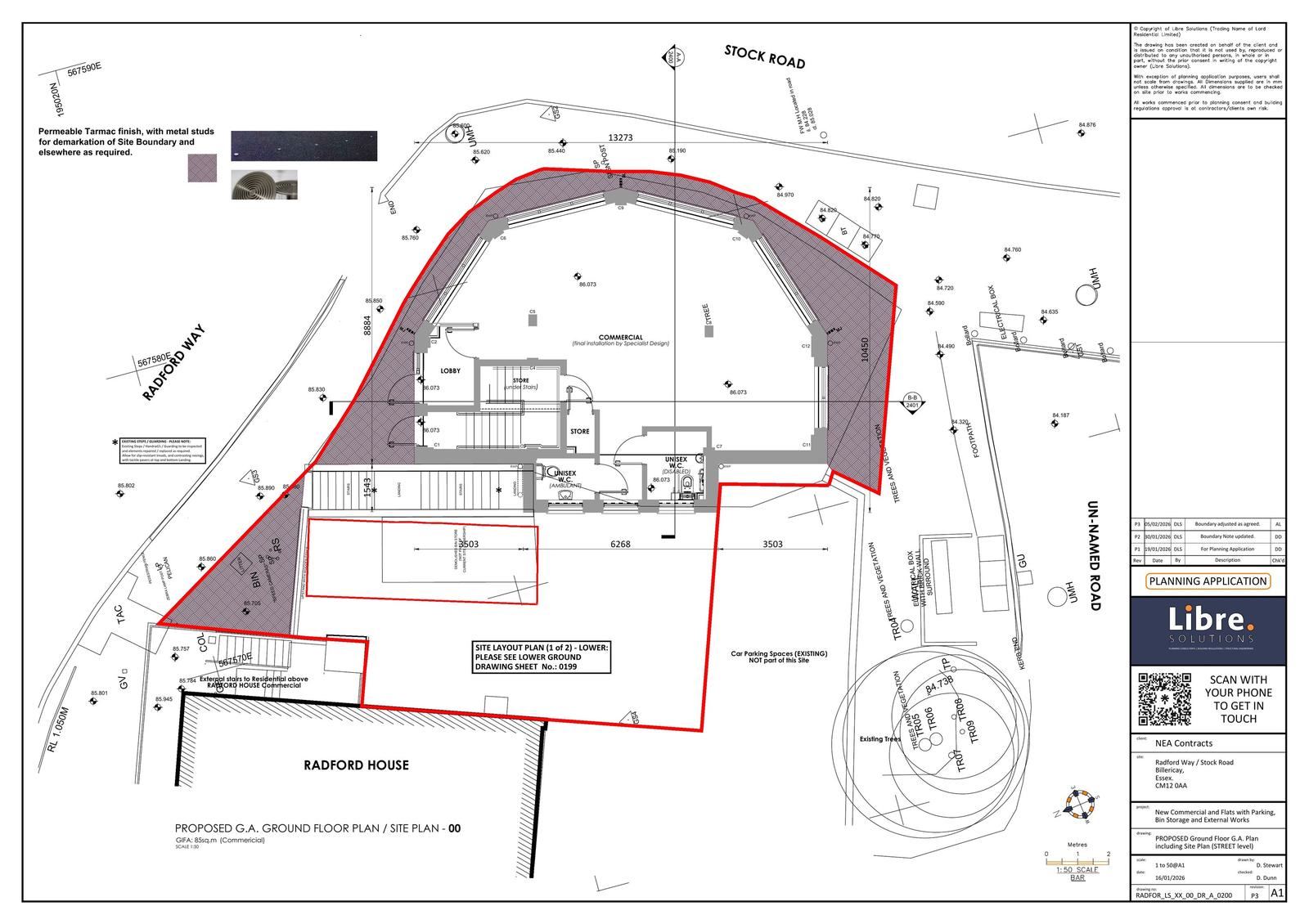
Construct four storey building comprising ground floor commercial space (Class E), 2 no. two bed flats and 1 no. one bed flat in the floors above, and two basement car parking spaces.

Documents

APPLICATION FORM - WITHOUT PERSONAL DATA
Application Form
Not yet archived · Original link
PLANNING STATEMENT
BackGround Papers - Redacted
Not yet archived · Original link
PROPOSED CROSS-SECTION A-A
Drawing
Not yet archived · Original link
PROPOSED CROSS-SECTION B-B
Drawing
Not yet archived · Original link
PROPOSED FIRST FLOOR G.A. PLAN
Drawing
Not yet archived · Original link
PROPOSED FIRST FLOOR PLAN
Drawing
Not yet archived · Original link
PROPOSED G.A. CROSS-SECTIONS
Drawing
Not yet archived · Original link
PROPOSED G.A. CROSS-SECTIONS
Drawing
Not yet archived · Original link
PROPOSED G.A. ELEVATIONS SHEET 1 OF 2
Drawing
Not yet archived · Original link
PROPOSED G.A. ELEVATIONS SHEET 2 OF 2
Drawing
Not yet archived · Original link
PROPOSED NORTH AND WEST ELEVATIONS
Drawing
Not yet archived · Original link
PROPOSED ROOF G.A. PLAN
Drawing
Not yet archived · Original link
PROPOSED ROOF PLAN
Drawing
Not yet archived · Original link
PROPOSED SECOND FLOOR G.A. PLAN
Drawing
Not yet archived · Original link
PROPOSED SECOND FLOOR PLAN
Drawing
Not yet archived · Original link
PROPOSED SOUTH AND EAST ELEVATIONS
Drawing
Not yet archived · Original link
PROPOSED STREET SCENE ELEVATION
Drawing
Not yet archived · Original link
PROPOSED THIRD FLOOR G.A. PLAN
Drawing
Not yet archived · Original link
PROPOSED THIRD FLOOR PLAN
Drawing
Not yet archived · Original link
THE LOCATION PLAN
Drawing
Not yet archived · Original link

Have your say

Your comment matters. Councils must consider every representation that raises material planning considerations.

Write a comment