← Basingstoke and Deane Borough Council

Status

Registered Change of use
Received
06 Feb 2025
New homes
0

Summary

Listed-building conversion of Hackwood Park to hotel, extensions, basements, lodges, energy centre and car parks.

Full proposal

Conversion of Hackwood Park from residential use to hotel and ancillary hotel use, including conversion of Mansion House, erection of extension to west, 2 no. new basements to north and south and minor alterations. Conversion of Stable Block to hotel rooms. Erection of hotel bedroom buildings to north and south of Stable Block and Car Park and Energy Centre. Demolition of 6 no. non listed structures and replacement with 12 no. hotel lodges. Construction of satellite support building for BOH facilities, car parking and decked visitors car park

Documents

ACCESS FOR ALL
Neighbour Comment
Not yet archived · Original link
APPLICATION FORM REDACTED
Application Form - Published
Not yet archived · Original link
ARCHAEOLOGY
Consultee Comment
Not yet archived · Original link
BASEMENT ALTERATIONS.
Drawing
Not yet archived · Original link
BASEMENT FLOOR
Drawing
Not yet archived · Original link
BASEMENT FLOOR CHRONOLOGICAL PLAN
Drawing
Not yet archived · Original link
BASINGSTOKE GAZETTE 20-02-2025
Press Notice
Not yet archived · Original link
CAR PARK BASEMENT PLAN
Drawing
Not yet archived · Original link
CAR PARK GARDEN PLAN
Drawing
Not yet archived · Original link
CIL FORM
CIL Form 1
Not yet archived · Original link
EXISTING AND PROPOSED NORTH CAR PARK
Drawing
Not yet archived · Original link
EXISTING BASEMENT
Drawing
Not yet archived · Original link
EXISTING COURTYARD ELEVATIONS 5, 6, 7, 8
Drawing
Not yet archived · Original link
EXISTING ELEVATIONS 1 AND 2
Drawing
Not yet archived · Original link
EXISTING ELEVATIONS 3 AND 4
Drawing
Not yet archived · Original link
EXISTING FIRST FLOOR PLAN
Drawing
Not yet archived · Original link
EXISTING MANOR GROUND FLOOR PLAN
Drawing
Not yet archived · Original link
EXISTING MANSION ELEVATIONS 1 AND 2
Drawing
Not yet archived · Original link
EXISTING MANSION ELEVATIONS 3 AND 4
Drawing
Not yet archived · Original link
EXISTING MANSION ELEVATIONS 5, 6, 7 AND 8
Drawing
Not yet archived · Original link
EXISTING MANSION ROOF PLAN
Drawing
Not yet archived · Original link
EXISTING MANSION SECTION 1
Drawing
Not yet archived · Original link
EXISTING SECOND FLOOR PLAN
Drawing
Not yet archived · Original link
EXISTING STABLE BLOCK ELEVATIONS
Drawing
Not yet archived · Original link
EXISTING STABLE BLOCK FIRST FLOOR
Drawing
Not yet archived · Original link
EXISTING STABLE BLOCK GROUND FLOOR
Drawing
Not yet archived · Original link
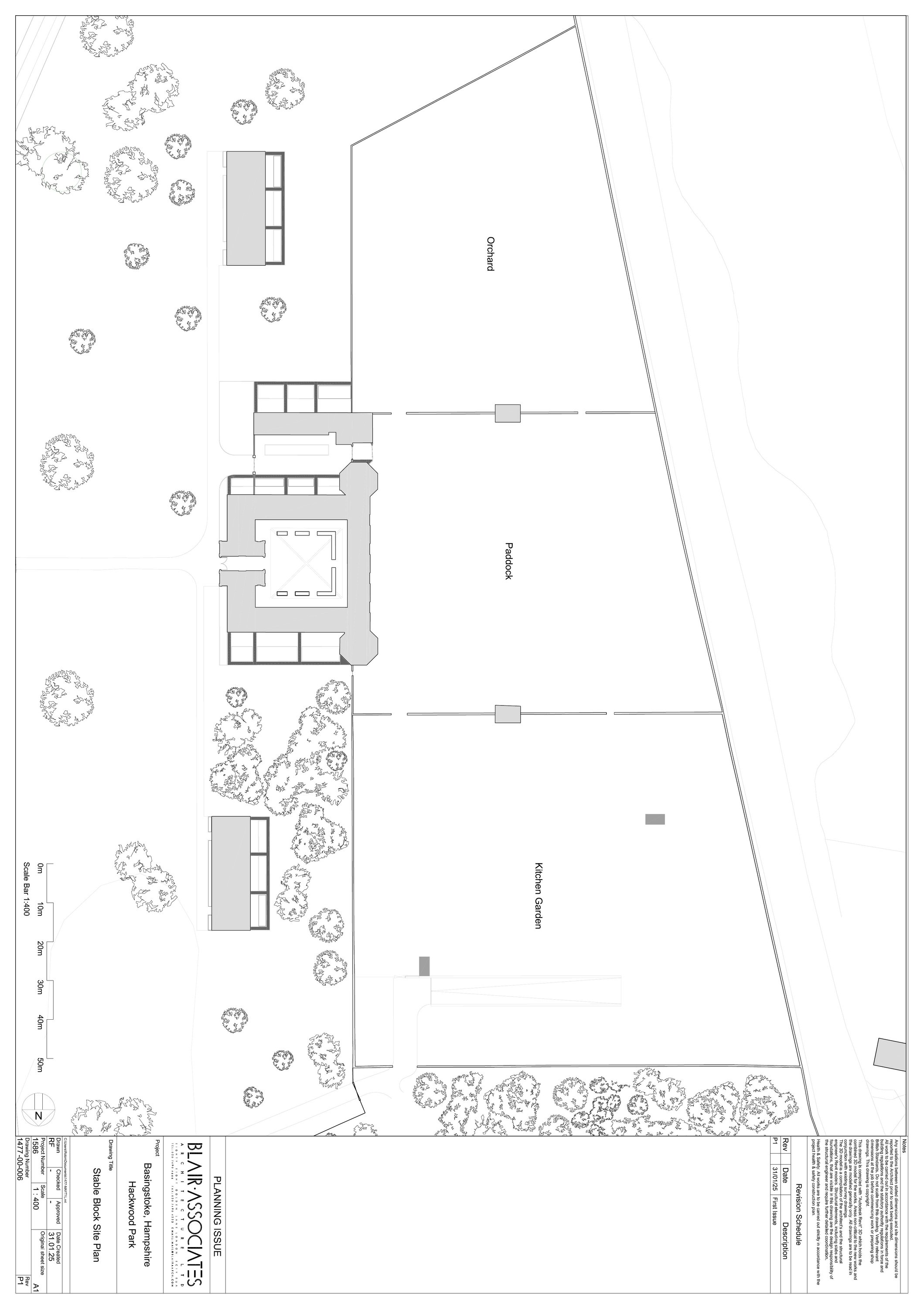
EXISTING STABLE BLOCK PLAN
Drawing
Not yet archived · Original link
EXISTING STABLE BLOCK SECOND FLOOR
Drawing
Not yet archived · Original link
EXISTING STABLE BLOCK SECTIONS
Drawing
Not yet archived · Original link
EXISTING STABLE BLOCK SECTIONS A-A AND B-B
Drawing
Not yet archived · Original link
EXISTING STABLE BLOCK SECTIONS C-C- AND D-D
Drawing
Not yet archived · Original link
EXISTING STABLE ELEVATIONS 9 AND 10
Drawing
Not yet archived · Original link
Drawing
Archived · Original link
FIRST FLOOR CHRONOLOGICAL PLAN
Drawing
Not yet archived · Original link
GARDENS TRUST
Consultee Comment
Not yet archived · Original link
GARDENS TRUST
Consultee Comment
Not yet archived · Original link
GARDENS TRUST
Consultee Comment
Not yet archived · Original link
GROUND FLOOR CHRONOLOGICAL PLAN
Drawing
Not yet archived · Original link
HACKWOOD PARK - ARBORICULTURAL IMPACT ASSESSMENT
Supporting Documents
Not yet archived · Original link
HACKWOOD PARK - ARCHAEOLOGICAL DESK BASED ASSESSMENT
Supporting Documents
Not yet archived · Original link
HACKWOOD PARK - DESIGN AND ACCESS STATEMENT
Supporting Documents
Not yet archived · Original link
HACKWOOD PARK - EIA SCREENING REPORT
Supporting Documents
Not yet archived · Original link
HACKWOOD PARK - FLOOD RISK ASSESSMENT AND DRAINAGE STRATEGY
Supporting Documents
Not yet archived · Original link
HACKWOOD PARK - HERITAGE IMPACT ASSESSMENT
Supporting Documents
Not yet archived · Original link
HACKWOOD PARK - HISTORIC LANDSCAPE REPORT
Supporting Documents
Not yet archived · Original link
HACKWOOD PARK - LANDSCAPE PLANNING REPORT
Supporting Documents
Not yet archived · Original link
HACKWOOD PARK - MEP AND SUSTAINABILITY REPORT
Supporting Documents
Not yet archived · Original link
HACKWOOD PARK - STAGE 3 STRUCTURAL AND CIVIL REPORT
Supporting Documents
Not yet archived · Original link
HACKWOOD PARK - TRANSPORT STATEMENT
Supporting Documents
Not yet archived · Original link
HACKWOOD PARK PLANNING AND LISTED BUILDING APPLICATION - MATERIALS
Supporting Documents
Not yet archived · Original link
HERRIARD ESTATES - JERVOISE
Neighbour Comment
Not yet archived · Original link
HISTORIC ENGLAND
Consultee Comment
Not yet archived · Original link
KARLEY
Neighbour Comment
Not yet archived · Original link
KARLEY
Neighbour Comment
Not yet archived · Original link
LOCATION PLAN
Location Plan
Not yet archived · Original link
MANSION FIRST FLOOR ALTERATIONS
Drawing
Not yet archived · Original link
MANSION FIRST FLOOR GENERAL ARRANGEMENT
Drawing
Not yet archived · Original link
MANSION GROUND FLOOR ALTERATIONS.
Drawing
Not yet archived · Original link
MANSION GROUND FLOOR GENERAL ARRANGEMENT
Drawing
Not yet archived · Original link
MANSION NEW WING GROUND FLOOR
Drawing
Not yet archived · Original link
MANSION SECOND FLOOR ALTERATIONS
Drawing
Not yet archived · Original link
MANSION SECOND FLOOR GENERAL ARRANGEMENT
Drawing
Not yet archived · Original link
MR BEN NUTLEY(FULL)
Neighbour Comment
Not yet archived · Original link
MR CHRISTOPHER GODDARD(FULL)
Neighbour Comment
Not yet archived · Original link
MR CHRISTOPHER GODDARD(FULL)
Neighbour Comment
Not yet archived · Original link
MR IAN GRIFFITHS(FULL)
Neighbour Comment
Not yet archived · Original link
MR IAN GRIFFITHS(FULL)
Neighbour Comment
Not yet archived · Original link
MR JONATHAN AUSTEN(FULL)
Neighbour Comment
Not yet archived · Original link
MR KEITH STEVENS(FULL)
Neighbour Comment
Not yet archived · Original link
MR LESLIE SMITH(FULL)
Neighbour Comment
Not yet archived · Original link
MR PAUL DOUGHERTY(FULL)
Neighbour Comment
Not yet archived · Original link
MRS JAMIE CHANDLER(FULL)
Neighbour Comment
Not yet archived · Original link
MRS OKSANA HERTS(FULL)
Neighbour Comment
Not yet archived · Original link
MRS S COCKS(FULL)
Neighbour Comment
Not yet archived · Original link
NEW WING BASEMENT FLOOR
Drawing
Not yet archived · Original link
NEW WING FIRST FLOOR GENERAL ARRANGEMENT
Drawing
Not yet archived · Original link
NORTH CAR PARK ELEVATIONS
Drawing
Not yet archived · Original link
NORTH CAR PARK FIRST FLOOR
Drawing
Not yet archived · Original link
NORTH CAR PARK GROUND FLOOR.
Drawing
Not yet archived · Original link
PARISH COUNCIL
Consultee Comment
Not yet archived · Original link
POST PLANNING AND LISTED BUILDING APPLICATION DESIGN AND TECHNICAL CLARIFICATION
Supporting Documents
Not yet archived · Original link
PROPOSED COURTYARD STABLE ELEVATIONS 5, 6, 7, AND 8
Drawing
Not yet archived · Original link
PROPOSED LODGE 1
Drawing
Not yet archived · Original link
PROPOSED LODGE 10
Drawing
Not yet archived · Original link
PROPOSED LODGE 11
Drawing
Not yet archived · Original link
PROPOSED LODGE 12
Drawing
Not yet archived · Original link
PROPOSED LODGE 2
Drawing
Not yet archived · Original link
PROPOSED LODGE 3
Drawing
Not yet archived · Original link
PROPOSED LODGE 4
Drawing
Not yet archived · Original link
PROPOSED LODGE 5
Drawing
Not yet archived · Original link
PROPOSED LODGE 6
Drawing
Not yet archived · Original link
PROPOSED LODGE 6
Drawing
Not yet archived · Original link
PROPOSED LODGE 6
Drawing
Not yet archived · Original link
PROPOSED LODGE 9
Drawing
Not yet archived · Original link
PROPOSED MANSION ELEVATIONS 1 AND 2
Drawing
Not yet archived · Original link
PROPOSED MANSION ELEVATIONS 3 AND 4
Drawing
Not yet archived · Original link
PROPOSED MANSION ELEVATIONS 5, 6, 7 AND 8
Drawing
Not yet archived · Original link
PROPOSED MANSION ROOF PLAN
Drawing
Not yet archived · Original link
PROPOSED MANSION SECTION 1
Drawing
Not yet archived · Original link
PROPOSED MANSION SECTION 2
Drawing
Not yet archived · Original link
PROPOSED MANSION SECTION 3
Drawing
Not yet archived · Original link
PROPOSED MANSION SECTION 4
Drawing
Not yet archived · Original link
PROPOSED NEW WING 3/02
Drawing
Not yet archived · Original link
PROPOSED NEW WING ELEVATION 3
Drawing
Not yet archived · Original link
Drawing
Archived · Original link
PROPOSED STABLE BLOCK ACADEMY RESIDENCES SECTIONS
Drawing
Not yet archived · Original link
PROPOSED STABLE BLOCK AND SOUTH APARTMENT 3 FIRST FLOOR PLAN
Drawing
Not yet archived · Original link
PROPOSED STABLE BLOCK APARTMENT 2 FLOOR PLAN
Drawing
Not yet archived · Original link
PROPOSED STABLE BLOCK APARTMENT 3 FLOOR PLAN
Drawing
Not yet archived · Original link
PROPOSED STABLE BLOCK APARTMENT 3 ROOF PLAN
Drawing
Not yet archived · Original link
PROPOSED STABLE BLOCK COURTYARD ELEVATIONS 5, 6, 7 AND 8
Drawing
Not yet archived · Original link
PROPOSED STABLE BLOCK ELEVATIONS 1 AND 2
Drawing
Not yet archived · Original link
PROPOSED STABLE BLOCK ELEVATIONS 3 AND 4
Drawing
Not yet archived · Original link
PROPOSED STABLE BLOCK ELEVATIONS 9, 10, 11
Drawing
Not yet archived · Original link
PROPOSED STABLE BLOCK ROOF PLAN
Drawing
Not yet archived · Original link
PROPOSED STABLE BLOCK SECOND FLOOR PLAN
Drawing
Not yet archived · Original link
PROPOSED STABLE BLOCK SECTION E-E
Drawing
Not yet archived · Original link
PROPOSED STABLE BLOCK SECTIONS
Drawing
Not yet archived · Original link
PROPOSED STABLE BUILDING SECTIONS C-C AND D-D
Drawing
Not yet archived · Original link
PROPOSED STABLE ELEVATION S 1 AND 2
Drawing
Not yet archived · Original link
PROPOSED STABLE ELEVATIONS 3 AND 4
Drawing
Not yet archived · Original link
PROPOSED STABLE ELEVATIONS 9 AND 10
Drawing
Not yet archived · Original link
PROPOSED STABLE FIRST FLOOR PLAN
Drawing
Not yet archived · Original link
PROPOSED STABLE GROUND FLOOR PLAN
Drawing
Not yet archived · Original link
PROPOSED STABLE SECOND FLOOR PLAN
Drawing
Not yet archived · Original link
PROPOSED STAFF WELFARE FACILITY - SITE AND LANDSCAPE
Drawing
Not yet archived · Original link
PROPOSED STAFF WELFARE FACILITY ELEVATIONS
Drawing
Not yet archived · Original link
PROPOSED WELFARE FIRST FLOOR PLAN
Drawing
Not yet archived · Original link
PROPOSED WELFARE GROUND FLOOR PLAN
Drawing
Not yet archived · Original link
PROPOSED WELFARE ROOF PLAN
Drawing
Not yet archived · Original link
PROPOSED WEST WING ELEVATION 1
Drawing
Not yet archived · Original link
PROPOSED WEST WING ELEVATION 4
Drawing
Not yet archived · Original link
PROPOSED WEST WING ELEVATION 8
Drawing
Not yet archived · Original link
SECOND FLOOR CHRONOLOGICAL PLAN
Drawing
Not yet archived · Original link
SHEARER
Neighbour Comment
Not yet archived · Original link
SHEARER
Neighbour Comment
Not yet archived · Original link
SITE PHOTOS
Supporting Documents
Not yet archived · Original link
SPAB - SOCIETY FOR THE PROTECTION OF ANCIENT BUILDINGS
Neighbour Comment
Not yet archived · Original link
STABLE BLOCK AND SOUTH APARTMENT PROPOSED GROUND FLOOR PLAN
Drawing
Not yet archived · Original link
STABLE BLOCK APARTMENT 2 ROOF PLAN
Drawing
Not yet archived · Original link
STABLE BLOCK APPARTMENT 2 - GF PLAN
Drawing
Not yet archived · Original link
STABLE BLOCK APPARTMENT 2 - PROPOSED ELEVATIONS
Drawing
Not yet archived · Original link
STABLE BLOCK APPARTMENT 3 - GF PLAN
Drawing
Not yet archived · Original link
STABLE BLOCK APPARTMENT 3 - PROPOSED ELEVATIONS
Drawing
Not yet archived · Original link
STABLE BLOCK FIRST FLOOR CHRONOLOGICAL PLAN
Drawing
Not yet archived · Original link
STABLE BLOCK GROUND FLOOR CHRONOLOGICAL PLAN
Drawing
Not yet archived · Original link
STABLE BLOCK SECOND FLOOR CHRONOLOGICAL PLAN
Drawing
Not yet archived · Original link
STABLE BLOCK SECTION E-E
Drawing
Not yet archived · Original link
STABLE BLOCK SECTIONS A-A AND B-B
Drawing
Not yet archived · Original link
STAFF WELFARE FACILITY SECTIONS
Drawing
Not yet archived · Original link
SUBTERRANEAN CAR PARK SECTIONS
Drawing
Not yet archived · Original link
THE GEORGIAN GROUP
Consultee Comment
Not yet archived · Original link
TUNWORTH PARISH
Consultee Comment
Not yet archived · Original link
TUNWORTH PARISH COUNCIL
Consultee Comment
Not yet archived · Original link
WHITCHURCH CONSERVATION GROUP
Neighbour Comment
Not yet archived · Original link
WINSLADE PARISH COUNCIL
Consultee Comment
Not yet archived · Original link

Have your say

Your comment matters. Councils must consider every representation that raises material planning considerations.

Write a comment