← Basingstoke and Deane Borough Council

Status

Registered House extension
Received
01 Apr 2025
New homes
0

Summary

Front porch and single-storey rear extension, new garage with solar panels and driveway alterations.

Full proposal

Erection of front porch and single storey rear extension. Retrospectively replacement of existing fencing and gates. Demolition of existing garage and erection of a new garage with solar panels. Enlarge driveway entrance and replace entrance gates. Erection of bin store and greenhouse. Installation of underground LPG tank and hard landscaping . Resite existing garden shed and greenhouse

Documents

APPLICATION FORM - WITHOUT PERSONAL DATA
Application Form - Published
Not yet archived · Original link
BASINGSTOKE GAZETTE 17-04-2025
Press Notice
Not yet archived · Original link
BIODIVERSITY
Consultee Comment
Not yet archived · Original link
COMMUNITY INFRASTRUCTURE LEVY - COMPLETED FORM
CIL Form 1
Not yet archived · Original link
DAS AND HERITAGE STATEMENT
Supporting Documents
Not yet archived · Original link
ENVIRONMENTAL HEALTH
Consultee Comment
Not yet archived · Original link
EXISTING AND PROPOSED GROUND FLOOR AND ROOF PLANS
Drawing
Not yet archived · Original link
EXISTING ELEVATIONS
Drawing
Not yet archived · Original link
EXISTING GARAGE PLANS AND ELEVATIONS
Drawing
Not yet archived · Original link
HISTORIC ENVIRONMENT
Consultee Comment
Not yet archived · Original link
LOCATION PLAN
Location Plan
Not yet archived · Original link
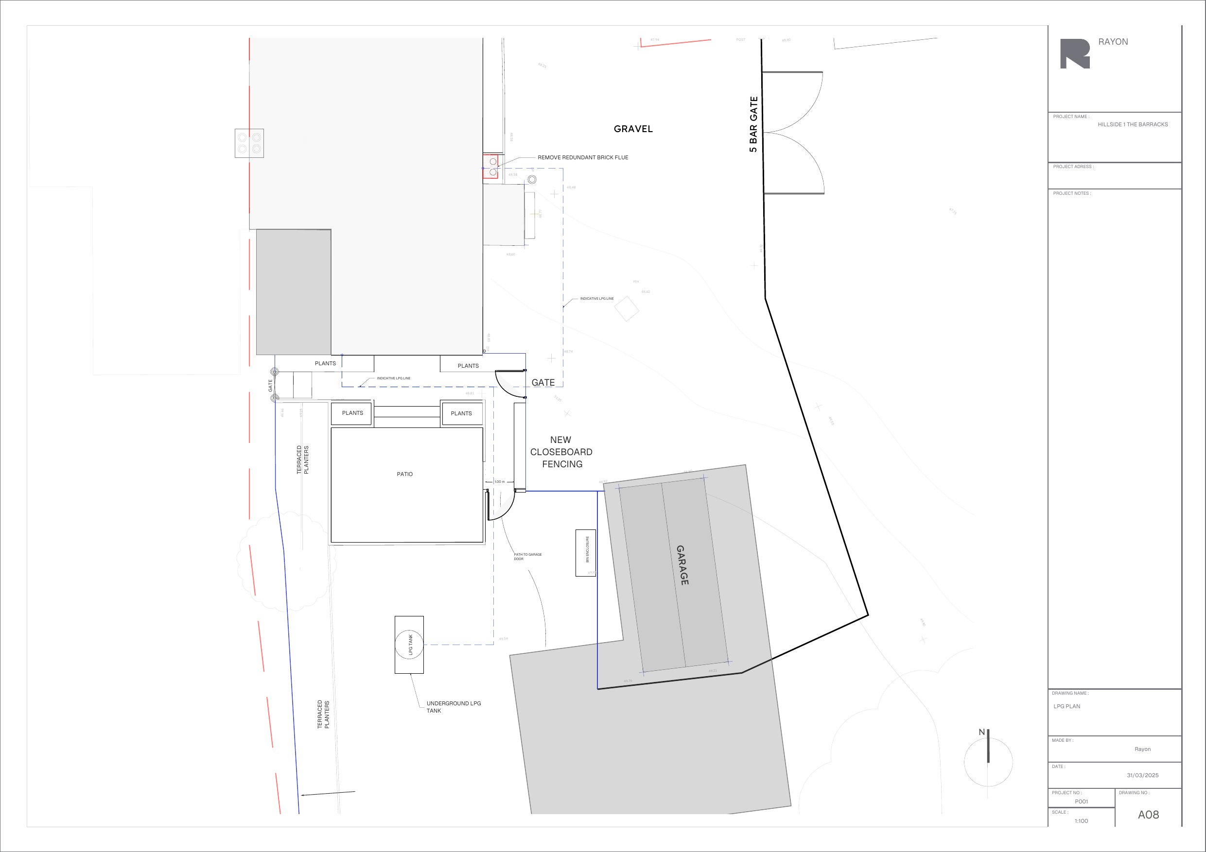
LPG PLAN
Drawing
Not yet archived · Original link
LPG TECHNICAL SPECIFICATION
Supporting Documents
Not yet archived · Original link
PROPOSED ELEVATIONS
Drawing
Not yet archived · Original link
PROPOSED GARAGE PLANS AND ELEVATIONS
Drawing
Not yet archived · Original link
Drawing
Archived · Original link
Drawing
Archived · Original link
WINDOW STYLE DETAILS
Supporting Documents
Not yet archived · Original link

Have your say

Your comment matters. Councils must consider every representation that raises material planning considerations.

Write a comment