← Basingstoke and Deane Borough Council

Status

Registered Listed building
Received
21 May 2025
New homes
2

Full proposal

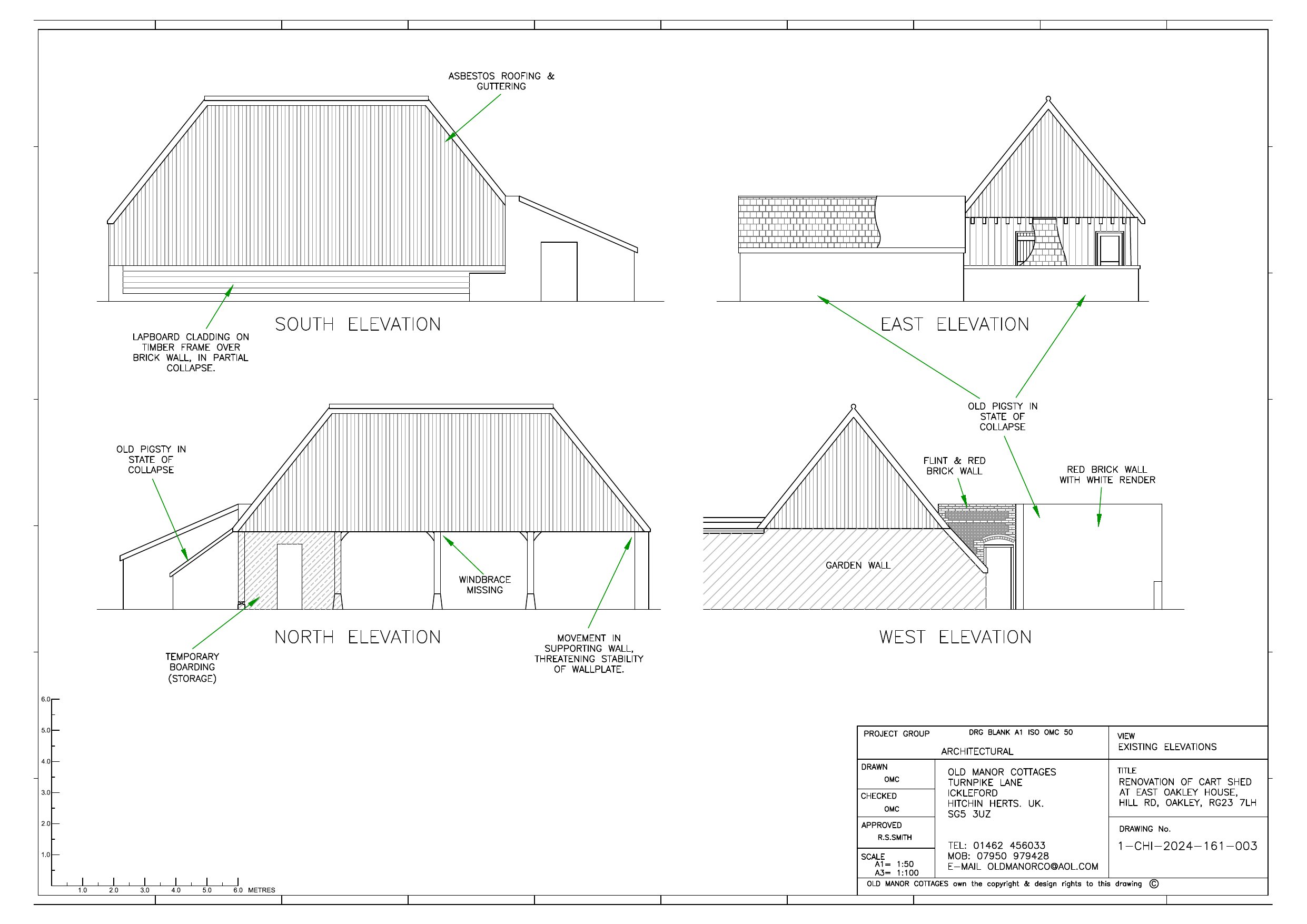
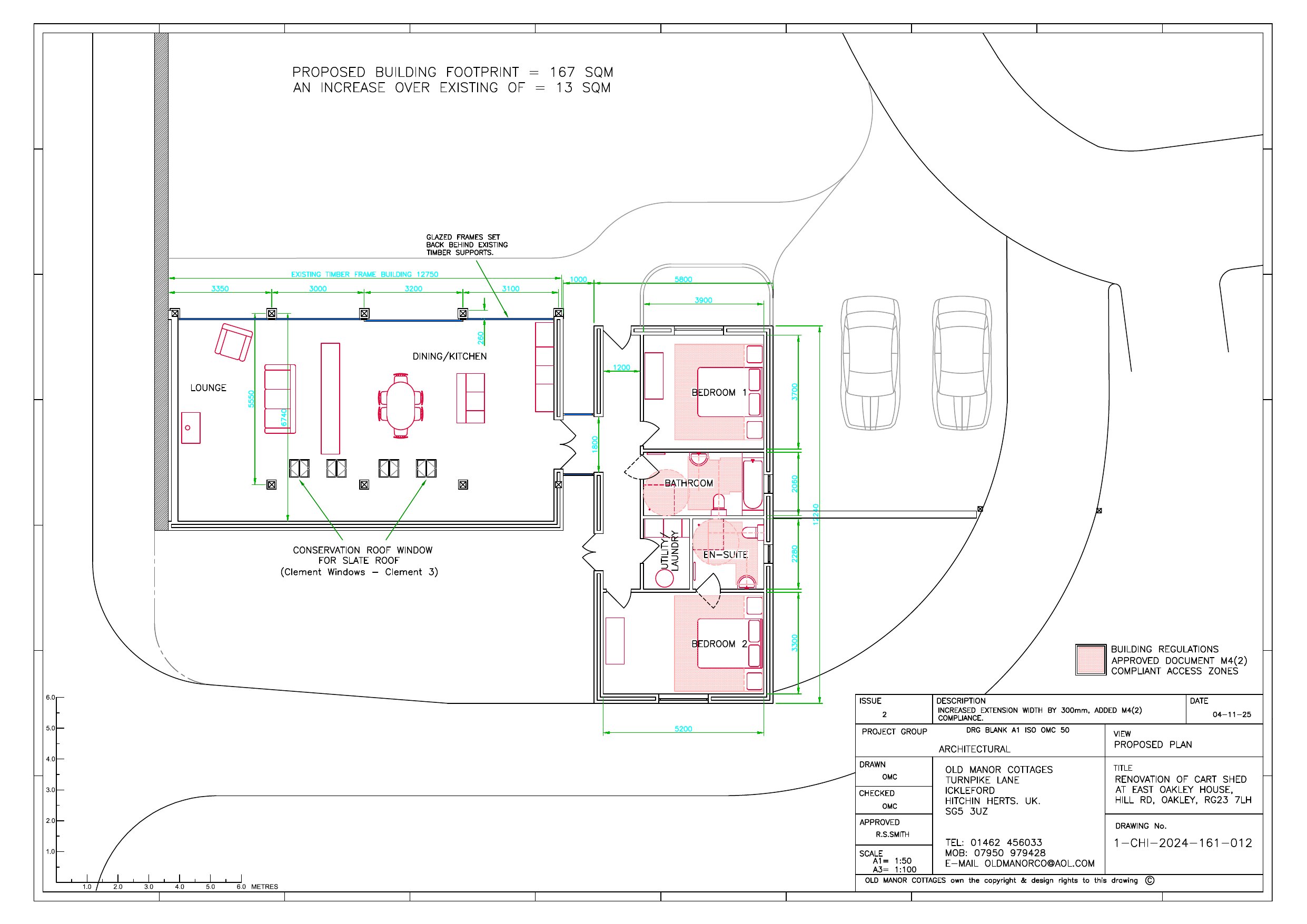
Conversion of existing agricultural cart shed and extension to form 2 bedroom single storey cottage. Partial demolition of derelict pigsty and erection of new extension. Retention, repair and reinforcement of listed timber frame. Removal of existing asbestos roofing to be replaced by natural slate.

Documents

Application Form - Published
Archived · Original link
BIODIVERSITY STATEMENT
Supporting Documents
Not yet archived · Original link
Supporting Documents
Archived · Original link
DESIGN AND ACCESS STATEMENT
Supporting Documents
Not yet archived · Original link
Drawing
Archived · Original link
Drawing
Archived · Original link
Consultee Comment
Archived · Original link
HERITAGE STATEMENT
Supporting Documents
Not yet archived · Original link
Consultee Comment
Archived · Original link
Consultee Comment
Archived · Original link
Consultee Comment
Archived · Original link
Consultee Comment
Archived · Original link
Consultee Comment
Archived · Original link
Supporting Documents
Archived · Original link
Supporting Documents
Archived · Original link
Supporting Documents
Archived · Original link
Supporting Documents
Archived · Original link
Supporting Documents
Archived · Original link
Supporting Documents
Archived · Original link
Supporting Documents
Archived · Original link
Supporting Documents
Archived · Original link
Supporting Documents
Archived · Original link
Supporting Documents
Archived · Original link
Supporting Documents
Archived · Original link
Supporting Documents
Archived · Original link
Supporting Documents
Archived · Original link
Supporting Documents
Archived · Original link
Supporting Documents
Archived · Original link
Supporting Documents
Archived · Original link
Revised Drawing
Archived · Original link
Revised Drawing
Archived · Original link
Revised Drawing
Archived · Original link
Revised Drawing
Archived · Original link
Consultee Comment
Archived · Original link
Location Plan
Archived · Original link

Have your say

Your comment matters. Councils must consider every representation that raises material planning considerations.

Write a comment