← Back to Basingstoke and Deane Borough Council
Application
25/01313/OUT
Basingstoke and Deane Borough Council · IDOX
Status
Awaiting decision
New housing
Received
27 May 2025
New dwellings
17
What you can do
Take Action
Make your voice heard. Authorities need to hear from people who support new homes.
Summary
Outline for up to 17 dwellings with access, parking, open space and landscaping.
Full Proposal
Outline application with all matters reserved save for access for the erection of up to 17 dwellings with access, parking, drainage works, areas of open space, landscaping and any other associated infrastructure.
Detail pages
- View live detail on council site
- No archived detail page available.
Documents
APPLICATION FORM
Application Form - Published
Not downloaded
· Council link
BASINGSTOKE GAZETTE 12-06-2025
Press Notice
Not downloaded
· Council link
BEEVERS
Neighbour Comment
Not downloaded
· Council link
BIODIVERSITY NET GAIN STATEMENT
Supporting Documents
Not downloaded
· Council link
BNG METRIC
Supporting Documents
Not downloaded
· Council link
BNG METRIC
Supporting Documents
Not downloaded
· Council link
BNG METRICS
Supporting Documents
Not downloaded
· Council link
CIL FORM 1
CIL Form 1
Not downloaded
· Council link
CLIDDESDEN PARISH COUNCIL
Consultee Comment
Not downloaded
· Council link
DESIGN AND ACCESS STATEMENT
Supporting Documents
Not downloaded
· Council link
ENVIRONMENTAL HEALTH COMMENTS
Consultee Comment
Not downloaded
· Council link
ENVIRONMENTAL HEALTH COMMENTS
Consultee Comment
Not downloaded
· Council link
EXISTING SITE PLAN
Drawing
Archived copy
· Council link
FLOOD RISK ASSESSMENT
Supporting Documents
Not downloaded
· Council link
HAMPSHIRE RIGHTS OF WAY
Consultee Comment
Not downloaded
· Council link
HAMPSHIRE SWIFTS
Neighbour Comment
Not downloaded
· Council link
HCC COUNTRYSIDE COMMENTS
Consultee Comment
Not downloaded
· Council link
HCC HIGHWAYS
Consultee Comment
Not downloaded
· Council link
HCC HIGHWAYS
Consultee Comment
Not downloaded
· Council link
HERITAGE STATEMENT
Supporting Documents
Not downloaded
· Council link
HIGHWAYS COMMENTS
Consultee Comment
Not downloaded
· Council link
HIGHWAYS TECHNICAL NOTE
Supporting Documents
Not downloaded
· Council link
HISTORIC ENVIRONMENT COMMENTS
Consultee Comment
Not downloaded
· Council link
HOUSING COMMENTS
Consultee Comment
Not downloaded
· Council link
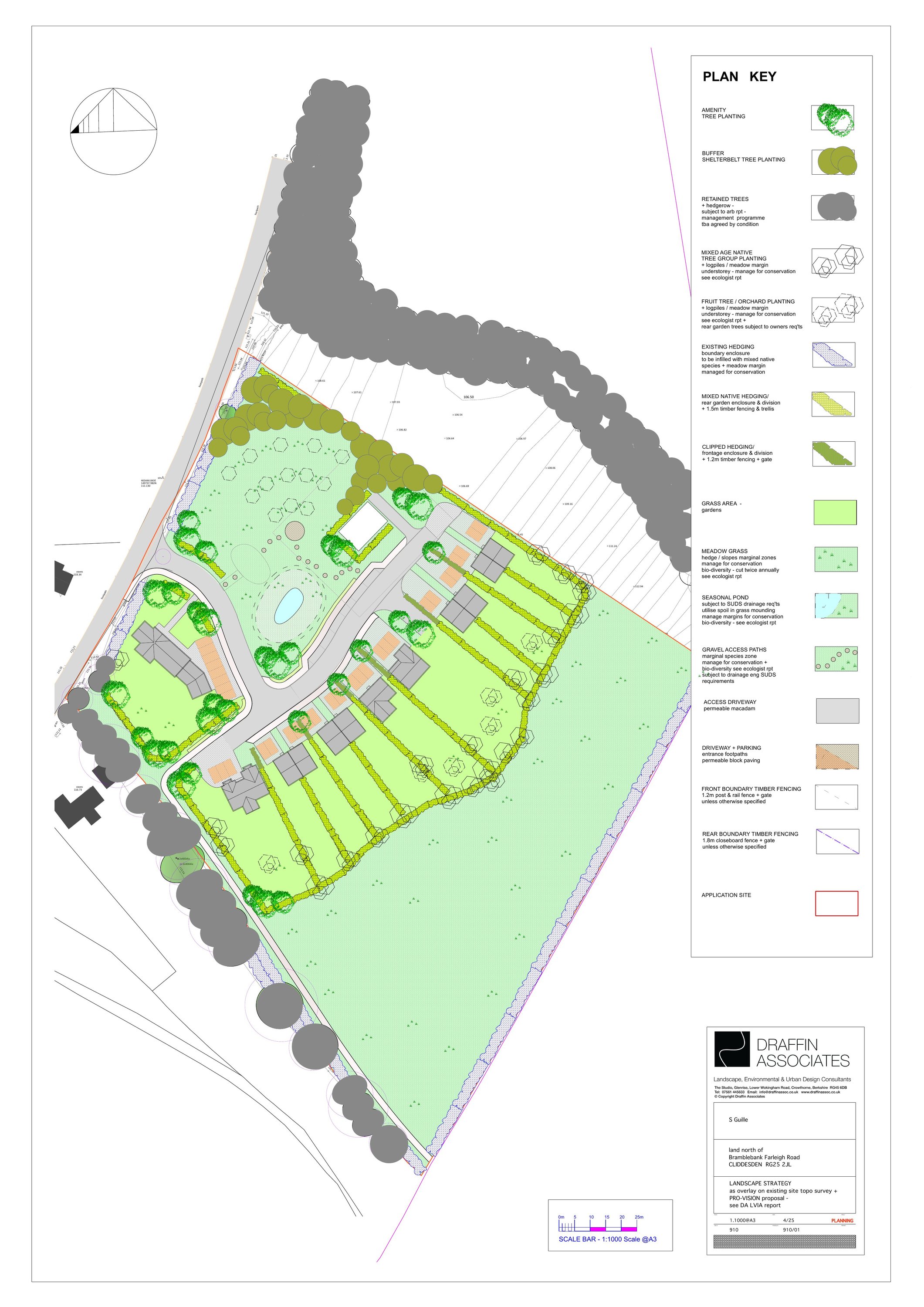
ILLUSTRATIVE LAYOUT
Drawing
Not downloaded
· Council link
LANDSCAPE AND VISUAL IMPACT ASSESSMENT
Supporting Documents
Not downloaded
· Council link
LANDSCAPE AND VISUAL IMPACT ASSESSMENT - APPENDIX D
Supporting Documents
Not downloaded
· Council link
LANDSCAPE AND VISUAL IMPACT ASSESSMENT - APPENDIX E
Supporting Documents
Not downloaded
· Council link
LANDSCAPE AND VISUAL IMPACT ASSESSMENT APPENDICES A-C
Supporting Documents
Not downloaded
· Council link
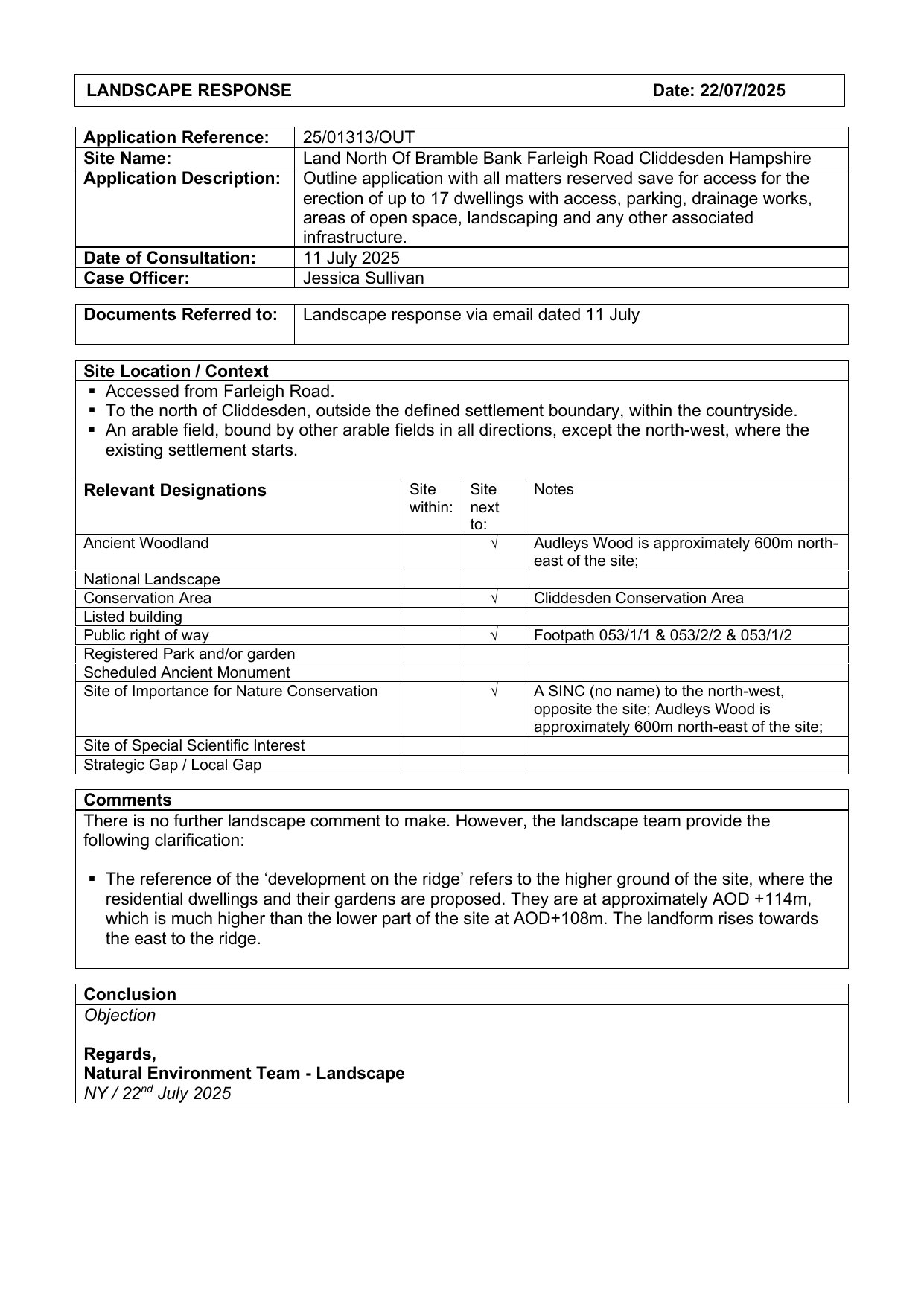
LANDSCAPE COMMENTS
Consultee Comment
Not downloaded
· Council link
LANDSCAPE COMMENTS
Consultee Comment
Not downloaded
· Council link
LEAD LOCAL FLOOD AUTHORITY COMMENTS
Consultee Comment
Not downloaded
· Council link
MISS ROMA FOX(FULL)
Neighbour Comment
Not downloaded
· Council link
MOSSON
Neighbour Comment
Not downloaded
· Council link
MR FRASER MORRISON(FULL)
Neighbour Comment
Not downloaded
· Council link
MR JOHN DONALDSON(FULL)
Neighbour Comment
Not downloaded
· Council link
MR KEVIN JELLEY(FULL)
Neighbour Comment
Not downloaded
· Council link
MR KEVIN NICHOLSON(FULL)
Neighbour Comment
Not downloaded
· Council link
MR LEROY HARRIS(FULL)
Neighbour Comment
Not downloaded
· Council link
MR LESLIE SMITH(FULL)
Neighbour Comment
Not downloaded
· Council link
MR LINUS PARKER(FULL)
Neighbour Comment
Not downloaded
· Council link
MR MARCUS BAZLEY(FULL)
Neighbour Comment
Not downloaded
· Council link
MR MARK GIFFORD(FULL)
Neighbour Comment
Not downloaded
· Council link
MR PETER MULLINEUX(FULL)
Neighbour Comment
Not downloaded
· Council link
MR ROSS PALMER(FULL)
Neighbour Comment
Not downloaded
· Council link
MRS ANGELA FEWSTER(FULL)
Neighbour Comment
Not downloaded
· Council link
MRS MICHELINE DONALDSON(FULL)
Neighbour Comment
Not downloaded
· Council link
MRS STELLA MULLINEUX(FULL)
Neighbour Comment
Not downloaded
· Council link
P&OS COMMENTS
Consultee Comment
Not downloaded
· Council link
P&OS COMMENTS
Consultee Comment
Not downloaded
· Council link
PARKS AND OPEN SPACES COMMENTS
Consultee Comment
Not downloaded
· Council link
PLANNING STATEMENT
Supporting Documents
Not downloaded
· Council link
PRELIMINARY ECOLOGICAL APPRAISAL
Supporting Documents
Not downloaded
· Council link
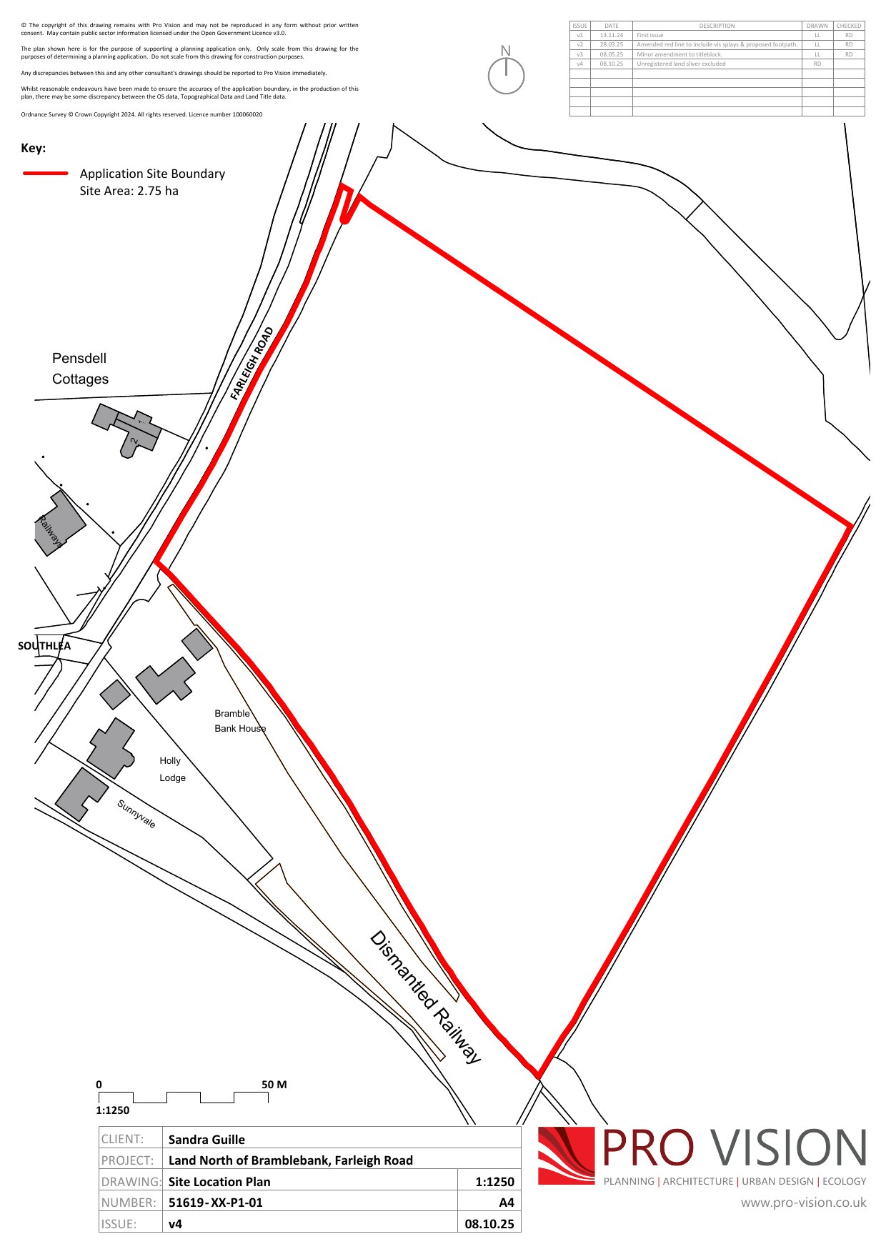
REVISED LOCATION PLAN
Revised Drawing
Not downloaded
· Council link
S106 PROFORMA - PDF
APS106 Legal Agreement
Not downloaded
· Council link
SITE SECTIONS
Drawing
Not downloaded
· Council link
STRATEGIC PLANNING UNIT
Consultee Comment
Not downloaded
· Council link
THAMES WATER
Consultee Comment
Not downloaded
· Council link
TRANSPORT ASSESSMENT
Supporting Documents
Not downloaded
· Council link
TRANSPORT COMMENTS
Consultee Comment
Not downloaded
· Council link
TREE COMMENTS
Consultee Comment
Not downloaded
· Council link
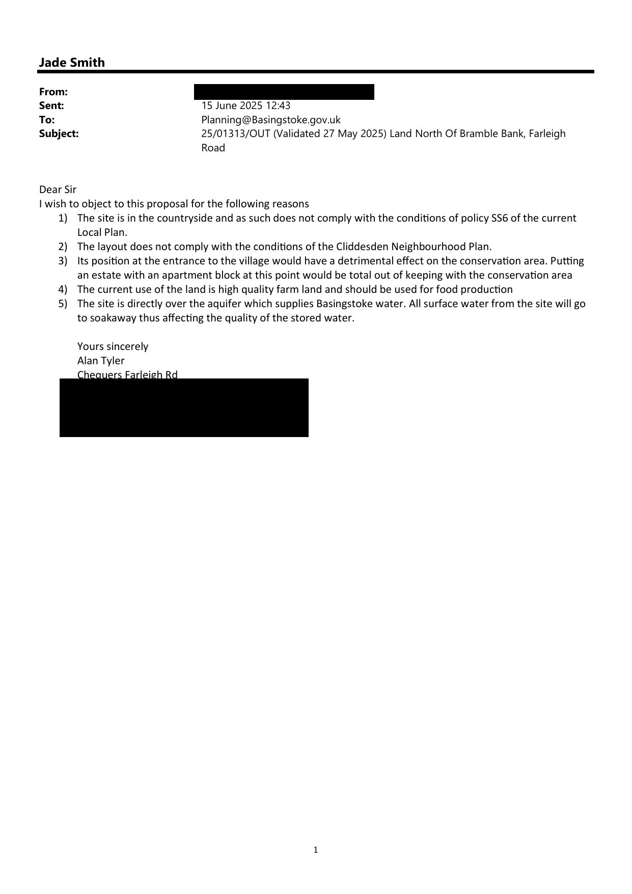
TYLER
Neighbour Comment
Not downloaded
· Council link
TYLER
Neighbour Comment
Not downloaded
· Council link
WASTE
Consultee Comment
Not downloaded
· Council link