← Basingstoke and Deane Borough Council
26/00503/HSE
Basingstoke and Deane Borough Council
Status
Registered
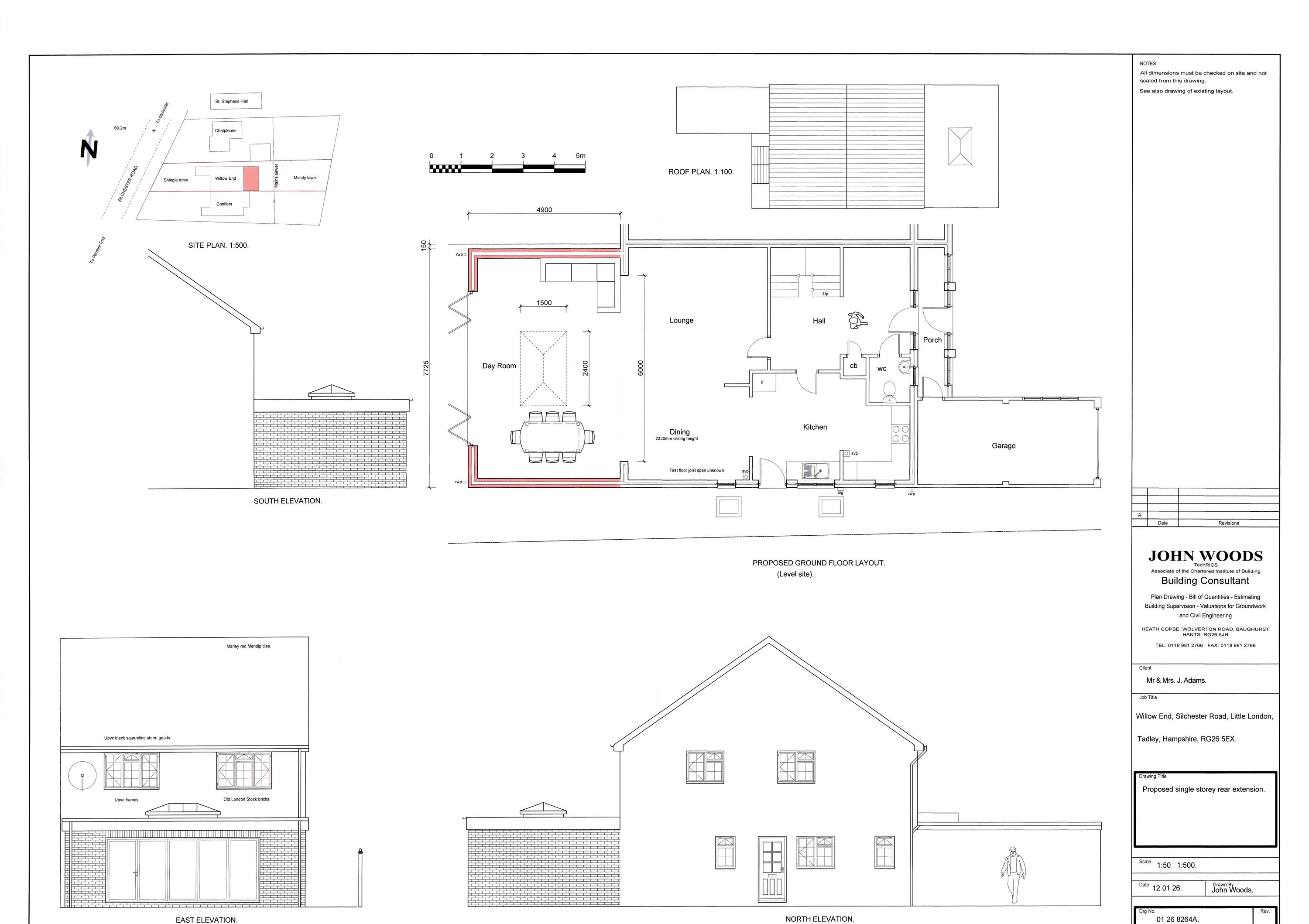
House extension
Received
28 days ago
New homes
0
Full proposal
Erection of single storey rear extension
Documents
Have your say
Your comment matters. Councils must consider every representation that raises material planning considerations.