← Basingstoke and Deane Borough Council
26/00507/HSE
Basingstoke and Deane Borough Council
Status
Registered
House extension
Received
26 days ago
New homes
0
Full proposal
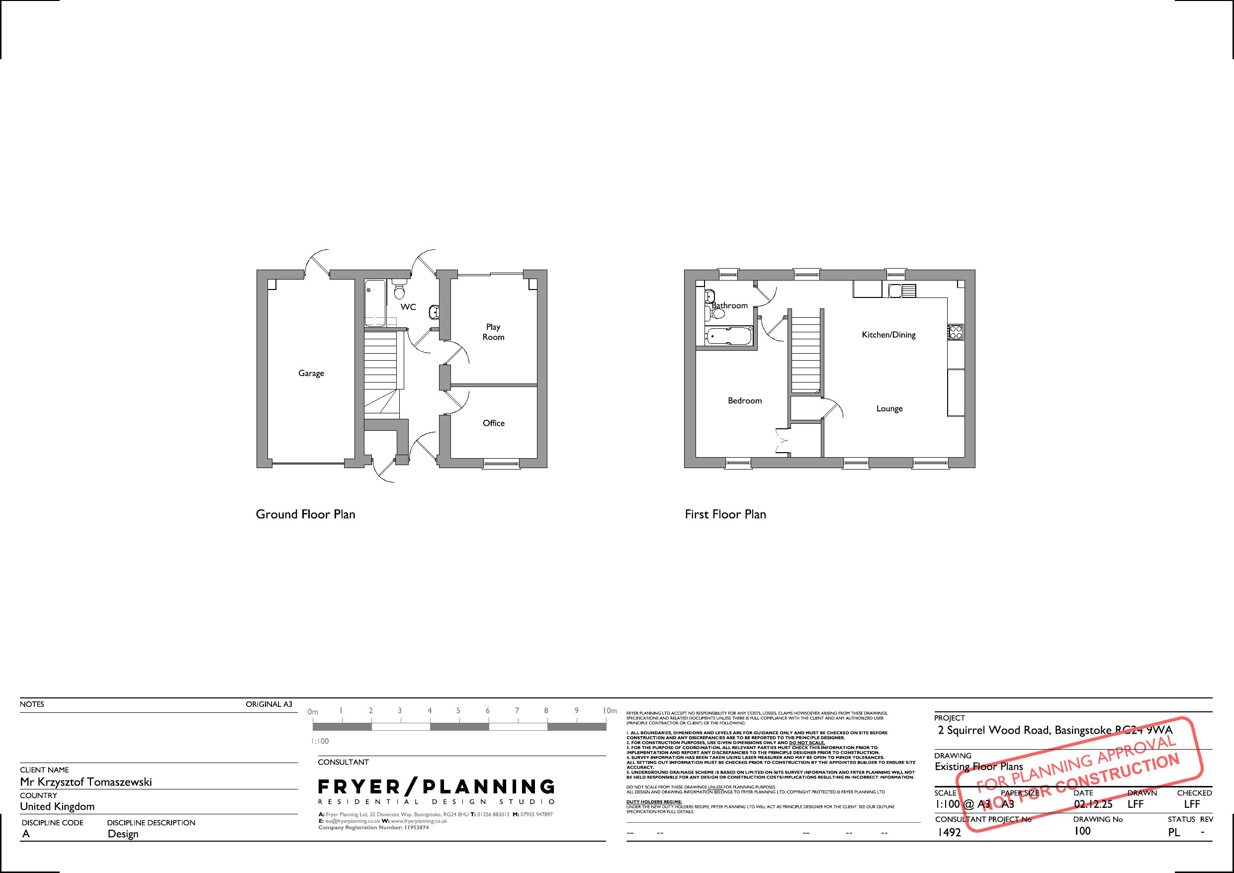
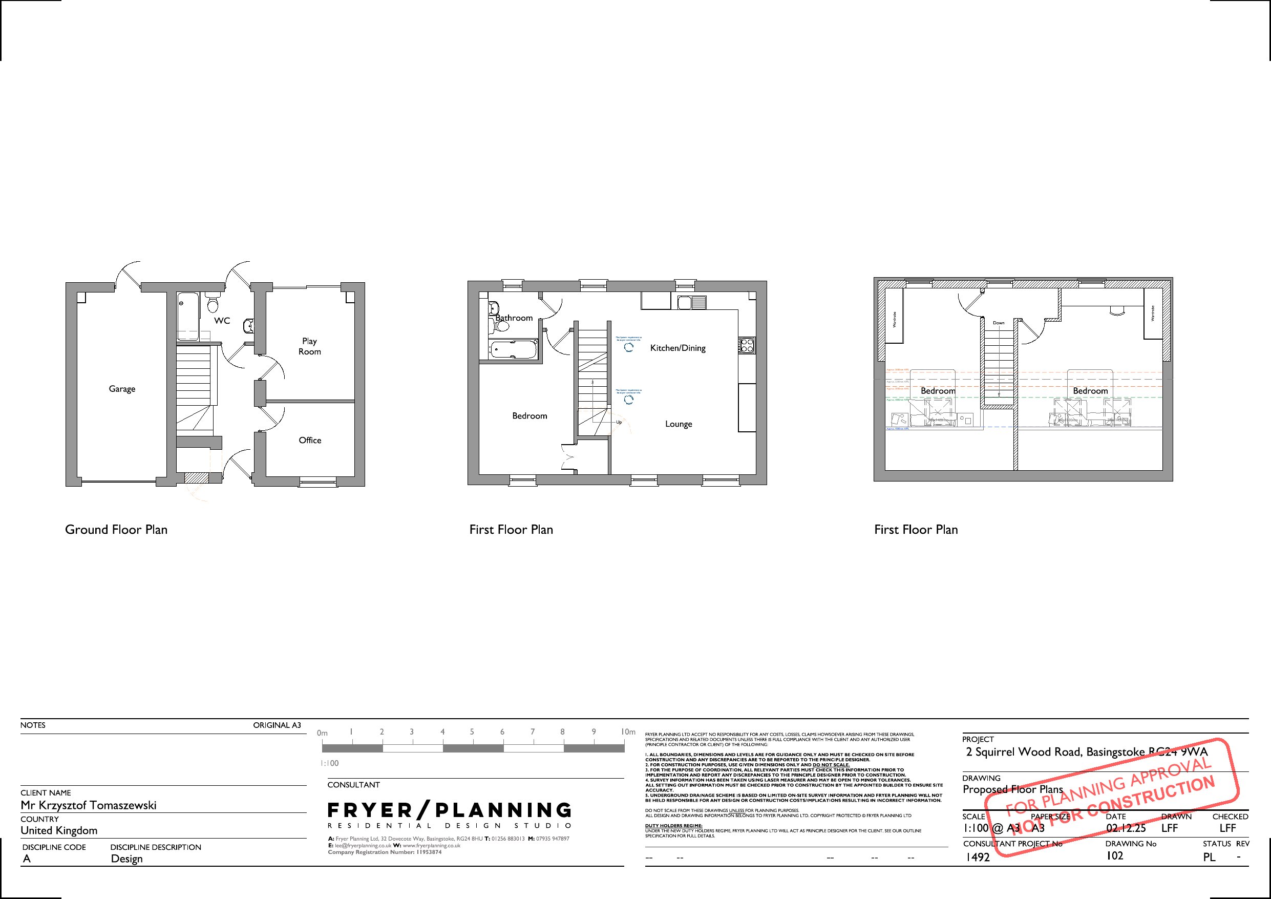
Loft conversion with rear dormer and front facing roof lights. Front infill to ground floor external store and solar panels applied to area of front roof
Documents
Have your say
Your comment matters. Councils must consider every representation that raises material planning considerations.