← Basingstoke and Deane Borough Council

Status

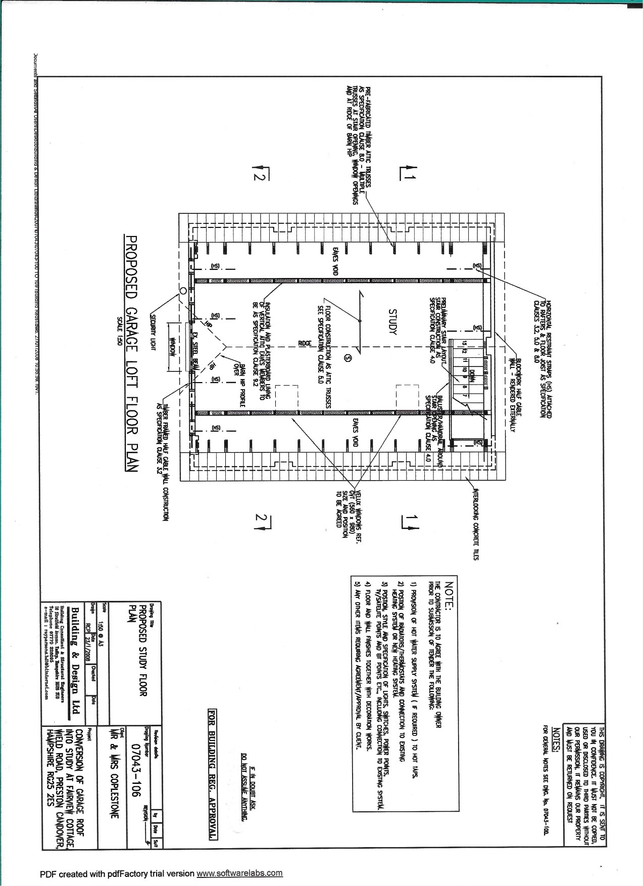
Registered Change of use
Received
25 days ago
New homes
0

Full proposal

Change of use of existing garage annexe ancillary to dwelling to be used as accommodation to be let out to guests on a short term, ad hoc basis

Documents

Location Plan
Archived · Original link

Have your say

Your comment matters. Councils must consider every representation that raises material planning considerations.

Write a comment