← Bassetlaw District Council

Status

Awaiting decision New housing
Received
01 May 2025
New homes
6

Full proposal

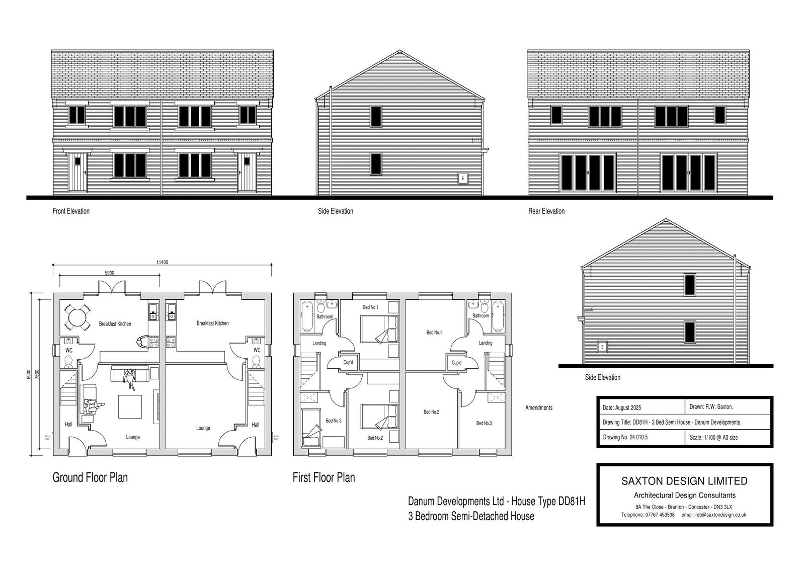
Erection of 6 No. 3 Bedroom Town Houses Including Formation of New Access onto Well Hill Drive.

Documents

Photo
Archived · Original link
Consultation Replies
Archived · Original link
Consultation Replies
Archived · Original link
BIODIVERSITY NET GAIN METRIC 07/10/2025
Report
Not yet archived · Original link
Drawing
Archived · Original link
CONSTRUCTION AND ENVIRONMENTAL MANAGEMENT PLAN
Supporting Information
Not yet archived · Original link
Ecological Assessment
Archived · Original link
Consultation Replies
Archived · Original link
Flood Risk
Archived · Original link
Consultation Replies
Archived · Original link
METRIC 30.05.2025
Biodiversity Net Gain
Not yet archived · Original link
Consultation Replies
Archived · Original link
Consultation Replies
Archived · Original link
Consultation Replies
Archived · Original link
Consultation Replies
Archived · Original link
Consultation Replies
Archived · Original link
Ecological Assessment
Archived · Original link
Biodiversity Net Gain
Archived · Original link
Drawing
Archived · Original link

Have your say

Your comment matters. Councils must consider every representation that raises material planning considerations.

Write a comment