← Bassetlaw District Council

Status

Awaiting decision New housing
Received
30 May 2025
New homes
3

Summary

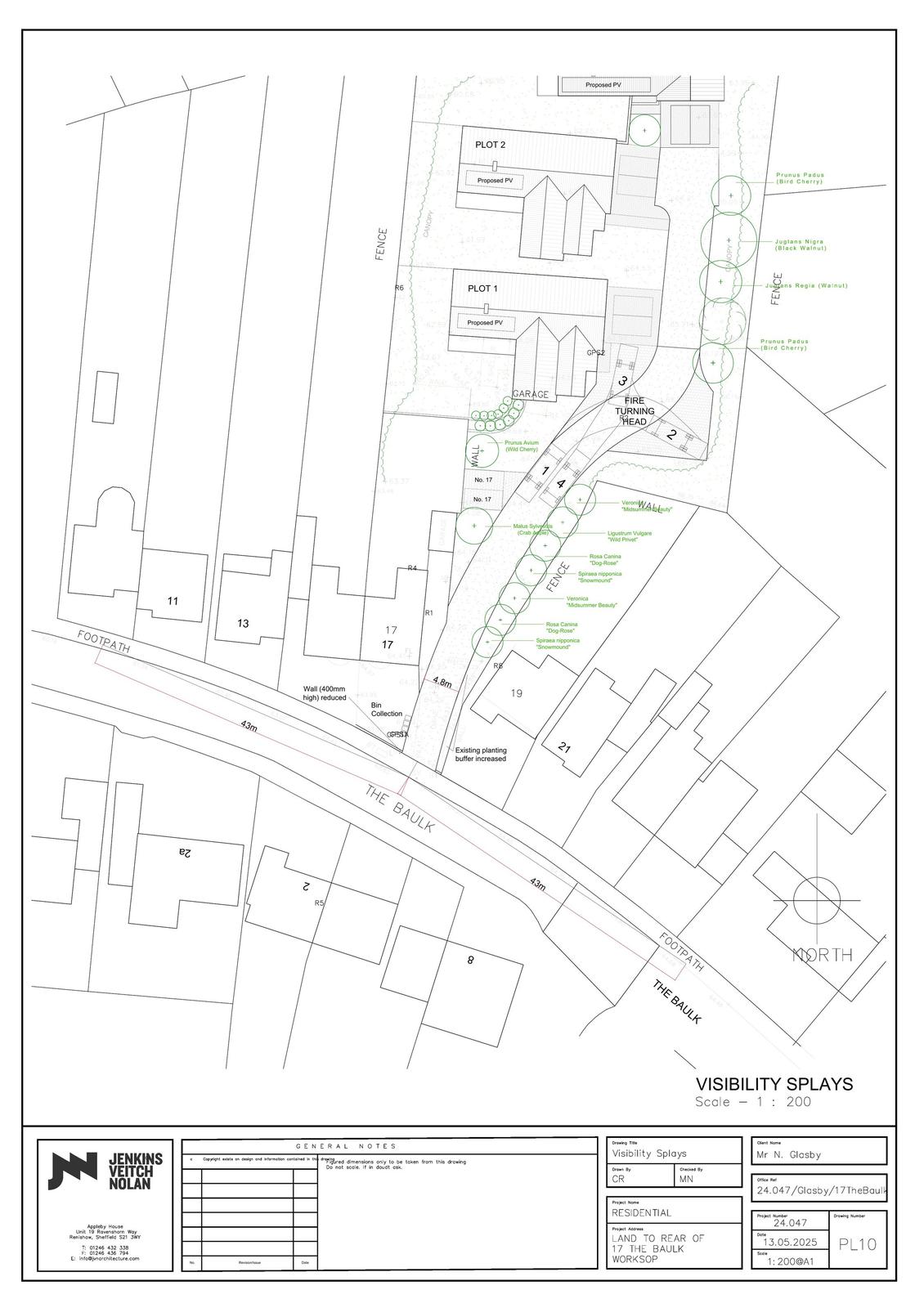
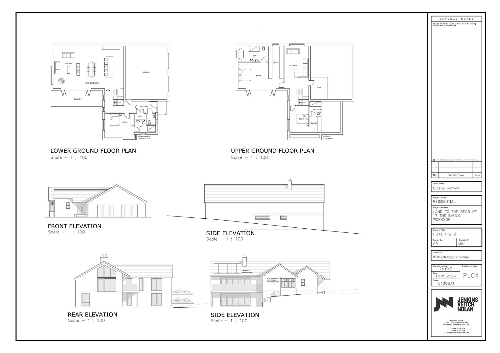
Construction of three new three-bedroom dwellings.

Full proposal

3 No. 3 Bedroom Dwellings

Documents

Consultation Replies
Archived · Original link
Consultation Replies
Archived · Original link
Design & Access Statement
Archived · Original link
Consultation Replies
Archived · Original link
Consultation Replies
Archived · Original link
NCC HIGHWAYS RESPONSE 23.07.2025
Consultation Replies
Not yet archived · Original link
OBJECTION - 01.07.2025
Objection Comment
Not yet archived · Original link
Objection Comment
Archived · Original link
Objection Comment
Archived · Original link
Public Comment
Archived · Original link
Objection Comment
Archived · Original link
Ecological Assessment
Archived · Original link
Drawing
Archived · Original link
Drawing
Archived · Original link
Drawing
Archived · Original link
Drawing
Archived · Original link
Drawing
Archived · Original link
Drawing
Archived · Original link

Have your say

Your comment matters. Councils must consider every representation that raises material planning considerations.

Write a comment