← Bassetlaw District Council

Status

Awaiting decision New housing
Received
02 Feb 2026
New homes
5

Full proposal

Demolish Existing Dwelling and Erect 5 Detached Residential Dwellings with Associated Landscaping and Parking

Documents

APPLICATION FORM - WITHOUT PERSONAL DATA
Application Form
Not yet archived · Original link
BARN HOUSE TYPE A PROPOSED ELEVATIONS
Drawing
Not yet archived · Original link
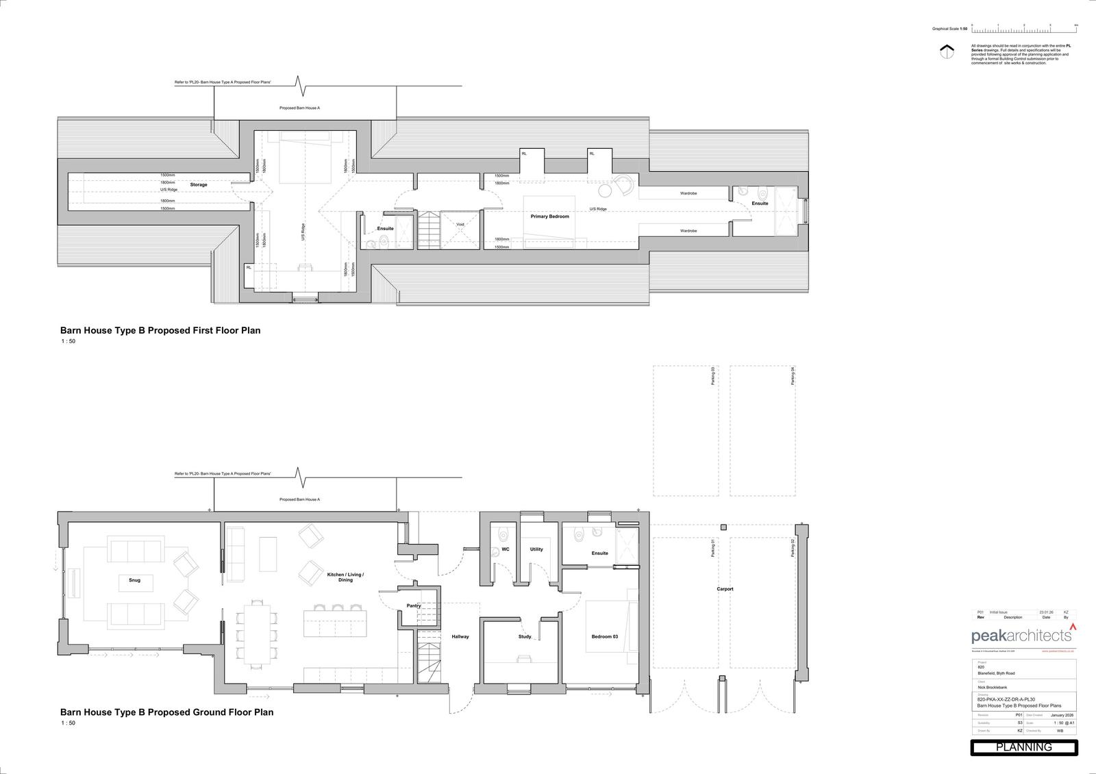
BARN HOUSE TYPE B PROPOSED ELEVATIONS
Drawing
Not yet archived · Original link
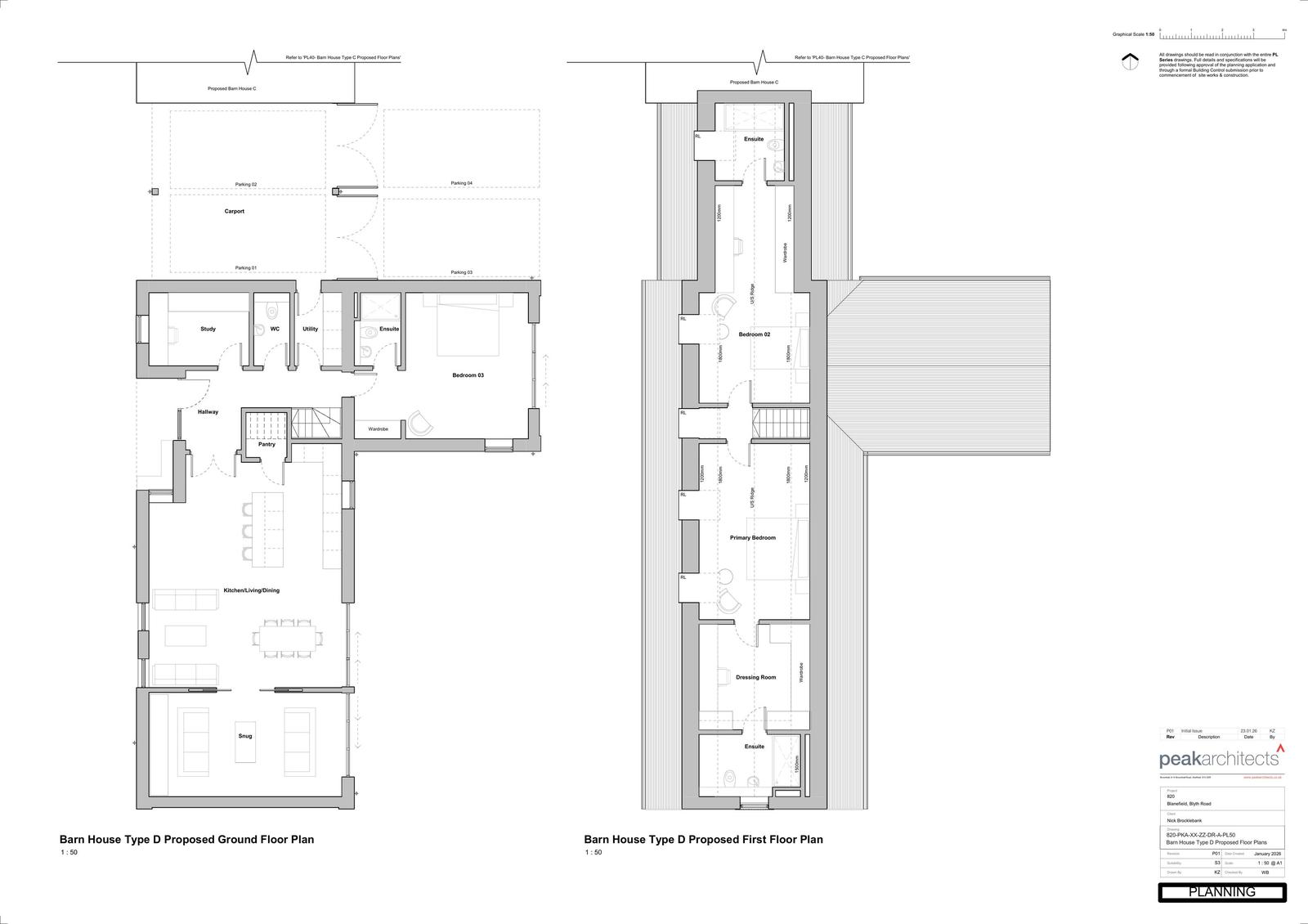
BARN HOUSE TYPE C PROPOSED ELEVATIONS
Drawing
Not yet archived · Original link
BARN HOUSE TYPE D PROPOSED ELEVATIONS
Drawing
Not yet archived · Original link
BNG METRIC TABLE - 25.02.2026
Biodiversity Net Gain
Not yet archived · Original link
CONDITION ASSESSMENTS VERSION- 25.02.2026
Biodiversity Net Gain
Not yet archived · Original link
DESIGN AND ACCESS STATEMENT
Design & Access Statement
Not yet archived · Original link
Drawing
Archived · Original link
Drawing
Archived · Original link
EXISTING SITE SECTION
Drawing
Not yet archived · Original link
HERITAGE STATEMENT- 25.02.2026
Heritage Impact Assessment
Not yet archived · Original link
LANDSCAPE MANAGEMENT PLAN- 25.02.2026
Landscaping
Not yet archived · Original link
LETTER BDC
Supporting Information
Not yet archived · Original link
PLANNING STATEMENT
Supporting Information
Not yet archived · Original link
PRELIMINARY ECOLOGICAL APPRAISAL
Ecological Assessment
Not yet archived · Original link
PRELIMINARY ECOLOGICAL APPRAISAL REV 1
Ecological Assessment
Not yet archived · Original link
PROPOSED FARMHOUSE ELEVATIONS
Drawing
Not yet archived · Original link
Drawing
Archived · Original link
PROPOSED SITE SECTION
Drawing
Not yet archived · Original link
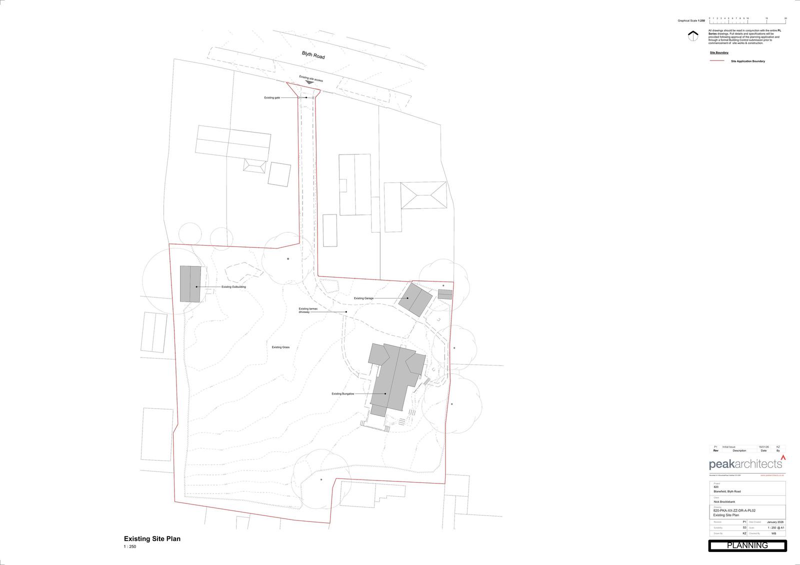
SITE LOCATION
Drawing
Not yet archived · Original link
SOFT LANDSCAPE PROPOSAL- 25.02.2026
Drawing
Not yet archived · Original link
TREE PROTECTION PROPOSAL- 25.02.2026
Drawing
Not yet archived · Original link
TREE SURVEY
Tree Survey
Not yet archived · Original link

Have your say

Your comment matters. Councils must consider every representation that raises material planning considerations.

Write a comment