← Bassetlaw District Council

Status

Awaiting decision Change of use
Received
Last month
New homes
0

Full proposal

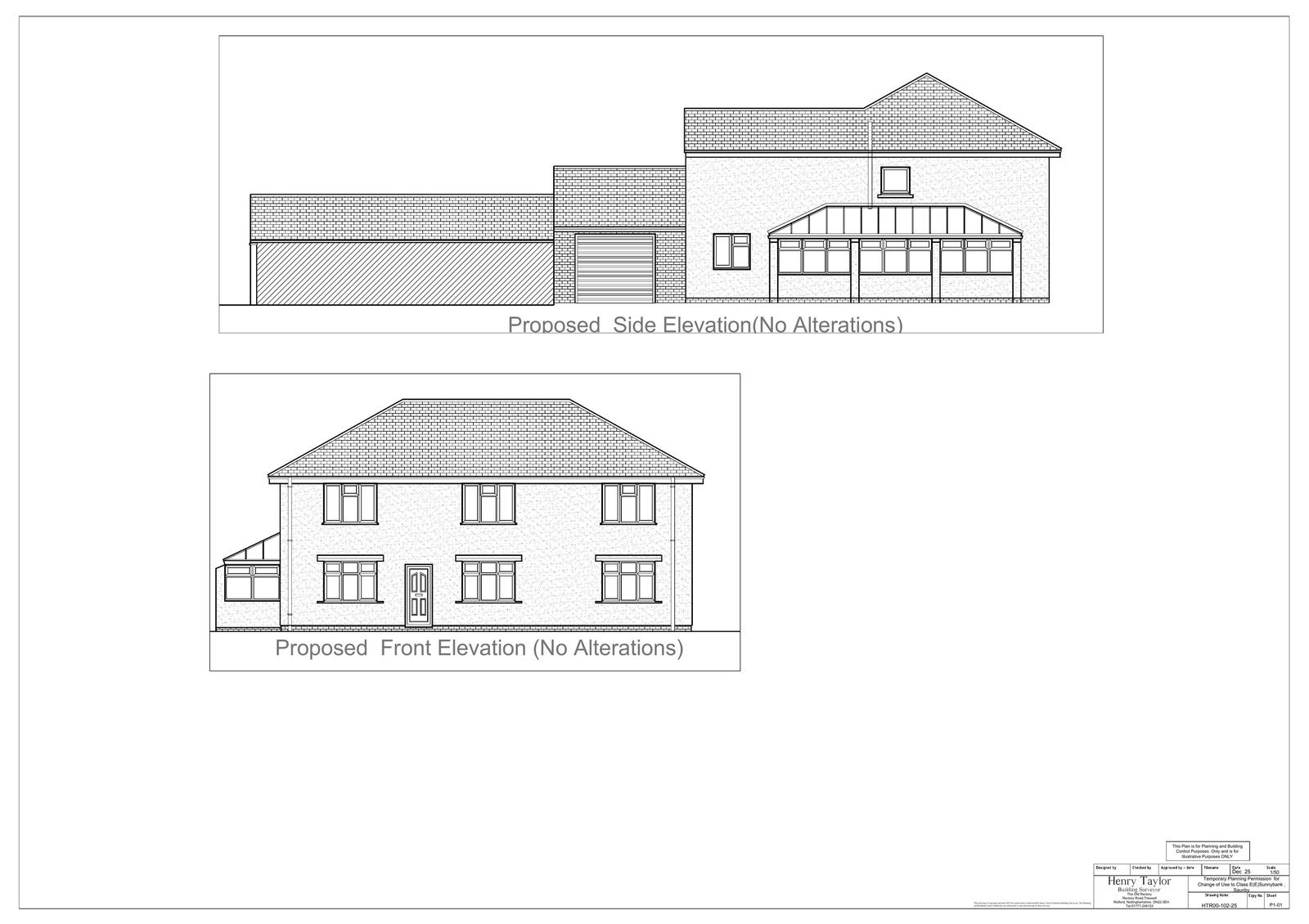
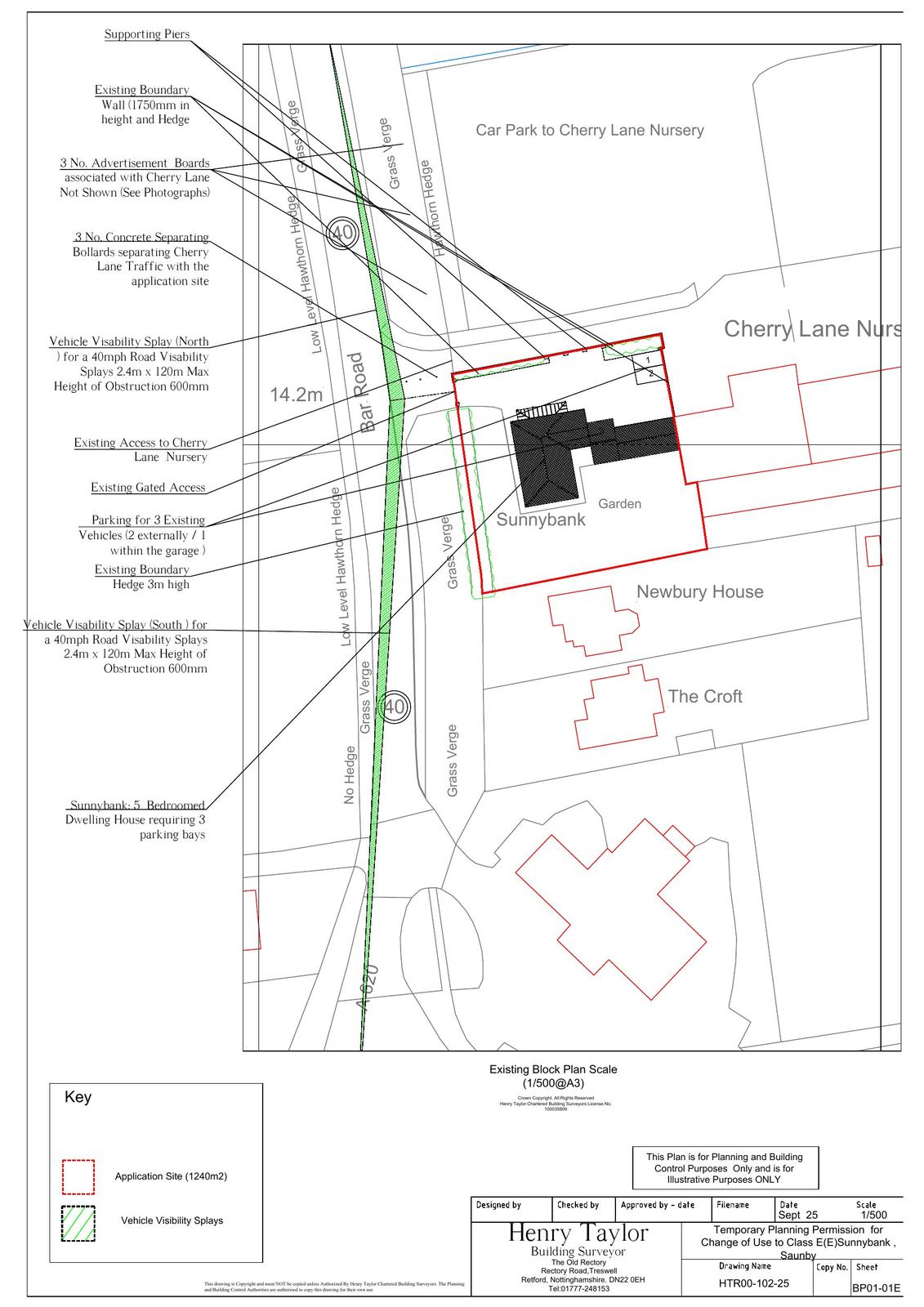
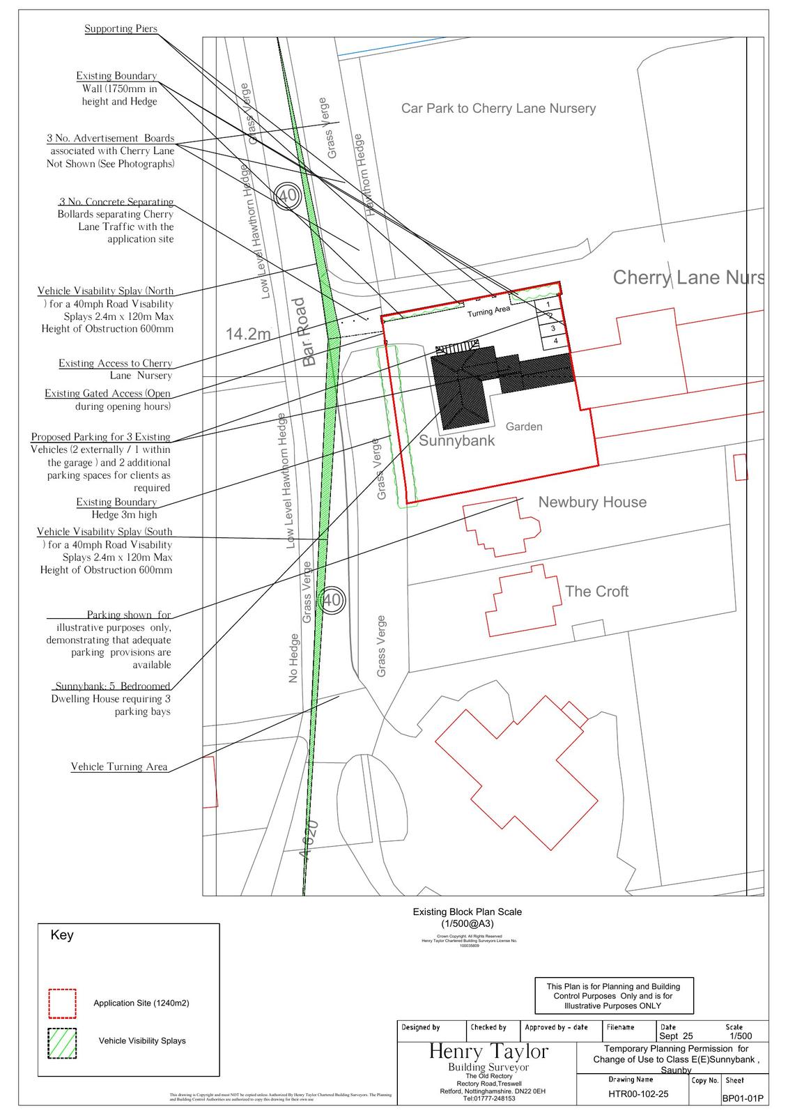
Proposed Temporary Change of Use of One Room within a Residential Dwelling (Use Class C3) to a Specialist Ear Clinic (Use Class E(e)) for a Period of Two Years

Have your say

Your comment matters. Councils must consider every representation that raises material planning considerations.

Write a comment