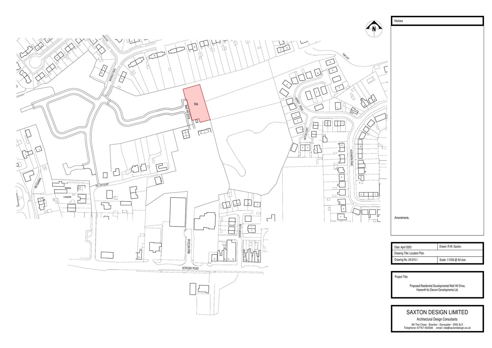
← Bassetlaw District Council

Status

Awaiting decision New housing
Received
Last month
New homes
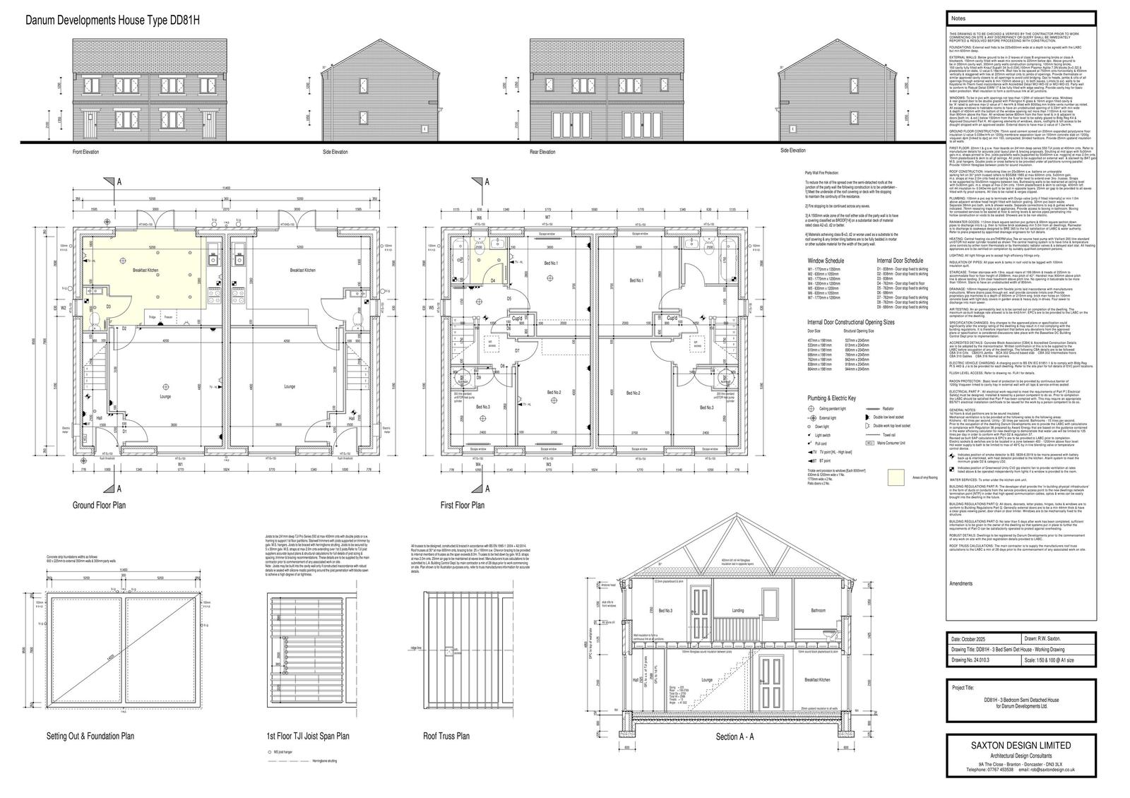
6

Full proposal

Erection of 6 No. Dwellings.

Documents

Drawing
Archived · Original link
Supporting Information
Archived · Original link
Drawing
Archived · Original link

Have your say

Your comment matters. Councils must consider every representation that raises material planning considerations.

Write a comment