← Bexley

Status

With Case Officer Minor details
Received
09 Jul 2025
New homes
0

Full proposal

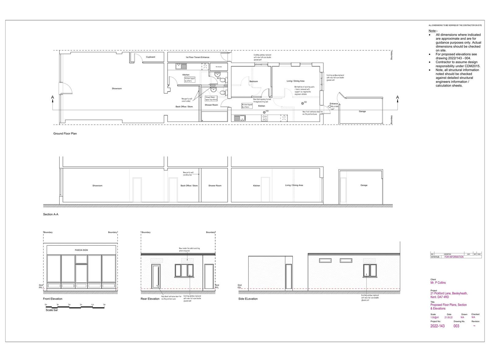
Prior Approval for the change of use of part of ground floor unit from Class E to 1 self contained residential unit (Class C3)

Documents

APPLICATION FORM
Application Form - Public
Not yet archived · Original link
EXISTING BLOCK PLAN
Superseded Drawing
Not yet archived · Original link
EXISTING BLOCK PLAN
Drawing
Not yet archived · Original link
EXISTING PLANS
Drawing
Not yet archived · Original link
PROPOSED BIN AND CYCLE STORES
Drawing
Not yet archived · Original link
PROPOSED BLOCK PLAN
Superseded Drawing
Not yet archived · Original link
PROPOSED BLOCK PLAN
Drawing
Not yet archived · Original link
PROPOSED BLOCK PLAN
Superseded Drawing
Not yet archived · Original link
PROPOSED BLOCK PLAN
Superseded Drawing
Not yet archived · Original link
Drawing
Archived · Original link
Drawing
Archived · Original link
Superseded Drawing
Archived · Original link

Have your say

Your comment matters. Councils must consider every representation that raises material planning considerations.

Write a comment