← Bexley

Status

With Case Officer House extension
Received
17 Dec 2025
New homes
0

Full proposal

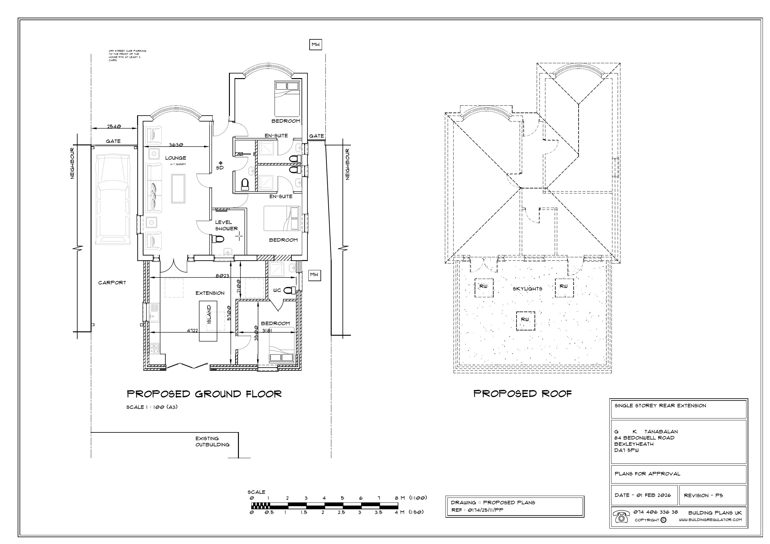
The erection of a single storey rear extension, which would extend beyond the rear wall of the original house by 6.00 metres, for which the maximum height would be 3.00 metres, and for which the height of the eaves would be 3.00 metres.

Documents

APPLICATION FORM
Application Form - Public
Not yet archived · Original link
EXISTING BLOCK PLAN
Drawing
Not yet archived · Original link
EXISTING ELEVATIONS
Drawing
Not yet archived · Original link
EXISTING FLOOR PLANS
Drawing
Not yet archived · Original link
PROPOSED BLOCK PLAN
Drawing
Not yet archived · Original link
PROPOSED ELEVATIONS
Drawing
Not yet archived · Original link
Drawing
Archived · Original link
Drawing
Archived · Original link

Have your say

Your comment matters. Councils must consider every representation that raises material planning considerations.

Write a comment