← Bexley

Status

With Case Officer House extension
Received
Last month
New homes
0

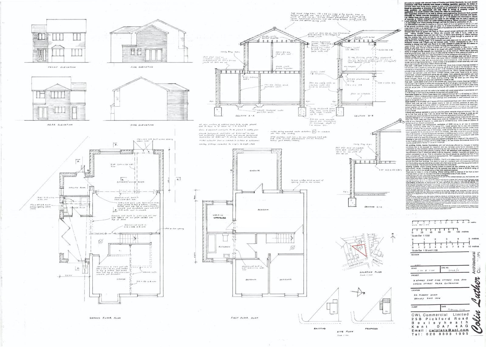
Full proposal

Erection of a part one/part two storey rear and side extension.

Have your say

Your comment matters. Councils must consider every representation that raises material planning considerations.

Write a comment