← Bexley

Status

With Case Officer House extension
Received
20 Jan 2026
New homes
0

Full proposal

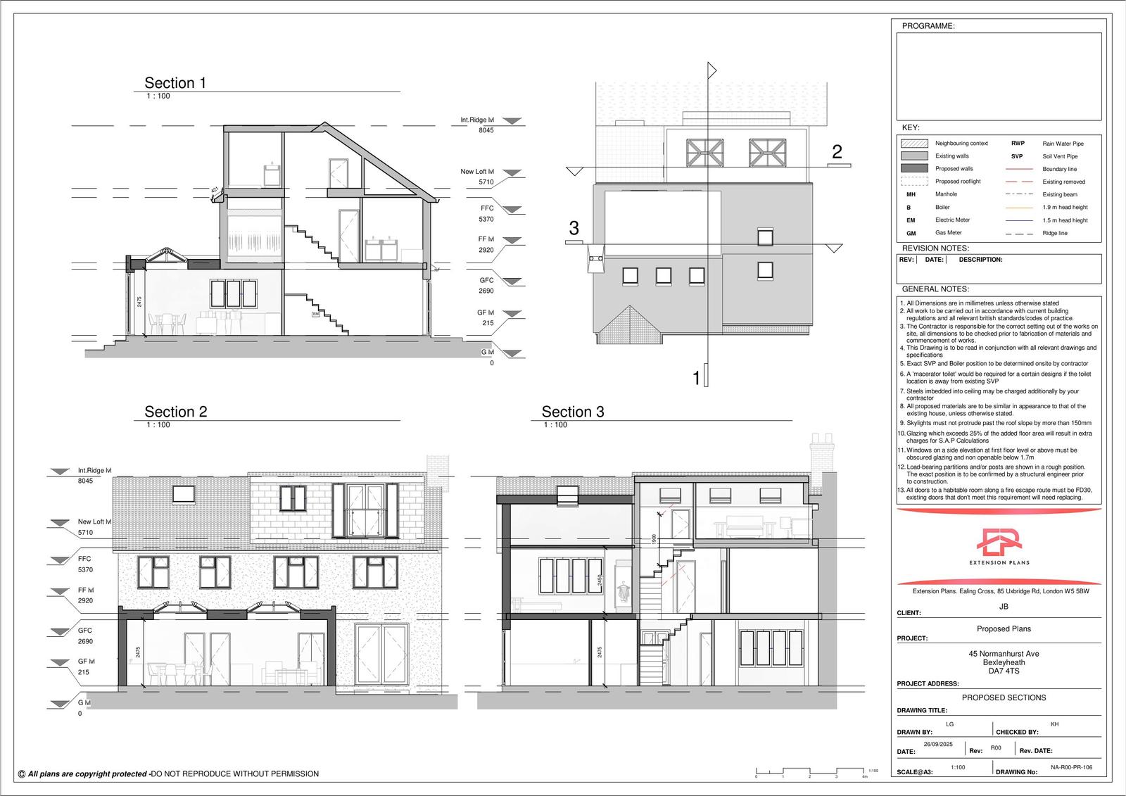
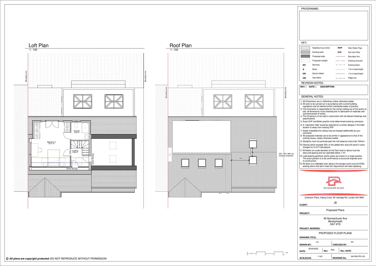
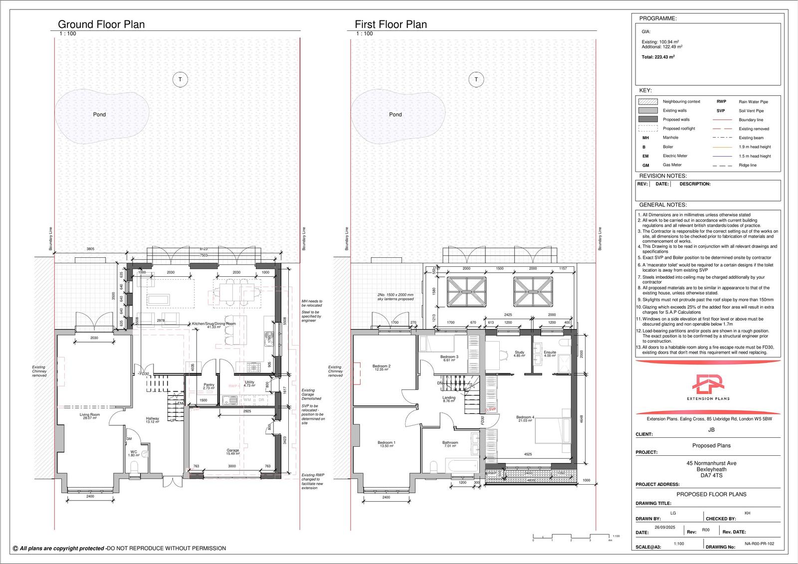
Part one/part two storey side and rear extension including conversion of garage into habitable space and rooflights to front and rear roof slopes.

Documents

Drawing
Archived · Original link
Drawing
Archived · Original link
Drawing
Archived · Original link
Drawing
Archived · Original link
Drawing
Archived · Original link

Have your say

Your comment matters. Councils must consider every representation that raises material planning considerations.

Write a comment