← Bexley

Status

With Case Officer House extension
Received
Last month
New homes
0

Full proposal

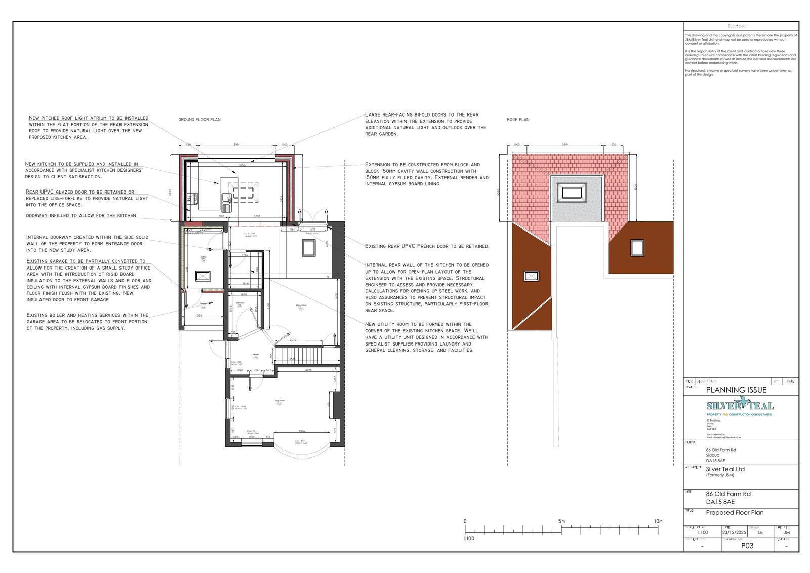
Erection of a single storey rear extension, installation of roof light to existing garage and partial conversion of garage to habitable accommodation.

Documents

Application Form - Public
Archived · Original link
Drawing
Archived · Original link
Drawing
Archived · Original link
Drawing
Archived · Original link
Drawing
Archived · Original link
SITE PLAN AND BLOCK PLANS
Drawing
Not yet archived · Original link

Have your say

Your comment matters. Councils must consider every representation that raises material planning considerations.

Write a comment