← Bexley

Status

With Case Officer House extension
Received
Last month
New homes
0

Full proposal

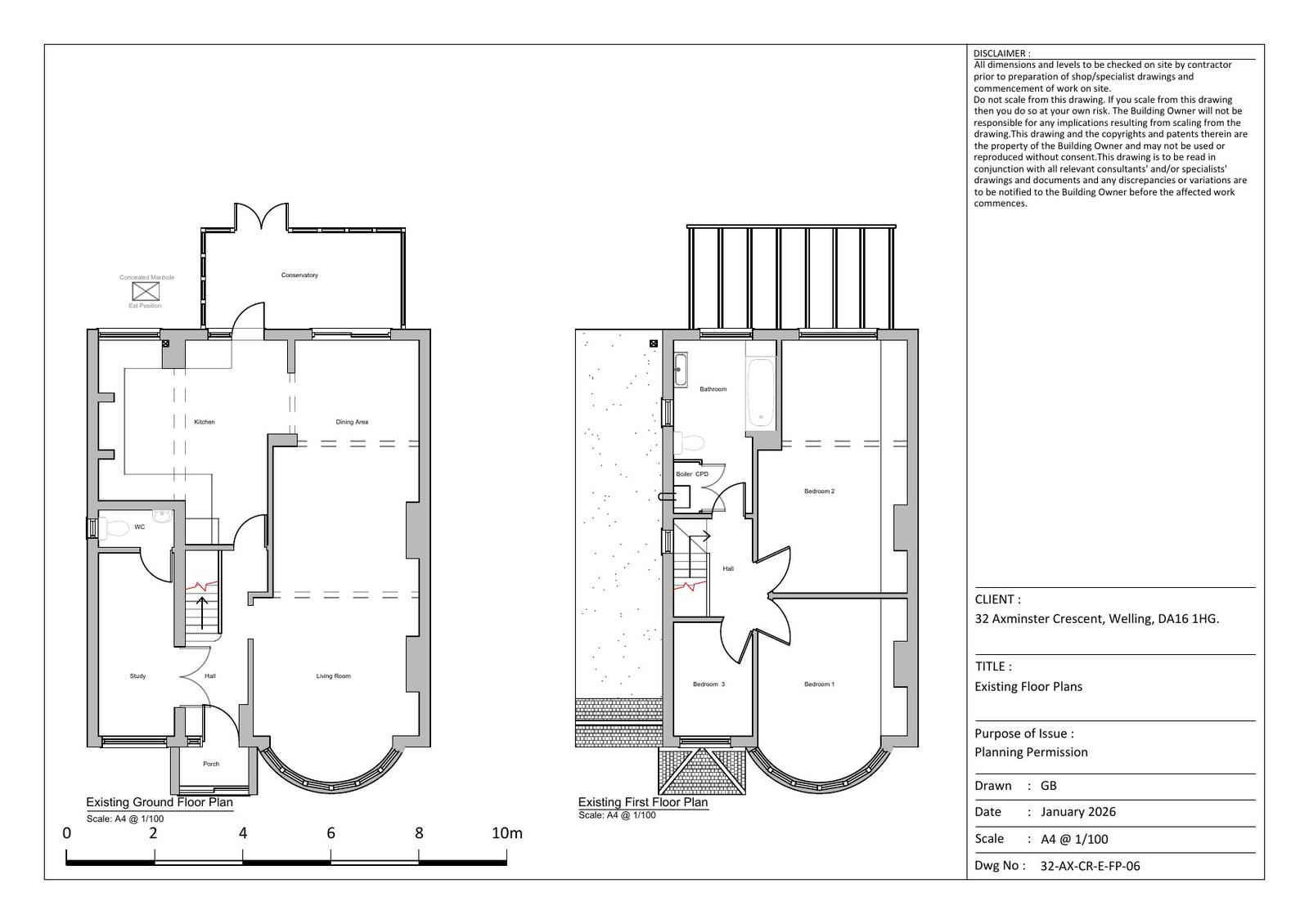
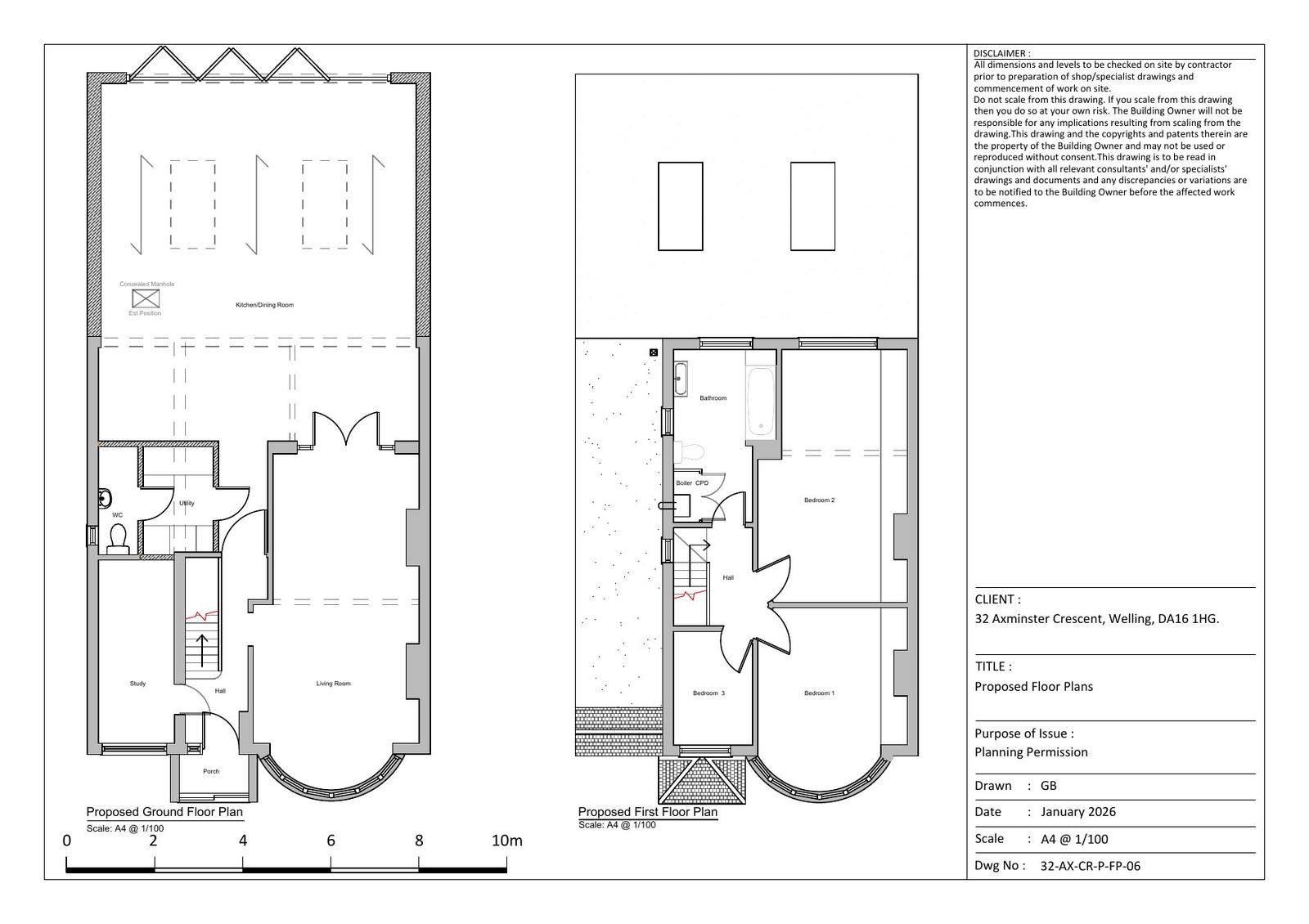
The erection of a single storey rear extension, which would extend beyond the rear wall of the original house by 6.00 metres, for which the maximum height would be 2.86 metres, and for which the height of the eaves would be 2.86 metres.

Documents

Drawing
Archived · Original link
Drawing
Archived · Original link
Drawing
Archived · Original link
Drawing
Archived · Original link
Drawing
Archived · Original link
Drawing
Archived · Original link
Drawing
Archived · Original link

Have your say

Your comment matters. Councils must consider every representation that raises material planning considerations.

Write a comment