← Bexley

Status

With Case Officer Change of use
Received
Last month
New homes
0

Full proposal

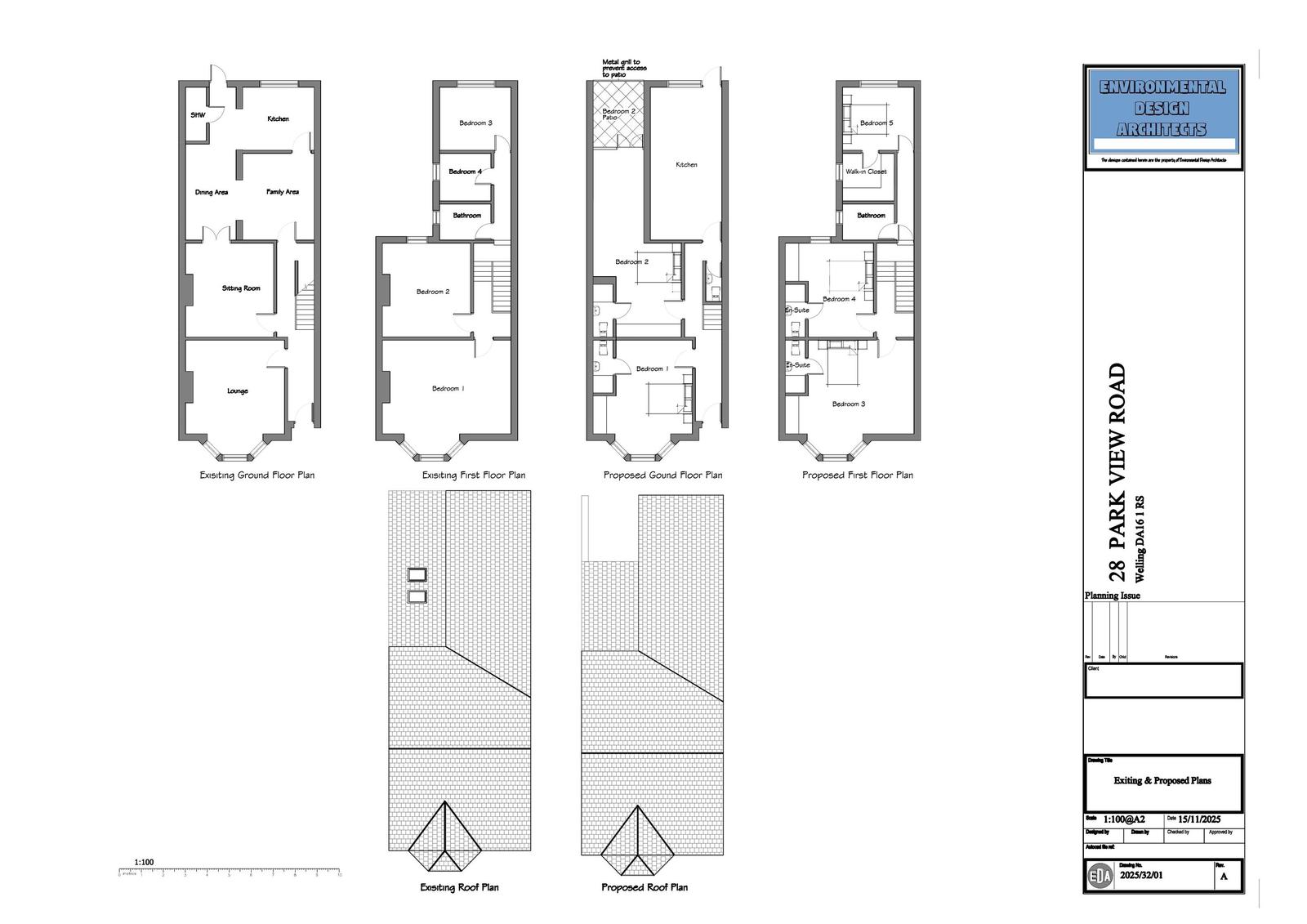
Change of use from a Dwelling House(Class C3) to House of Multiple Occupancy (Class C4) for up to five occupants.

Have your say

Your comment matters. Councils must consider every representation that raises material planning considerations.

Write a comment