← Bexley

Status

With Case Officer House extension
Received
Last month
New homes
0

Full proposal

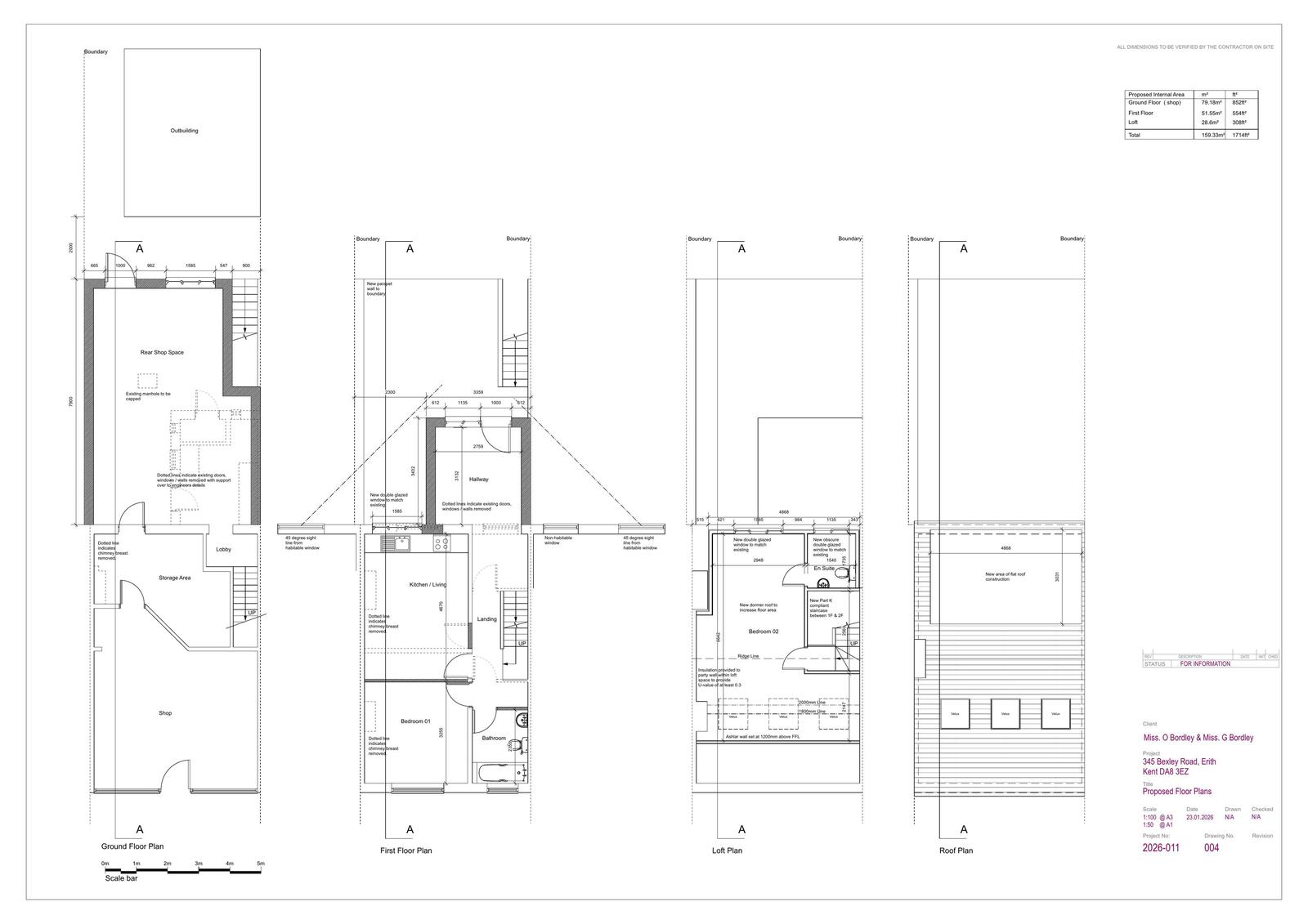
Part one/part two storey rear extension and conversion of roof space including rear dormer extension and rooflights to front roof slope to provide self-contained residential unit following demolition of existing rear extension.

Documents

APPLICATION FORM
Application Form - Public
Not yet archived · Original link
EXISTING ELEVATIONS
Drawing
Not yet archived · Original link
EXISTING FLOOR PLANS
Drawing
Not yet archived · Original link
EXISTING SITE LOCATION AND BLOCK PLAN
Drawing
Not yet archived · Original link
PROPOSED ELEVATIONS
Drawing
Not yet archived · Original link
Drawing
Archived · Original link
PROPOSED SITE LOCATION AND BLOCK PLAN
Drawing
Not yet archived · Original link

Have your say

Your comment matters. Councils must consider every representation that raises material planning considerations.

Write a comment