← Bexley

Status

With Case Officer Change of use
Received
Last month
New homes
0

Full proposal

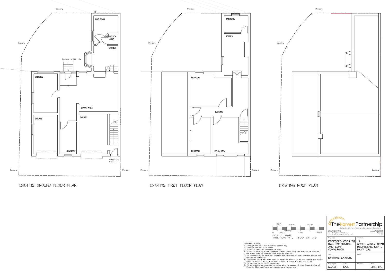
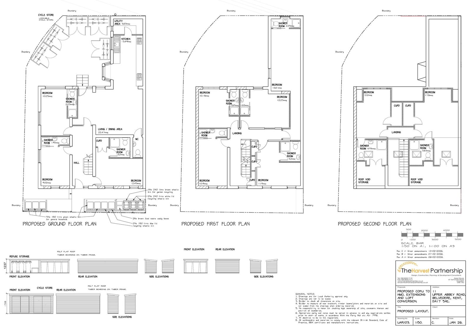
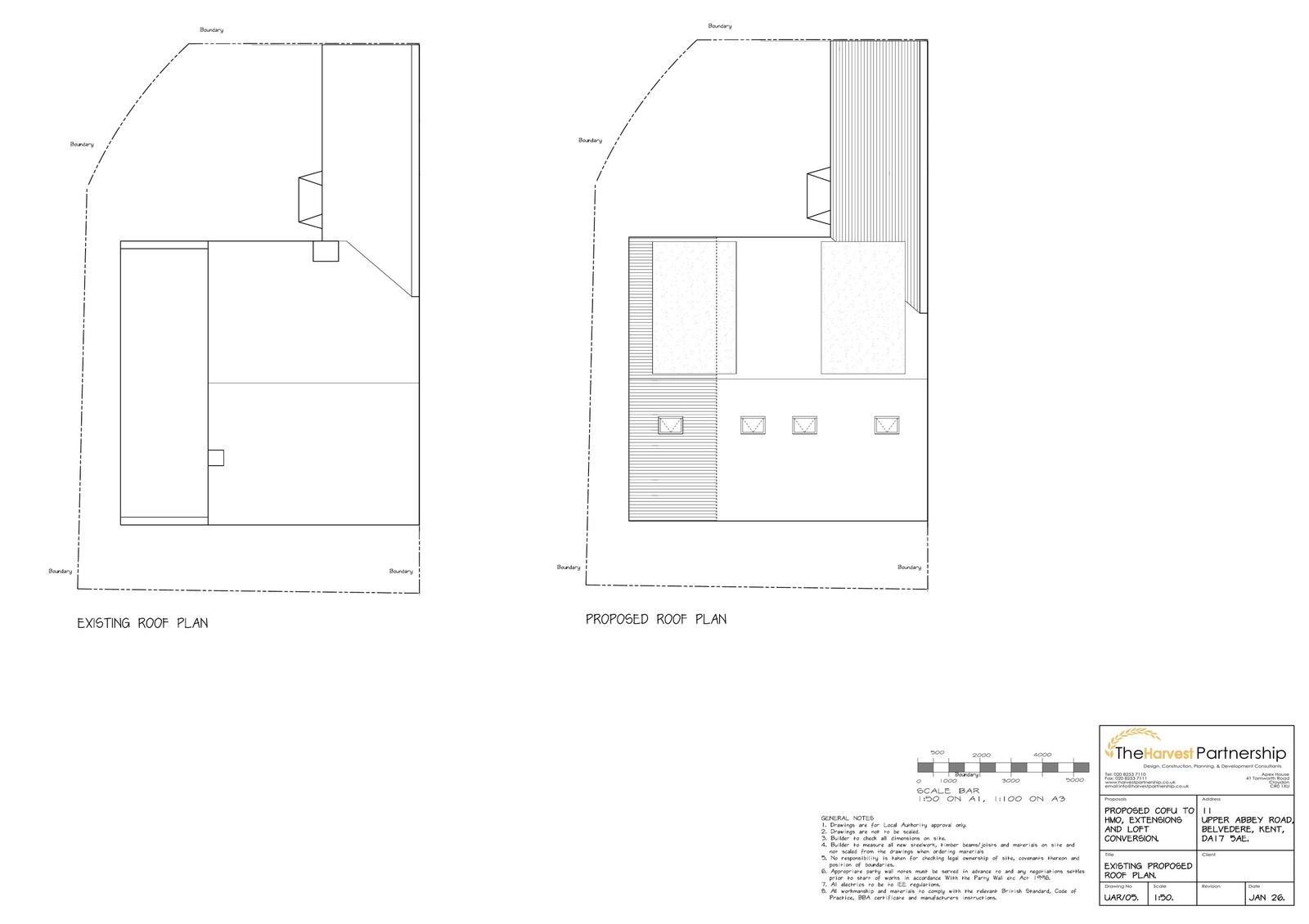
Change of use from residential dwelling (Class C3) to HMO (house of multiple occupation) (Sui Generis) for a maximum of 10 people. First floor side extension and conversion of garage to habitable room, conversion of roof space involving alterations to existing roofline, including two dormer extensions at rear and rooflights to front roofslope.

Documents

Application Form - Public
Archived · Original link
Drawing
Archived · Original link
Drawing
Archived · Original link
Drawing
Archived · Original link
Drawing
Archived · Original link
Drawing
Archived · Original link
SITE LOCATION PLAN
Drawing
Not yet archived · Original link

Have your say

Your comment matters. Councils must consider every representation that raises material planning considerations.

Write a comment