← Bexley

Status

With Case Officer New housing
Received
Last month
New homes
3

Full proposal

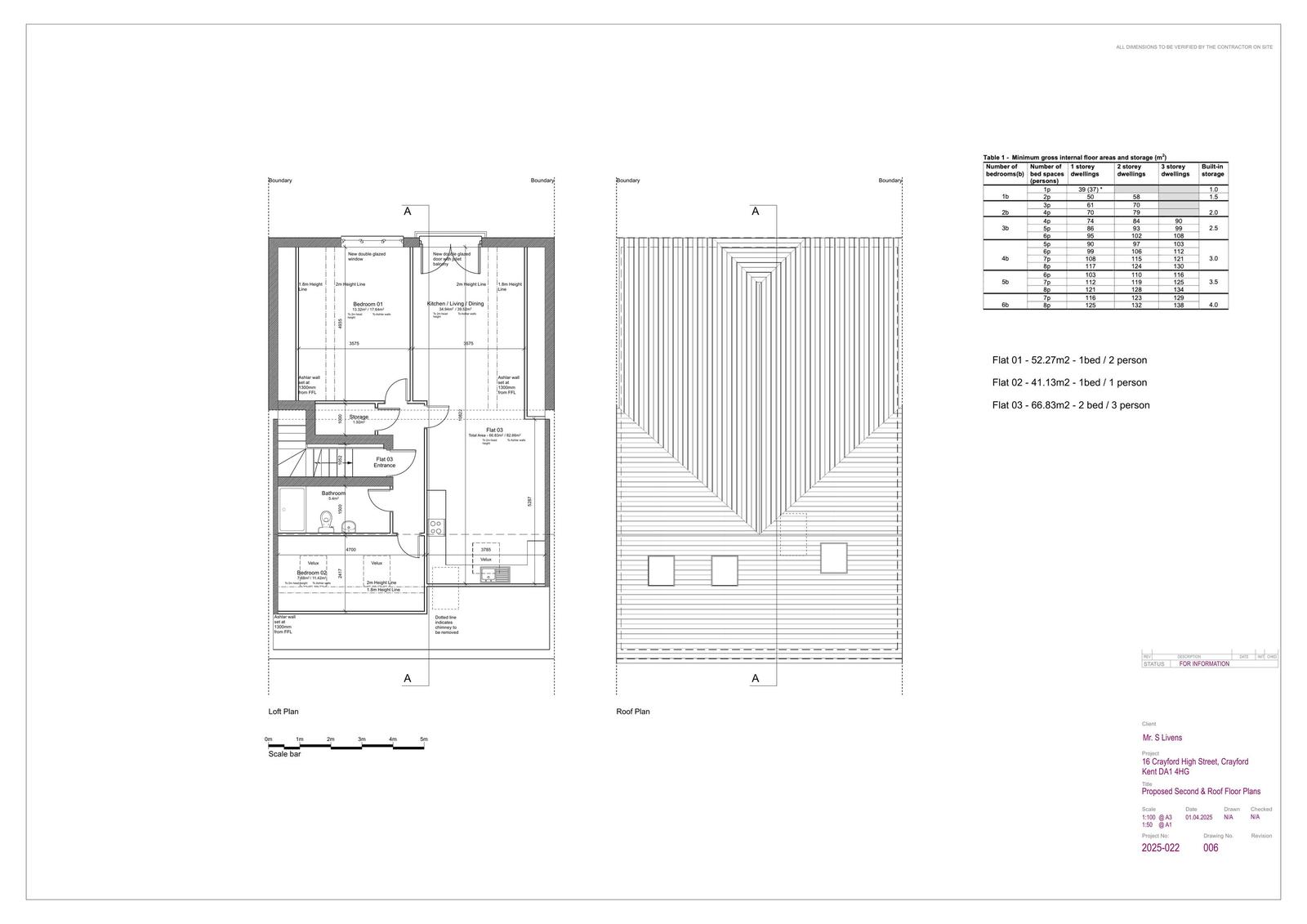
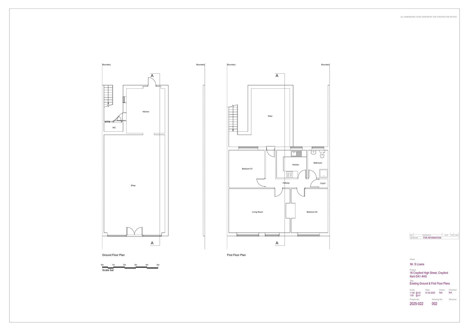
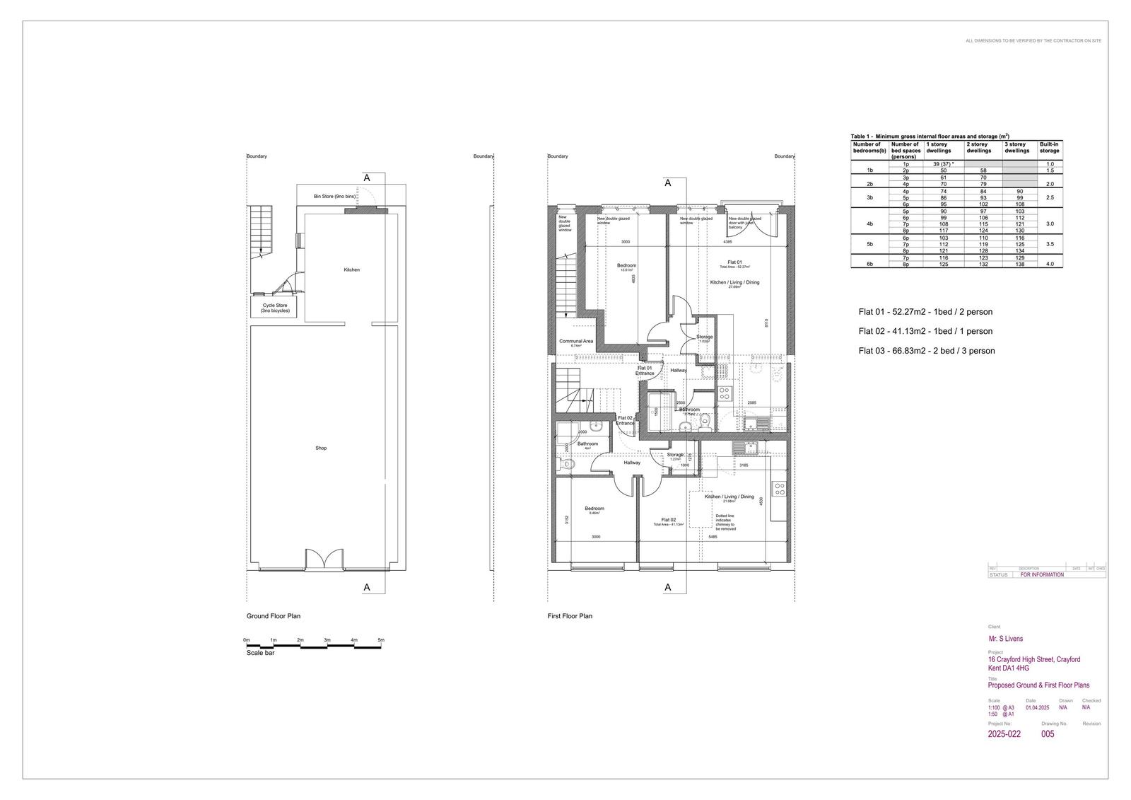
Erection of first floor rear extension to create three self contained residential units, incoprating a loft conversion along with refuse/cycle storage.

Have your say

Your comment matters. Councils must consider every representation that raises material planning considerations.

Write a comment