← Bexley

Status

With Case Officer House extension
Received
25 days ago
New homes
0

Full proposal

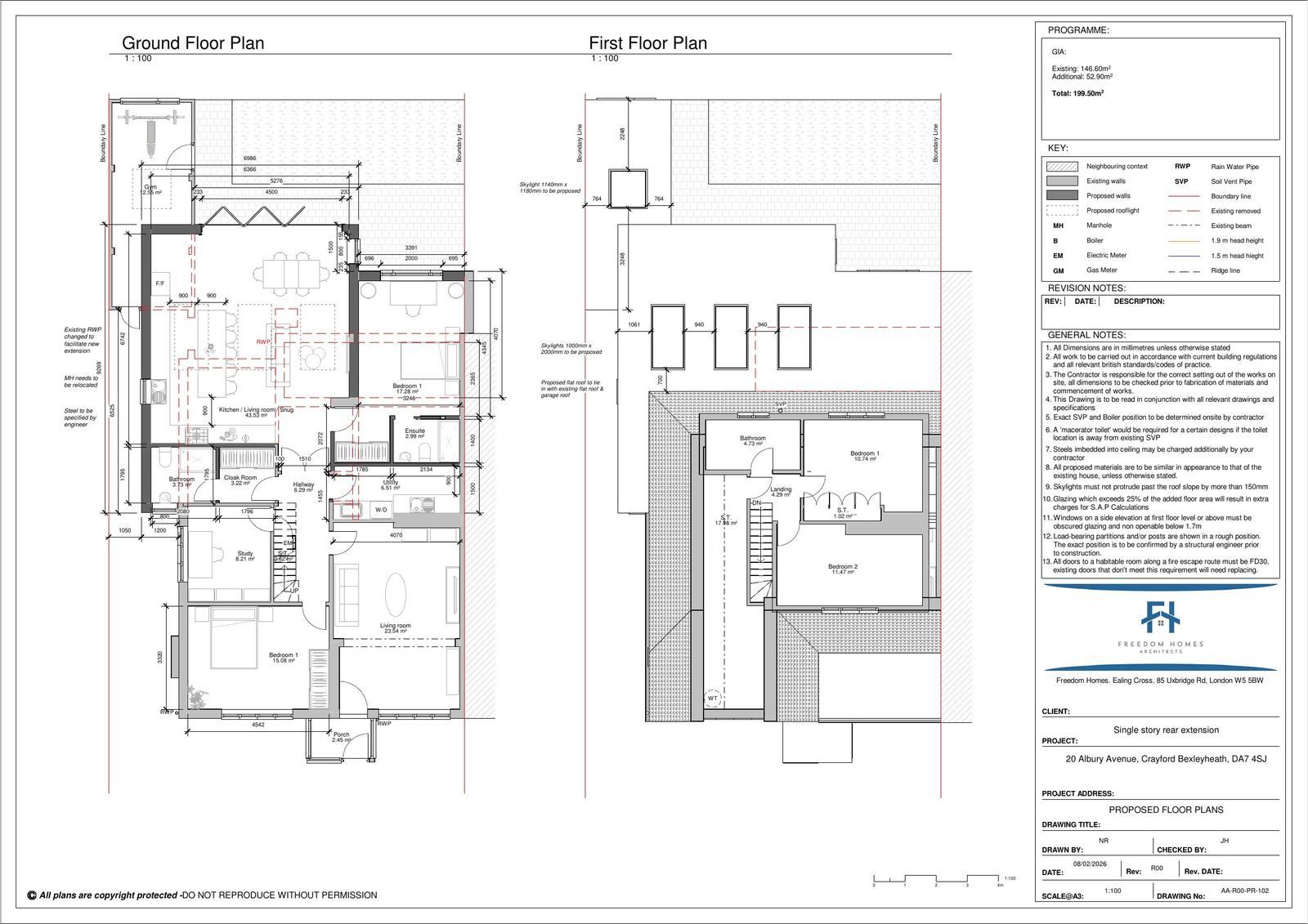
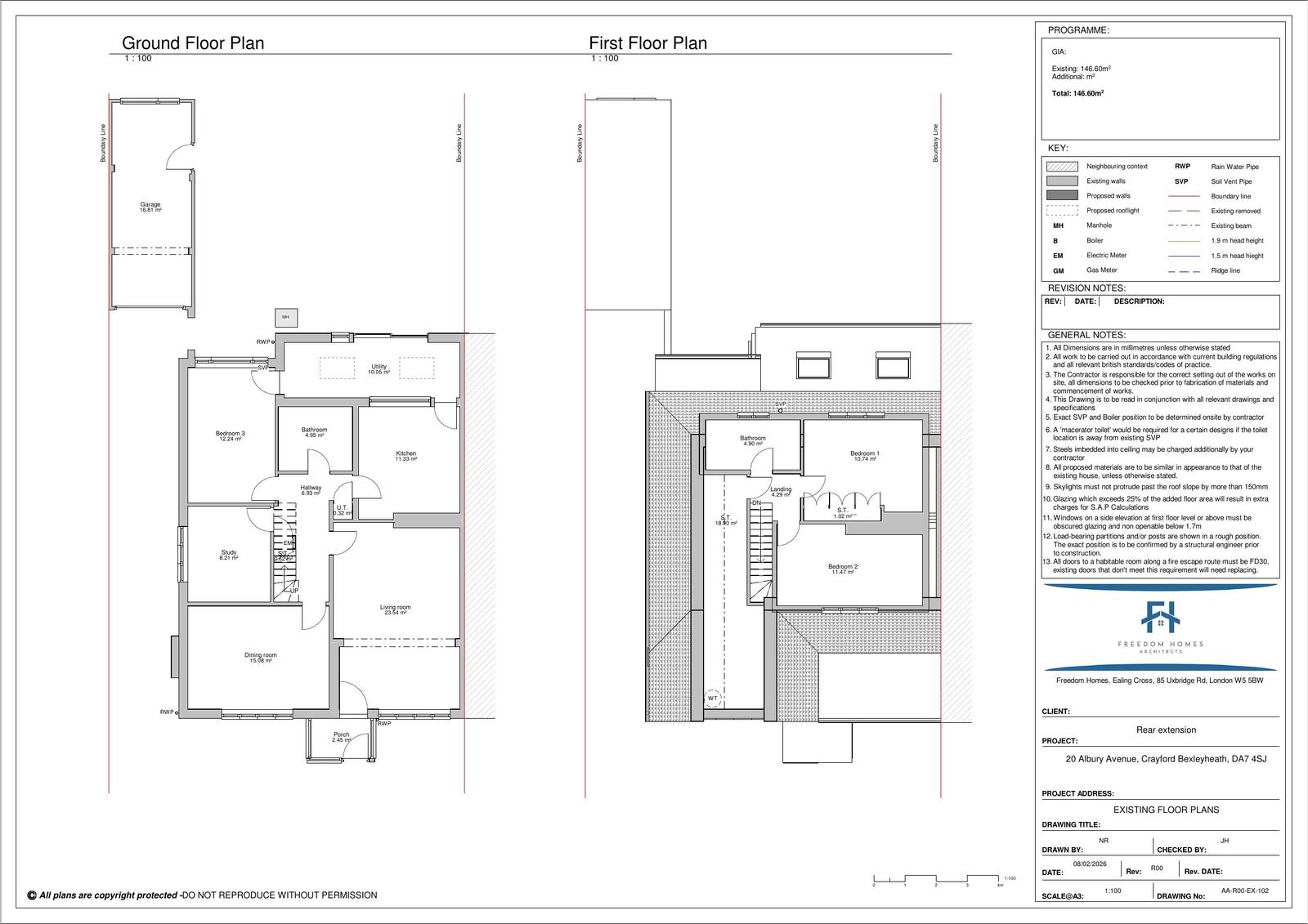
Erection of a single storey rear and side extension.

Have your say

Your comment matters. Councils must consider every representation that raises material planning considerations.

Write a comment