2026/01241/PA
Birmingham City Council
Status
Registered
House extension
Received
Last month
New homes
0
Full proposal
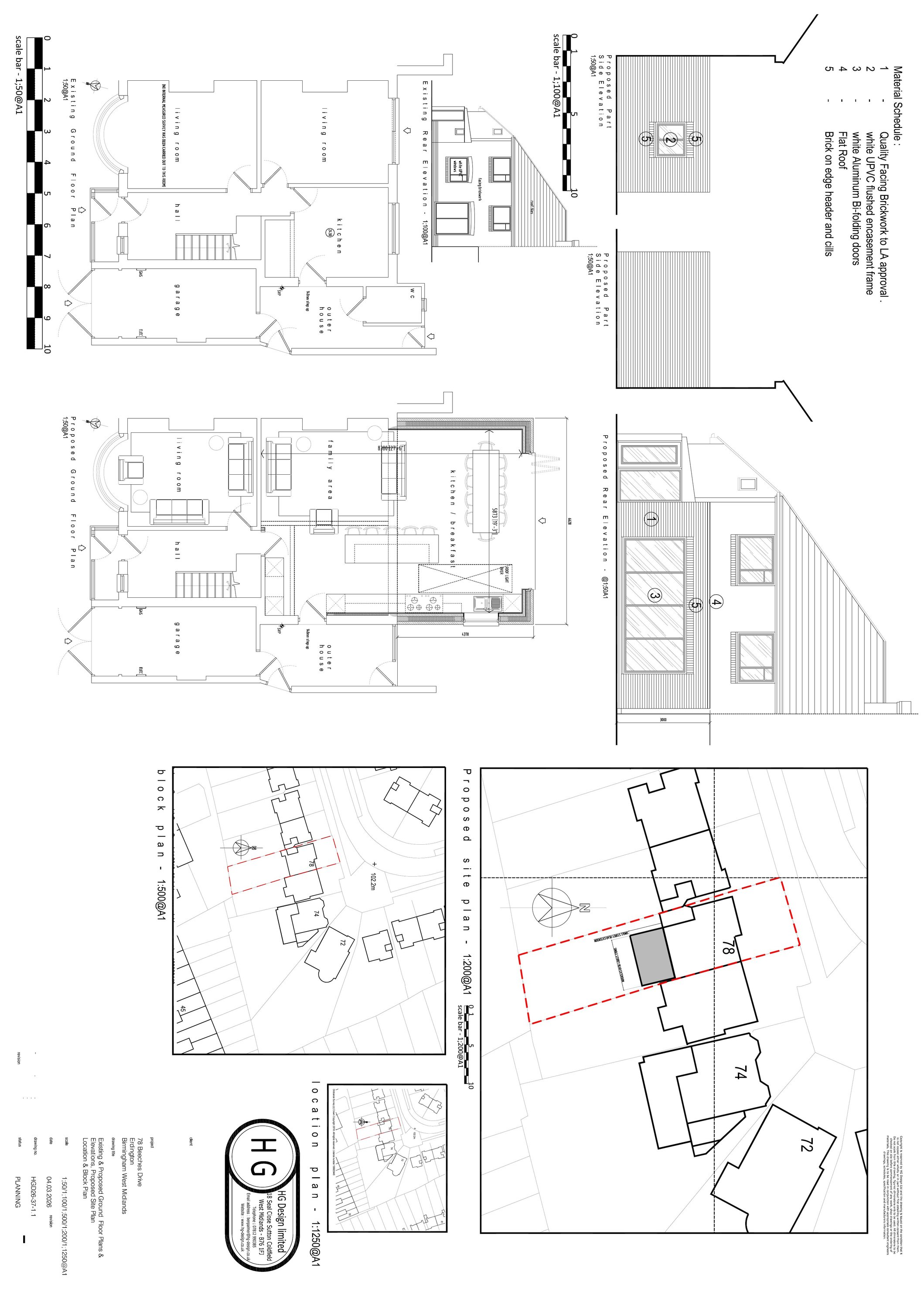
Erection of 4.37 metre deep single storey rear extension. Maximum height 3 metres, eaves height 3 metres
Documents
Uncategorised
Archived
· Original link
Uncategorised
Archived
· Original link
Associated Documents Display 10 20 50 100 documents per page Search documents: Date Description Document Sub Type View Measure 09/03/2026 Plans Application Plans 09/03/2026 Application form redacted PA Form Without Details Showing 1 to 2 of 2 documents ← Previous 1 Next → The system has encountered a problem while loading the documents
Uncategorised
Not yet archived
· Original link
Associated Documents Display 10 20 50 100 documents per page Search documents: Date Description Document Sub Type View Measure 09/03/2026 Plans Application Plans 09/03/2026 Application form redacted PA Form Without Details Showing 1 to 2 of 2 documents ← Previous 1 Next → The system has encountered a problem while loading the documents
Uncategorised
Not yet archived
· Original link
Have your say
Your comment matters. Councils must consider every representation that raises material planning considerations.