2026/01322/PA
Birmingham City Council
Status
Registered
House extension
Received
25 days ago
New homes
0
Full proposal
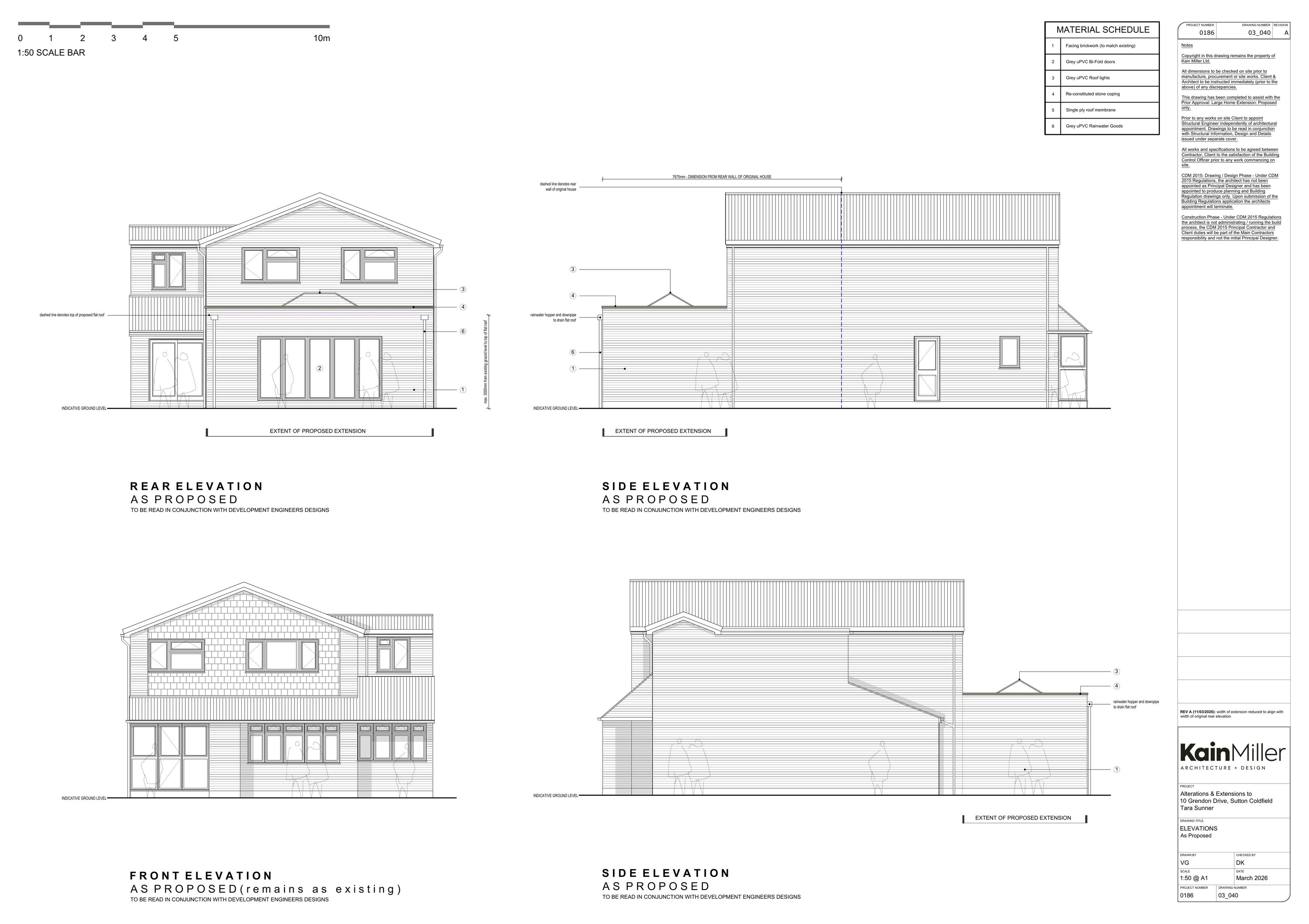
Erection of 7.68 metre deep single storey rear extension. Maximum height 4 metres, eaves height 3 metres
Documents
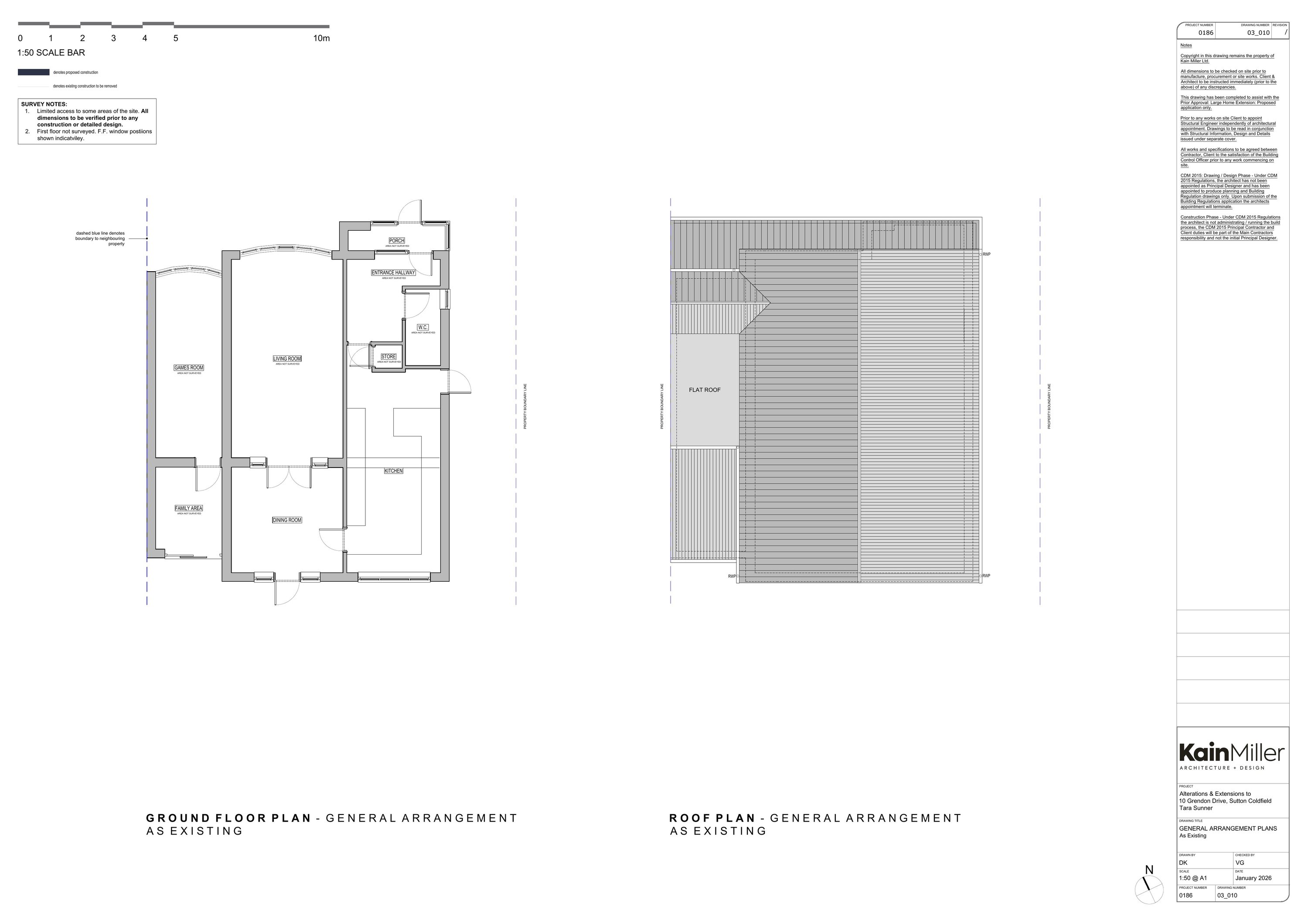
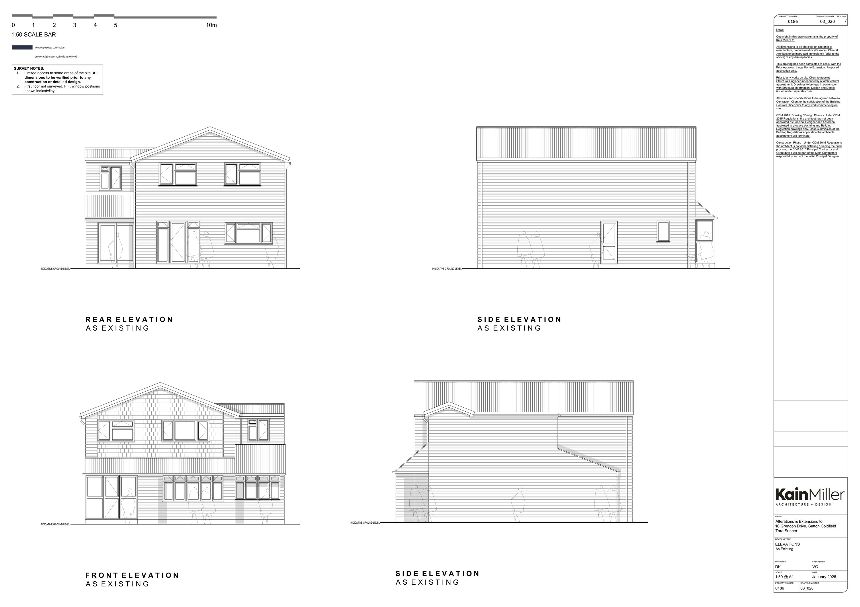
Associated Documents Display 10 20 50 100 documents per page Search documents: Date Description Document Sub Type View Measure 12/03/2026 ground floor and roof plan as proposed Application Plans 12/03/2026 ground floor and roof plan as existing Application Plans 12/03/2026 elevations as existing Application Plans 12/03/2026 Application form redacted PA Form Without Details 12/03/2026 Site and location plan Application Plans 12/03/2026 elevations as proposed Application Plans Showing 1 to 6 of 6 documents ← Previous 1 Next → The system has encountered a problem while loading the documents
Uncategorised
Not yet archived
· Original link
Associated Documents Display 10 20 50 100 documents per page Search documents: Date Description Document Sub Type View Measure 12/03/2026 ground floor and roof plan as proposed Application Plans 12/03/2026 ground floor and roof plan as existing Application Plans 12/03/2026 elevations as existing Application Plans 12/03/2026 Application form redacted PA Form Without Details 12/03/2026 Site and location plan Application Plans 12/03/2026 elevations as proposed Application Plans Showing 1 to 6 of 6 documents ← Previous 1 Next → The system has encountered a problem while loading the documents
Uncategorised
Not yet archived
· Original link
Uncategorised
Archived
· Original link
Associated Documents Display 10 20 50 100 documents per page Search documents: Date Description Document Sub Type View Measure 12/03/2026 ground floor and roof plan as proposed Application Plans 12/03/2026 ground floor and roof plan as existing Application Plans 12/03/2026 elevations as existing Application Plans 12/03/2026 Application form redacted PA Form Without Details 12/03/2026 Site and location plan Application Plans 12/03/2026 elevations as proposed Application Plans Showing 1 to 6 of 6 documents ← Previous 1 Next → The system has encountered a problem while loading the documents
Uncategorised
Not yet archived
· Original link
Uncategorised
Archived
· Original link
Uncategorised
Archived
· Original link
Associated Documents Display 10 20 50 100 documents per page Search documents: Date Description Document Sub Type View Measure 12/03/2026 ground floor and roof plan as proposed Application Plans 12/03/2026 ground floor and roof plan as existing Application Plans 12/03/2026 elevations as existing Application Plans 12/03/2026 Application form redacted PA Form Without Details 12/03/2026 Site and location plan Application Plans 12/03/2026 elevations as proposed Application Plans Showing 1 to 6 of 6 documents ← Previous 1 Next → The system has encountered a problem while loading the documents
Uncategorised
Not yet archived
· Original link
Uncategorised
Archived
· Original link
Uncategorised
Archived
· Original link
Associated Documents Display 10 20 50 100 documents per page Search documents: Date Description Document Sub Type View Measure 12/03/2026 ground floor and roof plan as proposed Application Plans 12/03/2026 ground floor and roof plan as existing Application Plans 12/03/2026 elevations as existing Application Plans 12/03/2026 Application form redacted PA Form Without Details 12/03/2026 Site and location plan Application Plans 12/03/2026 elevations as proposed Application Plans Showing 1 to 6 of 6 documents ← Previous 1 Next → The system has encountered a problem while loading the documents
Uncategorised
Not yet archived
· Original link
Associated Documents Display 10 20 50 100 documents per page Search documents: Date Description Document Sub Type View Measure 12/03/2026 ground floor and roof plan as proposed Application Plans 12/03/2026 ground floor and roof plan as existing Application Plans 12/03/2026 elevations as existing Application Plans 12/03/2026 Application form redacted PA Form Without Details 12/03/2026 Site and location plan Application Plans 12/03/2026 elevations as proposed Application Plans Showing 1 to 6 of 6 documents ← Previous 1 Next → The system has encountered a problem while loading the documents
Uncategorised
Not yet archived
· Original link
Uncategorised
Archived
· Original link
Have your say
Your comment matters. Councils must consider every representation that raises material planning considerations.